Apartamenty Saska w Warszawie - Architektura-Murator
Apartamenty Saska w Warszawie

Apartamenty Saska w Warszawie

Panorama osiedla od strony Jeziora Gocławskiego. Wysokość zabudowy narasta w miarę oddalania się od wody. W ośmiu zrealizowanych ostatnio 5-piętrowych obiektach znalazło się w sumie ponad 350 mieszkań. Fot. Daniel Rumiancew
Autor: Archiwum serwisu
Rozwiń
Apartamenty Saska w Warszawie

Apartamenty Saska w Warszawie

Widok z jednego z mieszkań na jeziorko. Na zdjęciu widać granicę pomiędzy strefą dostępną jedynie dla mieszkańców i strefą publiczną znajdującą się na terenie należącym do dewelopera z biegnącym zygzakiem chodnikiem. Fot. Daniel Rumiancew
Autor: Archiwum serwisu
Rozwiń
Apartamenty Saska w Warszawie

Apartamenty Saska w Warszawie

Fragment otwartego z jednej strony dziedzińca, dostępnego dla mieszkańców poszczególnych budynków. Fot. Daniel Rumiancew
Autor: Archiwum serwisu
Rozwiń
Apartamenty Saska w Warszawie

Apartamenty Saska w Warszawie

Zabudowa wzdłuż nowej ulicy Jana Nowaka-Jeziorańskiego została opracowana w dwóch skalach. Wysoka zabudowa ciągnie się wzdłuż nieparzystej, zachodniej pierzei oddalonej od Jeziora Gocławskiego, zaś zabudowa po stronie wschodniej, bliżej jeziora jest niższa, tworzy harmonijną pierzeję ulicy z handlowymi parterami. Fot. Daniel Rumiancew
Autor: Archiwum serwisu
Rozwiń
Apartamenty Saska w Warszawie

Apartamenty Saska w Warszawie

Blok znajdujący się na lekkim wyniesieniu wzdłuż Kanału Gocławskiego. Uskokowy kształt elewacji jest rezultatem dążenia projektantów do otwarcia widoku z mieszkań na Jezioro Gocławskie. Fot. Daniel Rumiancew
Autor: Archiwum serwisu
Rozwiń
Apartamenty Saska w Warszawie

Apartamenty Saska w Warszawie

Fragment elewacji bloku wzdłuż Kanału Gocławskiego. Budynek ten wyróżnia się nietypowo ukształtowaną bryłą. Fot. Daniel Rumiancew
Autor: Archiwum serwisu
Rozwiń
Apartamenty Saska w Warszawie

Apartamenty Saska w Warszawie

Fragment bloku wzdłuż Kanału Gocławskiego, widok od strony Jeziora Gocławskiego. Fot. Daniel Rumiancew
Autor: Archiwum serwisu
Rozwiń
Apartamenty Saska w Warszawie

Apartamenty Saska w Warszawie

Opadające tarasowo bloki zwrócone w stronę jeziorka. Wszystkie loggie zaprojektowano tak by kierować widok z mieszkań na wodę, jedynie wewnętrzne dziedzińce są zamykane. Przestrzeń pomiędzy blokami i wzdłuż jeziorka z drewnianym chodnikiem jest ogólnie dostępna. Fot. Daniel Rumiancew
Autor: Archiwum serwisu
Rozwiń
Apartamenty Saska w Warszawie

Apartamenty Saska w Warszawie

Elewacja bloku przylegającego do alei Stanów Zjednoczonych, zwrócona w stronę tej dwupasmowej arterii potraktowana została jak ekran akustyczny. Rytm nadają jej pozbawione okien wykusze mieszczące w środku komórki lokatorskie. Fot. Daniel Rumiancew
Autor: Archiwum serwisu
Rozwiń
Apartamenty Saska w Warszawie

Apartamenty Saska w Warszawie

Przyziemia bloków tworzących pierzę ulicy Jana Nowaka- Jeziorańskiego zaprojektowano w sposób miastotwórczy z podcieniami i lokalami użytkowymi do wynajęcia. Parter podkreślono. Fot. Daniel Rumiancew
Autor: Archiwum serwisu
Rozwiń
Apartamenty Saska w Warszawie

Apartamenty Saska w Warszawie

Wnętrze bloku przylegającego do alei Stanów Zjednoczonych. Klatka schodowa i korytarze prowadzące do mieszkań zlokalizowane zostały od strony elewacji ciągnącej się wzdłuż arterii komunikacyjnej. Architekci potraktowali je jak bufor oddzielający mieszkania od hałasu. Fot. Daniel Rumiancew
Autor: Archiwum serwisu
Rozwiń
Apartamenty Saska w Warszawie

Apartamenty Saska w Warszawie

Sytuacja. Oznaczenia: II etap inwestycji Osiedle Saska: 1 – budynek A; 2 – budynek B; 3 – budynek C; 4 – budynek D; 5 – budynek E; 6 – budynek F; 7 – I etap inwestycji Osiedle Saska (zrealizowany); 8 – III etap inwestycji Osiedle Saska (w trakcie realizacji).
Autor: Archiwum serwisu
Rozwiń
Apartamenty Saska w Warszawie

Apartamenty Saska w Warszawie

Rzut drugiego piętra budynku A.
Autor: Archiwum serwisu
Rozwiń
Apartamenty Saska w Warszawie

Apartamenty Saska w Warszawie

Przekrój A-A przez budynek A.
Autor: Archiwum serwisu
Rozwiń
Magnifying Glass Plus Powiększ zdjęcie
Apartamenty Saska w Warszawie

Apartamenty Saska w Warszawie

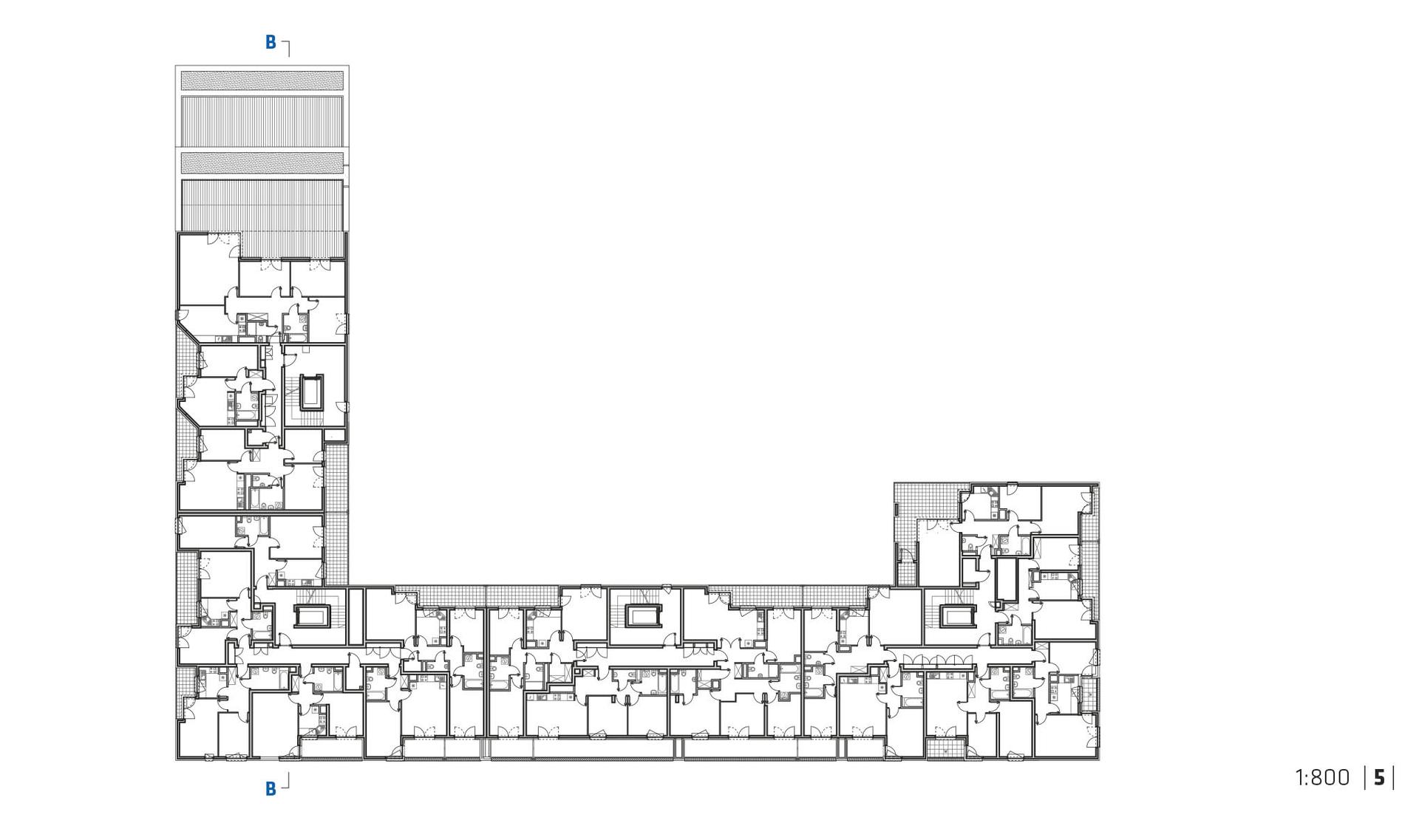
Rzut czwartego piętra budynku C.
Autor: Archiwum serwisu
Rozwiń
Apartamenty Saska w Warszawie

Apartamenty Saska w Warszawie

Przekrój B-B przez budynek C.
Autor: Archiwum serwisu
Rozwiń
Powrót
Apartamenty Saska w Warszawie
Apartamenty Saska w Warszawie
Apartamenty Saska w Warszawie
Apartamenty Saska w Warszawie
Apartamenty Saska w Warszawie
Apartamenty Saska w Warszawie
Apartamenty Saska w Warszawie
Apartamenty Saska w Warszawie
Apartamenty Saska w Warszawie
Apartamenty Saska w Warszawie
Apartamenty Saska w Warszawie
Apartamenty Saska w Warszawie
Apartamenty Saska w Warszawie
Apartamenty Saska w Warszawie
Apartamenty Saska w Warszawie
Apartamenty Saska w Warszawie
Zamknij reklamę za s.
X
Zamknij reklamę
...
powiększone zdjęcie
email