Cafe Berg/ Wrocław - Architektura-Murator
Magnifying Glass Plus Powiększ zdjęcie
Cafe Berg we Wrocławiu

Cafe Berg we Wrocławiu

Cafe Berg we Wrocławiu, czyli rewitalizacja dawnego domku mlecznego projektu Maxa Berga. Widoczny odrestaurowany budynek nad wodą, z tarasem i parasolami Pepsi. Więcej o projekcie można przeczytać na Architektura Murator Plus.
Autor: Archiwum serwisu
Rozwiń
Cafe Berg we Wrocławiu

Cafe Berg we Wrocławiu

Cafe Berg we Wrocławiu, proj. grupa 33_03; fot. Maciej Lulko
Autor: Archiwum serwisu
Rozwiń
Cafe Berg 5

Cafe Berg 5

5 | Sytuacja
Autor: grupa 3303/ Materiały prasowe
Rozwiń
Magnifying Glass Plus Powiększ zdjęcie
Cafe Berg 14

Cafe Berg 14

Cafe Berg - przebudowa budynku dawnego „domku mlecznego” Maxa Berga z przeznaczeniem na kawiarnię
Autor: grupa 30_33/ Materiały prasowe
Rozwiń
Magnifying Glass Plus Powiększ zdjęcie
Cafe Berg 19

Cafe Berg 19

Cafe Berg - przebudowa budynku dawnego „domku mlecznego” Maxa Berga z przeznaczeniem na kawiarnię. Elementy dawnej stacji redukcyjnej gazu
Autor: grupa 30_33/ Materiały prasowe
Rozwiń
Magnifying Glass Plus Powiększ zdjęcie
Cafe Berg 23

Cafe Berg 23

Cafe Berg - przebudowa budynku dawnego „domku mlecznego” Maxa Berga z przeznaczeniem na kawiarnię. Lastriko
Autor: grupa 30_33/ Materiały prasowe
Rozwiń
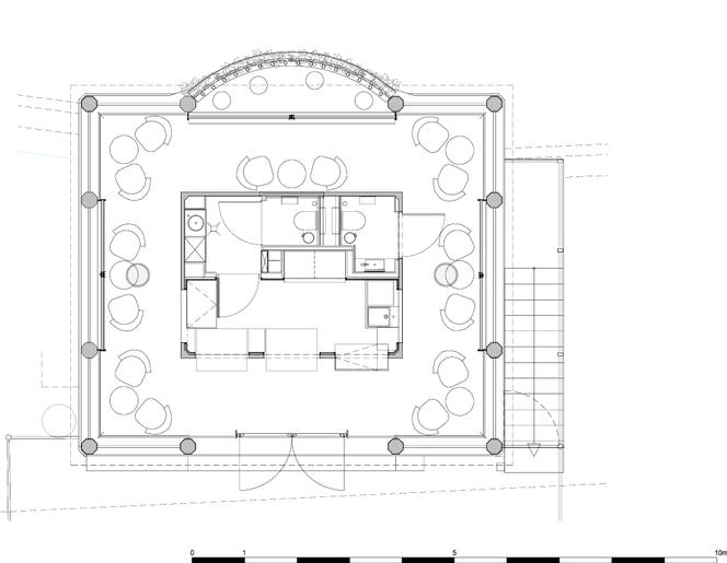
Cafe Berg 6

Cafe Berg 6

6 | Rzut parteru. Oznaczenia: 1 – bar; 2 – zaplecze baru; 3 – sala kawiarni
Autor: grupa 3303/ Materiały prasowe
Rozwiń
Cafe Berg we Wrocławiu

Cafe Berg we Wrocławiu

Cafe Berg we Wrocławiu, proj. grupa 33_03; fot. Maciej Lulko
Autor: Archiwum serwisu
Rozwiń
Cafe Berg 8

Cafe Berg 8

8 | Przekrój B-B
Autor: grupa 3303/ Materiały prasowe
Rozwiń
Magnifying Glass Plus Powiększ zdjęcie
Cafe Berg 17

Cafe Berg 17

Cafe Berg - przebudowa budynku dawnego „domku mlecznego” Maxa Berga z przeznaczeniem na kawiarnię
Autor: grupa 30_33/ Materiały prasowe
Rozwiń
Magnifying Glass Plus Powiększ zdjęcie
Cafe Berg 10

Cafe Berg 10

Wnętrze odnowionej Cafe Berg we Wrocławiu z widokiem na fosę i zielone Wzgórze Partyzantów. Na tarasie z zieloną balustradą i otworami na kubki stoją nowoczesne stoły i krzesła. Ściany są przeszklone, tworząc wrażenie lewitującego dachu. Architektura Murator Plus poleca.
Autor: Maciej Lulko
Rozwiń
Magnifying Glass Plus Powiększ zdjęcie
Cafe Berg 22

Cafe Berg 22

Cafe Berg - przebudowa budynku dawnego „domku mlecznego” Maxa Berga z przeznaczeniem na kawiarnię. Shody
Autor: grupa 30_33/ Materiały prasowe
Rozwiń
Magnifying Glass Plus Powiększ zdjęcie
Cafe Berg 21

Cafe Berg 21

Cafe Berg - przebudowa budynku dawnego „domku mlecznego” Maxa Berga z przeznaczeniem na kawiarnię. Elementy zaworów dawnej stacji redukcyjnej gazu
Autor: grupa 30_33/ Materiały prasowe
Rozwiń
Magnifying Glass Plus Powiększ zdjęcie
Cafe Berg 18

Cafe Berg 18

Cafe Berg - przebudowa budynku dawnego „domku mlecznego” Maxa Berga z przeznaczeniem na kawiarnię
Autor: grupa 30_33/ Materiały prasowe
Rozwiń
Magnifying Glass Plus Powiększ zdjęcie
Cafe Berg 11

Cafe Berg 11

11 | Widok północnego tarasu od wnętrza. Na pierwszym planie nowe szklenie za wewnętrzną linią słupów - rozsunięte i zapewniające nieograniczoną perspektywę na Wzgórze Partyzantów
Autor: Maciej Lulko
Rozwiń
Cafe Berg we Wrocławiu

Cafe Berg we Wrocławiu

Cafe Berg we Wrocławiu, proj. grupa 33_03; fot. Maciej Lulko
Autor: Archiwum serwisu
Rozwiń
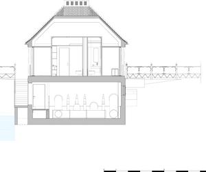
Cafe Berg 7

Cafe Berg 7

7 | Przekrój A-A
Autor: grupa 3303/ Materiały prasowe
Rozwiń
Magnifying Glass Plus Powiększ zdjęcie
Cafe Berg 20

Cafe Berg 20

Cafe Berg - przebudowa budynku dawnego „domku mlecznego” Maxa Berga z przeznaczeniem na kawiarnię. Elementy zaworów dawnej stacji redukcyjnej gazu
Autor: grupa 30_33/ Materiały prasowe
Rozwiń
Cafe Berg we Wrocławiu

Cafe Berg we Wrocławiu

Cafe Berg we Wrocławiu, proj. grupa 33_03; fot. Maciej Lulko
Autor: Archiwum serwisu
Rozwiń
Magnifying Glass Plus Powiększ zdjęcie
Cafe Berg 16

Cafe Berg 16

Cafe Berg - przebudowa budynku dawnego „domku mlecznego” Maxa Berga z przeznaczeniem na kawiarnię
Autor: grupa 30_33/ Materiały prasowe
Rozwiń
Magnifying Glass Plus Powiększ zdjęcie
Cafe Berg 13

Cafe Berg 13

13 | Zachowane okna wraz z okiennicami do pomieszczeń byłej stacji redukcyjnej gazu
Autor: Maciej Lulko
Rozwiń
Magnifying Glass Plus Powiększ zdjęcie
Cafe Berg 12

Cafe Berg 12

12 | Elementy zaworów dawnej stacji redukcyjnej gazu
Autor: grupa 3303/ Materiały prasowe
Rozwiń
Magnifying Glass Plus Powiększ zdjęcie
Cafe Berg 15

Cafe Berg 15

Cafe Berg - przebudowa budynku dawnego „domku mlecznego” Maxa Berga z przeznaczeniem na kawiarnię
Autor: grupa 30_33/ Materiały prasowe
Rozwiń
Magnifying Glass Plus Powiększ zdjęcie
Cafe Berg 9

Cafe Berg 9

9 | Strefa wejściowa do kawiarni
Autor: Maciej Lulko
Rozwiń
Powrót
Cafe Berg we Wrocławiu
Cafe Berg we Wrocławiu
Cafe Berg 5
Cafe Berg 14
Cafe Berg 19
Cafe Berg 23
Cafe Berg 6
Cafe Berg we Wrocławiu
Cafe Berg 8
Cafe Berg 17
Cafe Berg 10
Cafe Berg 22
Cafe Berg 21
Cafe Berg 18
Cafe Berg 11
Cafe Berg we Wrocławiu
Cafe Berg 7
Cafe Berg 20
Cafe Berg we Wrocławiu
Cafe Berg 16
Cafe Berg 13
Cafe Berg 12
Cafe Berg 15
Cafe Berg 9
Zamknij reklamę za s.
X
Zamknij reklamę
...
powiększone zdjęcie
email