Centrum wystawowe w Bazylei - Architektura-Murator
Magnifying Glass Plus Powiększ zdjęcie
Centrum wystawowe w Bazylei

Centrum wystawowe w Bazylei

Przed wyburzeniem dwóch istniejących hal wybudowano pomiędzy nimi plombę stanowiącą dziś środkową częścią budynku z ogólnodostępnym atrium otwartym na Messeplatz. Jego konstrukcja opiera się na wielkogabarytowych kratownicach stalowych rozpiętych między żelbetowymi ścianami. Fot. MCH Swiss Exhibition (Basel) Ltd. - MCH Group AG  
Autor: Archiwum serwisu
Rozwiń
Magnifying Glass Plus Powiększ zdjęcie
Centrum wystawowe w Bazylei

Centrum wystawowe w Bazylei

Projekt wymagał wyburzenia dwóch budynków, które nie spełniały aktualnych wymagań wystawienniczych: 105 równocześnie z realizacją nowego budynku wyburzano dwie sąsiadujące z nim hale. Obiekty te nie spełniały dzisiejszych wymagań wystawienniczych między innymi w zakresie wysokości pomieszczeń hali wybudowanej w latach 30. i drugiej z lat 70. Na ich miejscu powstał 3-kondygnacyjny obiekt z otwartą częścią parterową. Fot. MCH Swiss Exhibition (Basel) Ltd. - MCH Group AG
Autor: Archiwum serwisu
Rozwiń
Magnifying Glass Plus Powiększ zdjęcie
Centrum wystawowe w Bazylei

Centrum wystawowe w Bazylei

Przed wyburzeniem dwóch istniejących hal wybudowano pomiędzy nimi plombę stanowiącą dziś środkową częścią budynku z ogólnodostępnym atrium otwartym na Messeplatz. Jego konstrukcja opiera się na wielkogabarytowych kratownicach stalowych rozpiętych między żelbetowymi ścianami. Fot. MCH Swiss Exhibition (Basel) Ltd. - MCH Group AG
Autor: Archiwum serwisu
Rozwiń
Magnifying Glass Plus Powiększ zdjęcie
Centrum wystawowe w Bazylei

Centrum wystawowe w Bazylei

Budowa była podzielona na trzy etapy: I – wybudowanie pomiędzy dwoma istniejącymi halami, przewidzianymi do rozbiórki, środkowej części z atrium, II – wyburzenie przyległych hal, III – realizacja dwóch skrzydeł łączących się z wybudowaną częścią. Fot. MCH Swiss Exhibition (Basel) Ltd. - MCH Group AG
Autor: Archiwum serwisu
Rozwiń
Magnifying Glass Plus Powiększ zdjęcie
Centrum wystawowe w Bazylei

Centrum wystawowe w Bazylei

Budowa była podzielona na trzy etapy: I – wybudowanie pomiędzy dwoma istniejącymi halami, przewidzianymi do rozbiórki, środkowej części z atrium, II – wyburzenie przyległych hal, III – realizacja dwóch skrzydeł łączących się z wybudowaną częścią. Fot. MCH Swiss Exhibition (Basel) Ltd. - MCH Group AG
Autor: Archiwum serwisu
Rozwiń
Magnifying Glass Plus Powiększ zdjęcie
Centrum wystawowe w Bazylei

Centrum wystawowe w Bazylei

Ściana otaczająca atrium jest również wykonana z pasów blachy aluminiowej o grubości 3 mm. Fot. MCH Swiss Exhibition (Basel) Ltd. - MCH Group AG
Autor: Archiwum serwisu
Rozwiń
Magnifying Glass Plus Powiększ zdjęcie
Centrum wystawowe w Bazylei

Centrum wystawowe w Bazylei

Budowa była podzielona na trzy etapy: I – wybudowanie pomiędzy dwoma istniejącymi halami, przewidzianymi do rozbiórki, środkowej części z atrium, II – wyburzenie przyległych hal, III – realizacja dwóch skrzydeł łączących się z wybudowaną częścią. Fot. MCH Swiss Exhibition (Basel) Ltd. - MCH Group AG
Autor: Archiwum serwisu
Rozwiń
Magnifying Glass Plus Powiększ zdjęcie
Centrum wystawowe w Bazylei

Centrum wystawowe w Bazylei

Nowa hala zlokalizowana jest na terenie Targów Szwajcarskich w centrum Bazylei niedaleko dworca kolejowego Basel Badischer. Fot. MCH Swiss Exhibition (Basel) Ltd. - MCH Group AG
Autor: Archiwum serwisu
Rozwiń
Magnifying Glass Plus Powiększ zdjęcie
Centrum wystawowe w Bazylei

Centrum wystawowe w Bazylei

W centrum obiektu znajduje się wysokie na trzy kondygnacje atrium o średnicy ok. 29 m. Fot. MCH Swiss Exhibition (Basel) Ltd. - MCH Group AG
Autor: Archiwum serwisu
Rozwiń
Magnifying Glass Plus Powiększ zdjęcie
Centrum wystawowe w Bazylei

Centrum wystawowe w Bazylei

Widok od strony południowej. Fot. MCH Swiss Exhibition (Basel) Ltd. - MCH Group AG
Autor: Archiwum serwisu
Rozwiń
Magnifying Glass Plus Powiększ zdjęcie
Centrum wystawowe w Bazylei

Centrum wystawowe w Bazylei

Choć budynek stanowi urbanistyczne domknięcie placu od zachodu to dzięki poprowadzeniu przez jego środek linii tramwajowej i pieszego pasażu został świetnie skomunikowany z resztą miasta. W parterze powstała ogólnodostępna przestrzeń publiczna. Fot. MCH Swiss Exhibition (Basel) Ltd. - MCH Group AG
Autor: Archiwum serwisu
Rozwiń
Magnifying Glass Plus Powiększ zdjęcie
Centrum wystawowe w Bazylei

Centrum wystawowe w Bazylei

Dwupoziomowy, północny hol wejściowy. Fot. MCH Swiss Exhibition (Basel) Ltd. - MCH Group AG
Autor: Archiwum serwisu
Rozwiń
Magnifying Glass Plus Powiększ zdjęcie
Centrum wystawowe w Bazylei

Centrum wystawowe w Bazylei

Między dwoma skrzydłami powstała nowa, częściowo zadaszona przestrzeń publiczna. Na placu znajduje się przystanek tramwajowy a tuż obok Clarastrasse – główna ulica handlowa miasta. Fot. MCH Swiss Exhibition (Basel) Ltd. - MCH Group AG
Autor: Archiwum serwisu
Rozwiń
Magnifying Glass Plus Powiększ zdjęcie
Centrum wystawowe w Bazylei

Centrum wystawowe w Bazylei

Bezkolumnowa wielofunkcyjna hala na parterze w południowej części kompleksu połączona jest bezpośrednio z restauracją. Przestrzeń ta liczy 3300 m 2 powierzchni. Fot. MCH Swiss Exhibition (Basel) Ltd. - MCH Group AG
Autor: Archiwum serwisu
Rozwiń
Magnifying Glass Plus Powiększ zdjęcie
Centrum wystawowe w Bazylei

Centrum wystawowe w Bazylei

Autor: Archiwum serwisu
Magnifying Glass Plus Powiększ zdjęcie
Centrum wystawowe w Bazylei

Centrum wystawowe w Bazylei

Elewacja wykonana jest z poskręcanych pasów z blachy aluminiowej o grubości 3 mm tworzących ażurową osłonę, rozpraszającą światło. Fot. MCH Swiss Exhibition (Basel) Ltd. - MCH Group AG
Autor: Archiwum serwisu
Rozwiń
Centrum wystawowe w Bazylei

Centrum wystawowe w Bazylei

Przekrój B-B. Rys. Herzog & de Meuron
Autor: Archiwum serwisu
Rozwiń
Centrum wystawowe w Bazylei

Centrum wystawowe w Bazylei

Przekrój A-A. Rys. Herzog & de Meuron
Autor: Archiwum serwisu
Rozwiń
Magnifying Glass Plus Powiększ zdjęcie
Centrum wystawowe w Bazylei

Centrum wystawowe w Bazylei

Sytuacja. Oznaczenia: 1 – nowe centrum wystawowe; 2 –atrium; 3 –halanrI; 4 –hala nrII; 5 –wieżowiec Messeturm; 6 –linia tramwajowa; 7 –halanrV/parking; 8 –plac miejski (Messeplatz); 9 –hala nrIV – centrum konferencyjne; 10 –hala nrIII; 11 –teatr muzyczny. Rys. Hrzog & de Meuron
Autor: Archiwum serwisu
Rozwiń
Magnifying Glass Plus Powiększ zdjęcie
Centrum wystawowe w Bazylei

Centrum wystawowe w Bazylei

Rzut pierwszego piętra. Oznaczenia do rysunków 4, 5: 1 – atrium; 2 –wejście główne; 3 –hol północny; 4 –hol południowy; 5 –przestrzeń wystawowa; 6 –sklep/kawiarnia; 7 –restauracja; 8 –przestrzeń wielofunkcyjna. Rys. Herzog & de Meuron
Autor: Archiwum serwisu
Rozwiń
Magnifying Glass Plus Powiększ zdjęcie
Centrum wystawowe w Bazylei

Centrum wystawowe w Bazylei

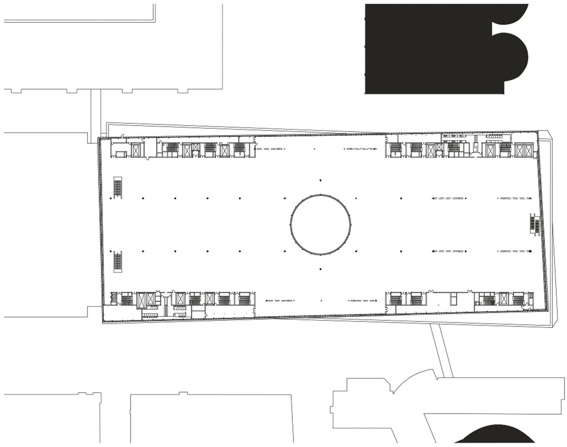
Rzut parteru. Rys. Herzog & de Meuron
Autor: Archiwum serwisu
Rozwiń

Centrum wystawowe w Bazylei

Przed wyburzeniem dwóch istniejących hal wybudowano pomiędzy nimi plombę stanowiącą dziś środkową częścią budynku z ogólnodostępnym atrium otwartym na Messeplatz. Jego konstrukcja opiera się na wielkogabarytowych kratownicach stalowych rozpiętych między żelbetowymi ścianami. Fot. MCH Swiss Exhibition (Basel) Ltd. - MCH Group AG  
Autor: Archiwum serwisu
Rozwiń
Powrót
Centrum wystawowe w Bazylei
Centrum wystawowe w Bazylei
Centrum wystawowe w Bazylei
Centrum wystawowe w Bazylei
Centrum wystawowe w Bazylei
Centrum wystawowe w Bazylei
Centrum wystawowe w Bazylei
Centrum wystawowe w Bazylei
Centrum wystawowe w Bazylei
Centrum wystawowe w Bazylei
Centrum wystawowe w Bazylei
Centrum wystawowe w Bazylei
Centrum wystawowe w Bazylei
Centrum wystawowe w Bazylei
Centrum wystawowe w Bazylei
Centrum wystawowe w Bazylei
Centrum wystawowe w Bazylei
Centrum wystawowe w Bazylei
Centrum wystawowe w Bazylei
Centrum wystawowe w Bazylei
Centrum wystawowe w Bazylei
Zamknij reklamę za s.
X
Zamknij reklamę
...
powiększone zdjęcie
email
Reklama
Zamknij