Dom Made in Poland - Architektura-Murator
Magnifying Glass Plus Powiększ zdjęcie
Dom Made in Poland

Dom Made in Poland

Rozległy taras przy domu Made in Poland otwiera widok na malowniczą okolicę jednej z nowosądeckich miejscowości

Autor: BXB studio/ Materiały prasowe
Rozwiń
Magnifying Glass Plus Powiększ zdjęcie
Dom Made in Poland

Dom Made in Poland

Dom Made in Poland stanowi połączenie domu kostki, tzw. nowoczesnej stodoły oraz klasycznego katalogowca o dwuspadowym dachu

Autor: BXB studio/ Materiały prasowe
Rozwiń
Magnifying Glass Plus Powiększ zdjęcie
Dom Made in Poland

Dom Made in Poland

Widok czterech elewacji domu Made in Poland 

Autor: BXB studio/ Materiały prasowe
Rozwiń
Magnifying Glass Plus Powiększ zdjęcie
Dom Made in Poland

Dom Made in Poland

Do wykończenia domu Made in Poland autorzy zaproponowali gont i naturalne drewno

Autor: BXB studio/ Materiały prasowe
Rozwiń
Magnifying Glass Plus Powiększ zdjęcie
Dom Made in Poland

Dom Made in Poland

Dom Made in Poland Bogusław Barnaś zaprojektował dla koleżanki z Wydziału Architektury Politechniki Krakowskiej

Autor: BXB studio/ Materiały prasowe
Rozwiń
Magnifying Glass Plus Powiększ zdjęcie
Dom Made in Poland

Dom Made in Poland

Dom Made in Poland to nie pierwszy projekt BXB studio dla osoby wykonującej tę samą profesję. Kilka lat temu na zlecenie zaprzyjaźnionego architekta biuro opracowało koncepcję tzw. Domu Artysty

Autor: BXB studio/ Materiały prasowe
Rozwiń
Magnifying Glass Plus Powiększ zdjęcie
Dom Made in Poland

Dom Made in Poland

Schemat ideowy domu Made in Poland 

Autor: BXB studio/ Materiały prasowe
Rozwiń
Magnifying Glass Plus Powiększ zdjęcie
Dom Made in Poland

Dom Made in Poland

Do ogrzewania domu Made in Poland wykorzystywana będzie m.in. energia geotermalna

Autor: BXB studio/ Materiały prasowe
Rozwiń
Magnifying Glass Plus Powiększ zdjęcie
Dom Made in Poland

Dom Made in Poland

Dom Made in Poland, przekrój A-A

Autor: BXB studio/ Materiały prasowe
Rozwiń
Magnifying Glass Plus Powiększ zdjęcie
Dom Made in Poland

Dom Made in Poland

Architekci zaplanowali, że dom Made in Poland wyposażony zostanie m.in. w panele fotowoltaiczne i system retencjonowania wody deszczowej

Autor: BXB studio/ Materiały prasowe
Rozwiń
Magnifying Glass Plus Powiększ zdjęcie
Dom Made in Poland

Dom Made in Poland

Dom Made in Poland, przekrój B-B

Autor: BXB studio/ Materiały prasowe
Rozwiń
Magnifying Glass Plus Powiększ zdjęcie
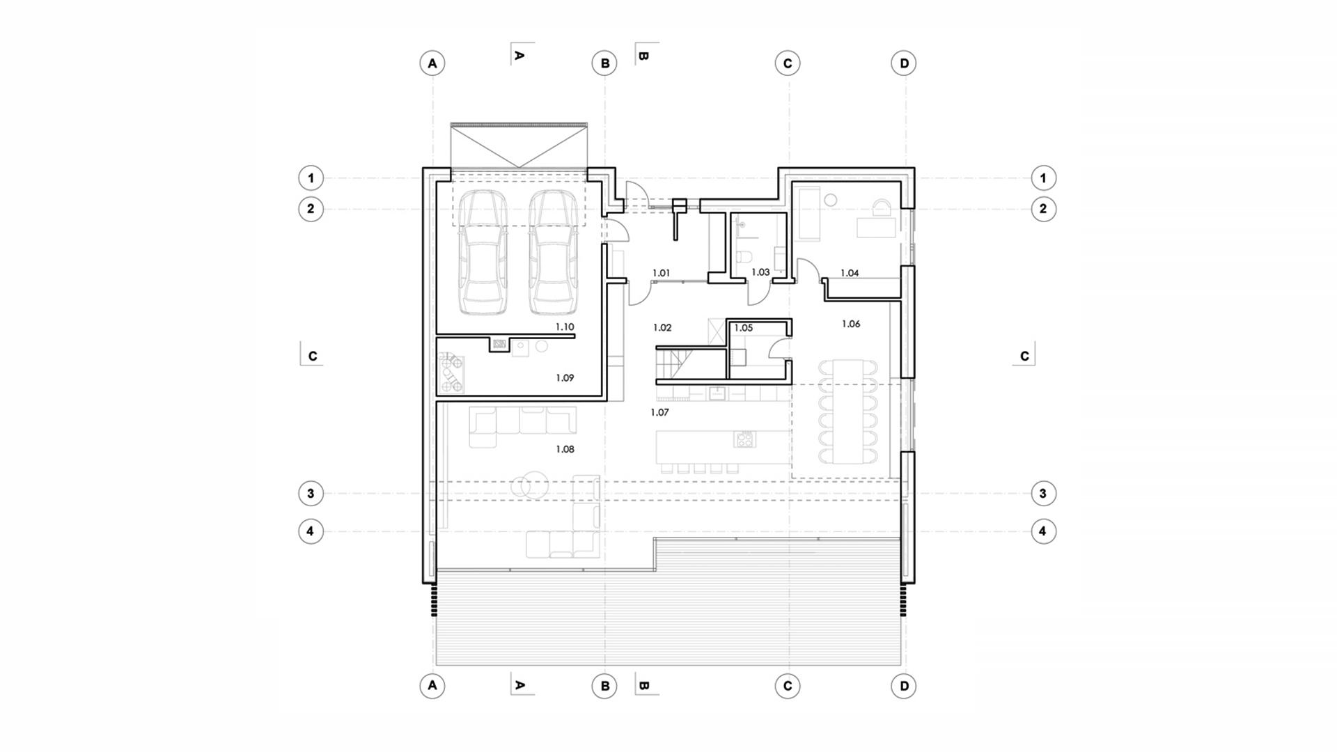
Dom Made in Poland

Dom Made in Poland

Dom Made in Poland, rzut parteru. Tu architekci przewidzieli strefę dzienną z kuchnią i salonem, a także gabinet oraz dwustanowiskowy garaż

Autor: BXB studio/ Materiały prasowe
Rozwiń
Magnifying Glass Plus Powiększ zdjęcie
Dom Made in Poland

Dom Made in Poland

Dom Made in Poland, rzut piętra, gdzie rozplanowano m.in. trzy sypialnie oraz łazienkę

Autor: BXB studio/ Materiały prasowe
Rozwiń
Powrót
Dom Made in Poland
Dom Made in Poland
Dom Made in Poland
Dom Made in Poland
Dom Made in Poland
Dom Made in Poland
Dom Made in Poland
Dom Made in Poland
Dom Made in Poland
Dom Made in Poland
Dom Made in Poland
Dom Made in Poland
Dom Made in Poland
Zamknij reklamę za s.
X
Zamknij reklamę
...
powiększone zdjęcie
email