Dom na Dębińskiej, czyli projektowanie pod wpływem pandemii
Bryla - ideogram
Autor: Archiwum serwisu
Rozwiń

Powiększ zdjęcie
Dom na Dębińskiej, czyli projektowanie pod wpływem pandemii
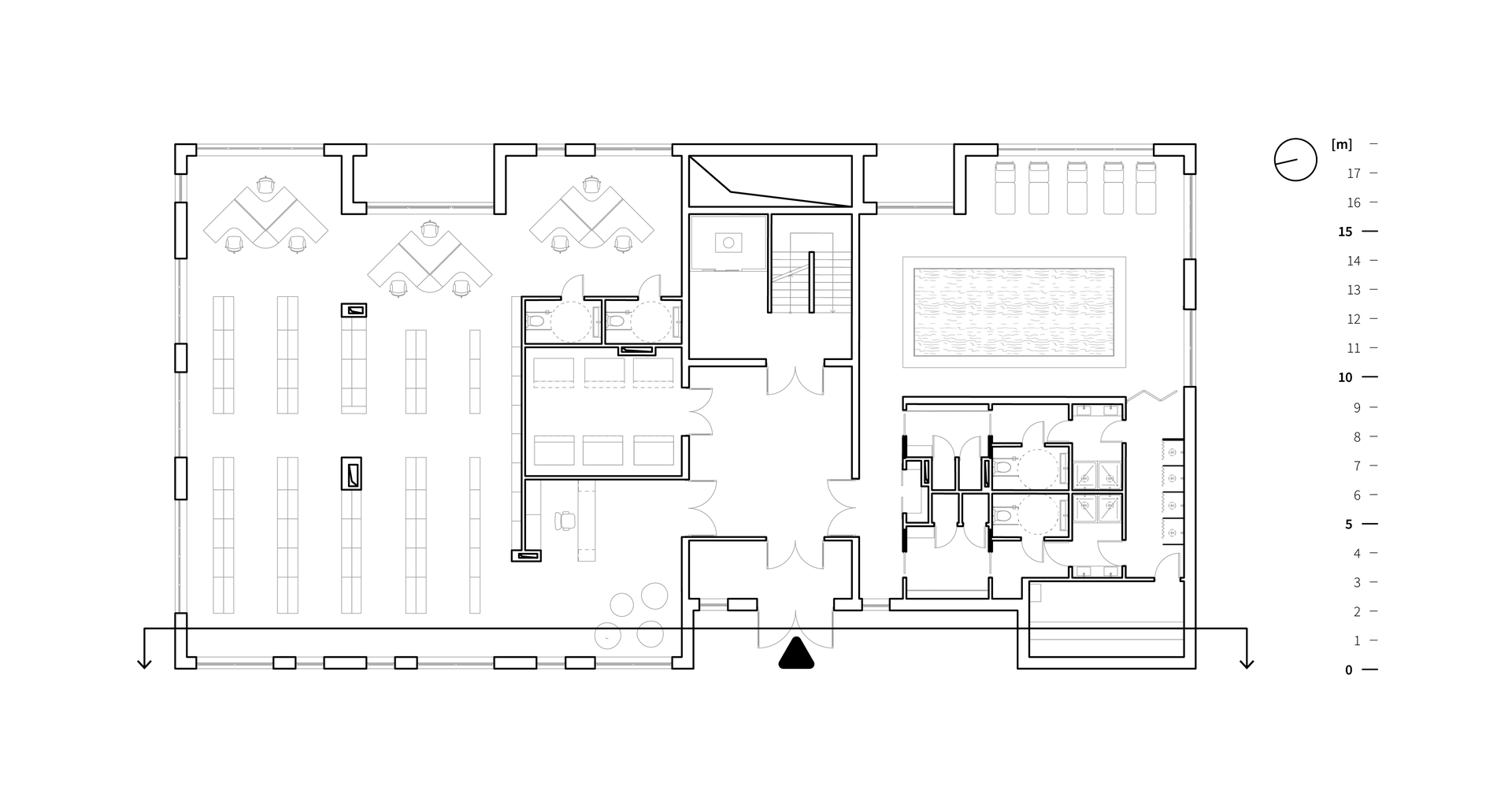
Rzut, poziom 0
Autor: Archiwum serwisu
Rozwiń

Powiększ zdjęcie
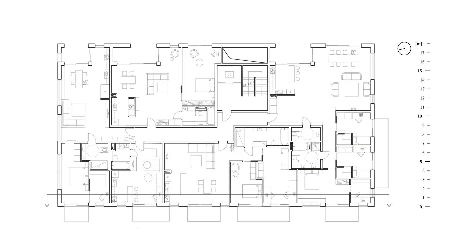
Dom na Dębińskiej, czyli projektowanie pod wpływem pandemii
Rzut, poziom 2
Autor: Archiwum serwisu
Rozwiń

Powiększ zdjęcie
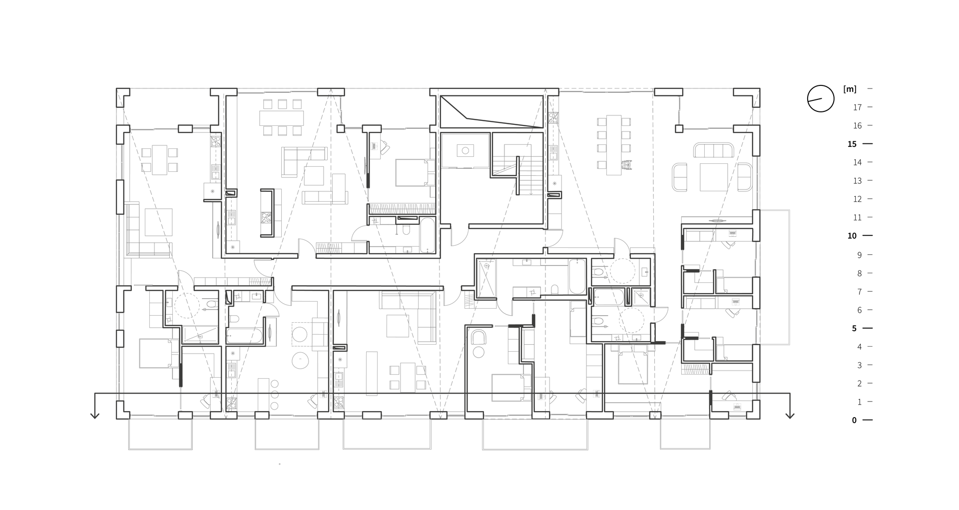
Dom na Dębińskiej, czyli projektowanie pod wpływem pandemii
Rzut, poziom 1 i 3
Autor: Archiwum serwisu
Rozwiń
Zamknij reklamę za s.
X
Zamknij reklamę
...
email