Metamorfoza dawnego garażu przy rue Lucien Sampaix - Architektura-Murator
Metamorfoza dawnego garażu przy rue Lucien Sampaix

Metamorfoza dawnego garażu przy rue Lucien Sampaix

Wizualizacja wenętrznej fasady projektowanego kompleksu
Autor: UR Architecture Urbanisme/ Materiały prasowe
Rozwiń
Metamorfoza dawnego garażu przy rue Lucien Sampaix

Metamorfoza dawnego garażu przy rue Lucien Sampaix

Projekt fasady od strony ulicy
Autor: UR Architecture Urbanisme/ Materiały prasowe
Rozwiń
Metamorfoza dawnego garażu przy rue Lucien Sampaix

Metamorfoza dawnego garażu przy rue Lucien Sampaix

Fasada garażu - stan obecny
Autor: UR Architecture Urbanisme / Paris Habitat/ Materiały prasowe
Rozwiń
Magnifying Glass Plus Powiększ zdjęcie
Metamorfoza dawnego garażu przy rue Lucien Sampaix

Metamorfoza dawnego garażu przy rue Lucien Sampaix

Stan obecny - zdjęcie strat po pożarze z 2020 roku
Autor: UR Architecture Urbanisme / Paris Habitat/ Materiały prasowe
Rozwiń
Magnifying Glass Plus Powiększ zdjęcie
Metamorfoza dawnego garażu przy rue Lucien Sampaix

Metamorfoza dawnego garażu przy rue Lucien Sampaix

Stan obecny - zdjęcie strat po pożarze z 2020 roku
Autor: UR Architecture Urbanisme / Paris Habitat/ Materiały prasowe
Rozwiń
Magnifying Glass Plus Powiększ zdjęcie
Metamorfoza dawnego garażu przy rue Lucien Sampaix

Metamorfoza dawnego garażu przy rue Lucien Sampaix

Rzut piętra projektowanego kompleksu
Autor: UR Architecture Urbanisme / Paris Habitat/ Materiały prasowe
Rozwiń
Magnifying Glass Plus Powiększ zdjęcie
Metamorfoza dawnego garażu przy rue Lucien Sampaix

Metamorfoza dawnego garażu przy rue Lucien Sampaix

Schemat projektowanej fasady od strony dziedzińca
Autor: UR Architecture Urbanisme / Paris Habitat/ Materiały prasowe
Rozwiń
Magnifying Glass Plus Powiększ zdjęcie
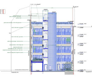
Metamorfoza dawnego garażu przy rue Lucien Sampaix

Metamorfoza dawnego garażu przy rue Lucien Sampaix

Przekrój przez konstrukcję obecnego budynku
Autor: UR Architecture Urbanisme / Paris Habitat/ Materiały prasowe
Rozwiń
Powrót
Metamorfoza dawnego garażu przy rue Lucien Sampaix
Metamorfoza dawnego garażu przy rue Lucien Sampaix
Metamorfoza dawnego garażu przy rue Lucien Sampaix
Metamorfoza dawnego garażu przy rue Lucien Sampaix
Metamorfoza dawnego garażu przy rue Lucien Sampaix
Metamorfoza dawnego garażu przy rue Lucien Sampaix
Metamorfoza dawnego garażu przy rue Lucien Sampaix
Metamorfoza dawnego garażu przy rue Lucien Sampaix
Zamknij reklamę za s.
X
Zamknij reklamę
...
powiększone zdjęcie
email