Nowy biurowiec MSZ w alei Armii Ludowej w Warszawie - Architektura-Murator
Magnifying Glass Plus Powiększ zdjęcie
Nowy biurowiec MSZ w alei Armii Ludowej w Warszawie

Nowy biurowiec MSZ w alei Armii Ludowej w Warszawie

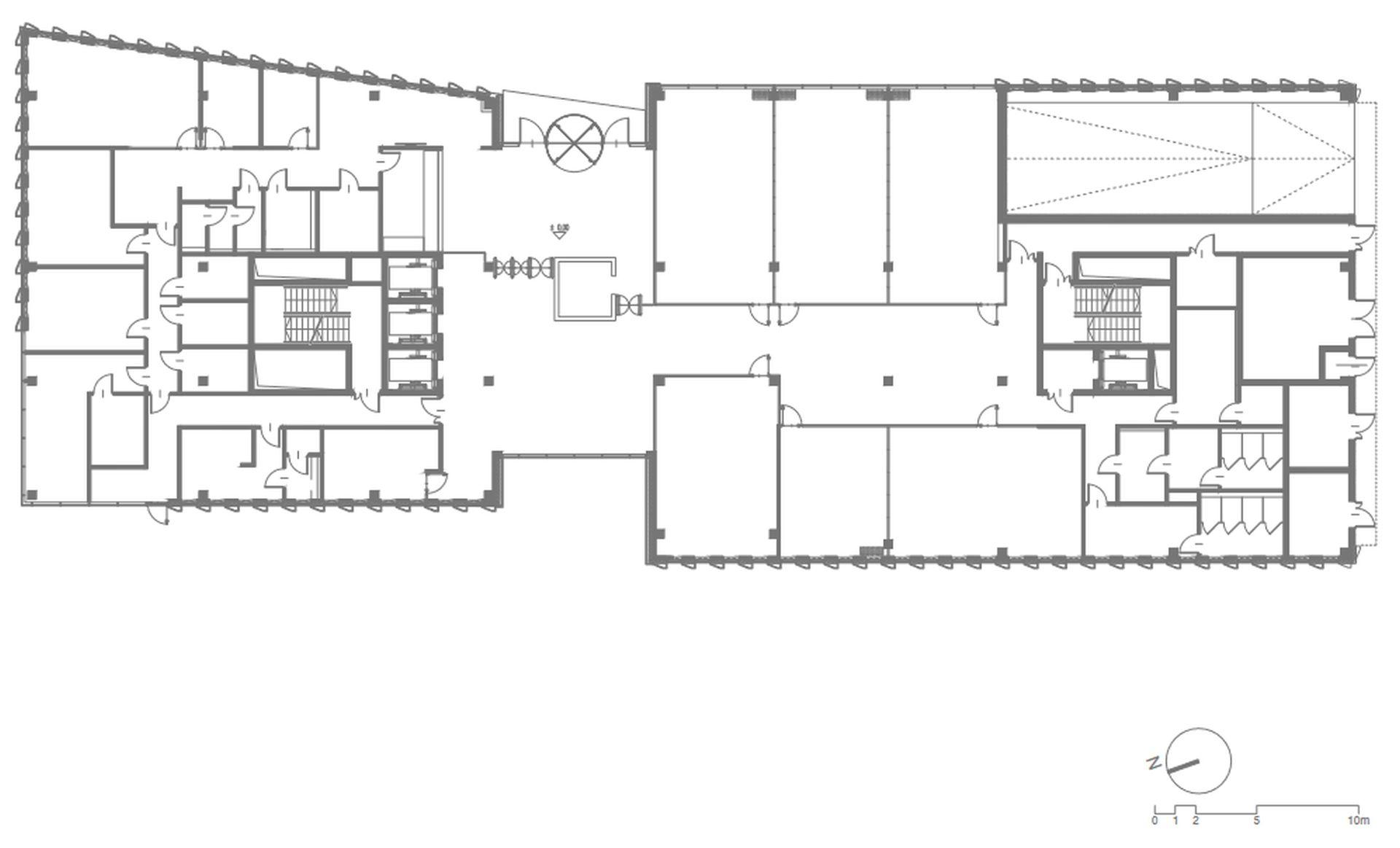
Nowy biurowiec Ministerstwa Spraw Zagranicznych w Warszawie, proj. DA Dziuba Architekci; rzut parteru
Autor: Archiwum serwisu
Rozwiń
Nowy biurowiec MSZ w alei Armii Ludowej w Warszawie

Nowy biurowiec MSZ w alei Armii Ludowej w Warszawie

Nowy biurowiec Ministerstwa Spraw Zagranicznych w Warszawie, proj. DA Dziuba Architekci; przekrój
Autor: Archiwum serwisu
Rozwiń
Magnifying Glass Plus Powiększ zdjęcie
Nowy biurowiec MSZ w alei Armii Ludowej w Warszawie

Nowy biurowiec MSZ w alei Armii Ludowej w Warszawie

Nowy biurowiec Ministerstwa Spraw Zagranicznych w Warszawie, proj. DA Dziuba Architekci; sytuacja
Autor: Archiwum serwisu
Rozwiń
Nowy biurowiec MSZ w alei Armii Ludowej w Warszawie

Nowy biurowiec MSZ w alei Armii Ludowej w Warszawie

Nowy biurowiec Ministerstwa Spraw Zagranicznych w Warszawie, proj. DA Dziuba Architekci; elewacja zachodnia
Autor: Archiwum serwisu
Rozwiń
Powrót
Nowy biurowiec MSZ w alei Armii Ludowej w Warszawie
Nowy biurowiec MSZ w alei Armii Ludowej w Warszawie
Nowy biurowiec MSZ w alei Armii Ludowej w Warszawie
Nowy biurowiec MSZ w alei Armii Ludowej w Warszawie
Zamknij reklamę za s.
X
Zamknij reklamę
...
powiększone zdjęcie
email