Nowy budynek ASP we Wrocławiu: wyniki konkursu SARP - Architektura-Murator
Magnifying Glass Plus Powiększ zdjęcie
Nowy budynek ASP we Wrocławiu: wyniki konkursu SARP

Nowy budynek ASP we Wrocławiu: wyniki konkursu SARP

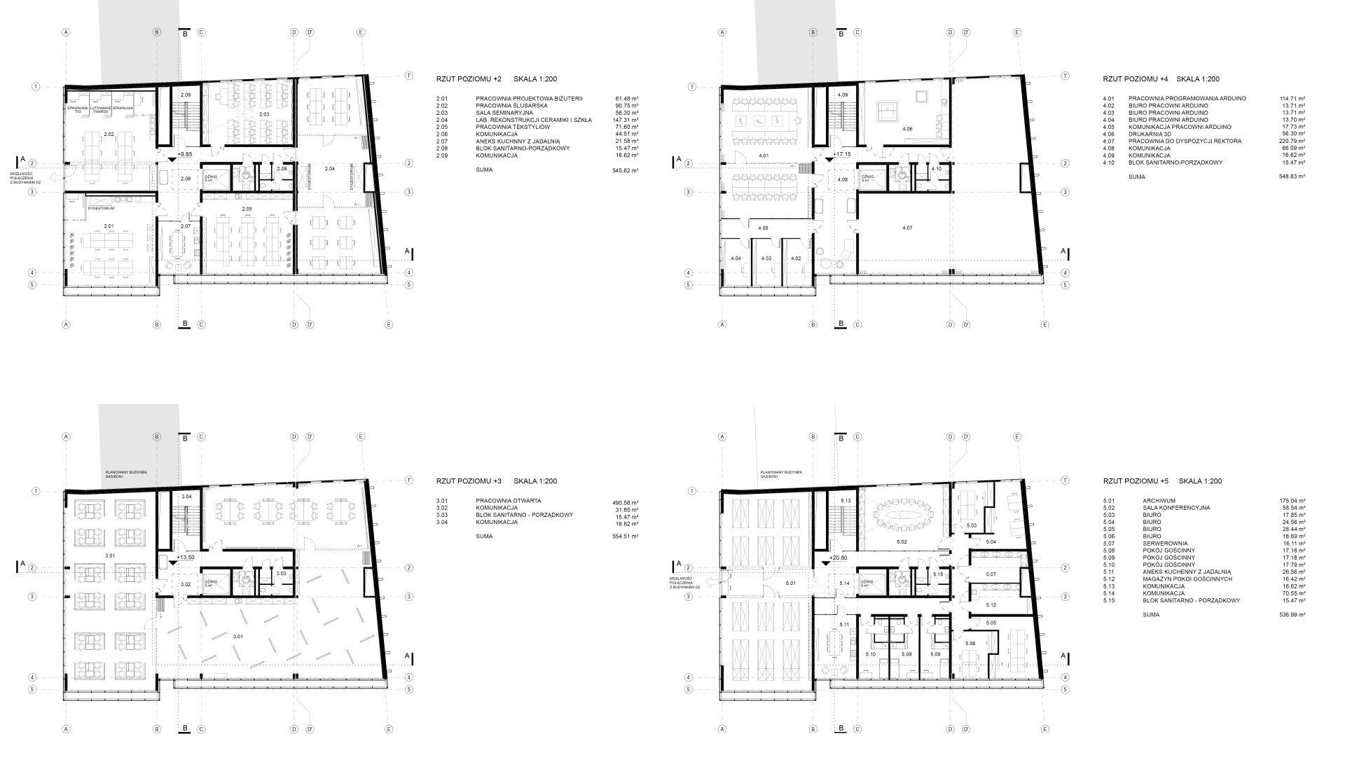
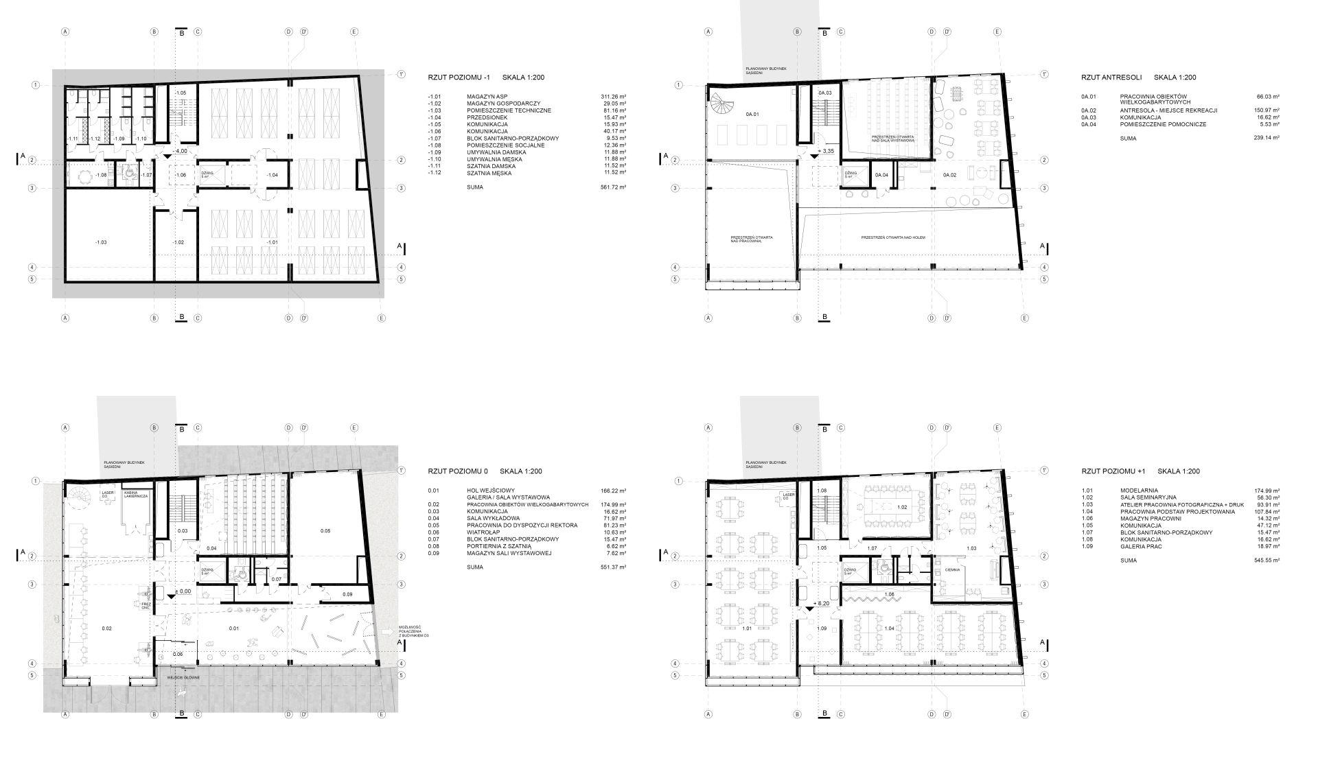
Nowy budynek ASP we Wrocławiu, proj. Projekt Praga, I nagroda; il. Piotr Banak
Autor: Archiwum serwisu
Rozwiń
Nowy budynek ASP we Wrocławiu: wyniki konkursu SARP

Nowy budynek ASP we Wrocławiu: wyniki konkursu SARP

Nowy budynek ASP we Wrocławiu, proj. Projekt Praga, I nagroda; il. Piotr Banak
Autor: Archiwum serwisu
Rozwiń
Magnifying Glass Plus Powiększ zdjęcie
Nowy budynek ASP we Wrocławiu: wyniki konkursu SARP

Nowy budynek ASP we Wrocławiu: wyniki konkursu SARP

Nowy budynek ASP we Wrocławiu, proj. Projekt Praga, I nagroda; il. Piotr Banak
Autor: Archiwum serwisu
Rozwiń
Nowy budynek ASP we Wrocławiu: wyniki konkursu SARP

Nowy budynek ASP we Wrocławiu: wyniki konkursu SARP

Nowy budynek ASP we Wrocławiu, proj. Projekt Praga, I nagroda; elewacja wschodnia
Autor: Archiwum serwisu
Rozwiń
Nowy budynek ASP we Wrocławiu: wyniki konkursu SARP

Nowy budynek ASP we Wrocławiu: wyniki konkursu SARP

Nowy budynek ASP we Wrocławiu, proj. Projekt Praga, I nagroda; elewacja zachodnia
Autor: Archiwum serwisu
Rozwiń
Nowy budynek ASP we Wrocławiu: wyniki konkursu SARP

Nowy budynek ASP we Wrocławiu: wyniki konkursu SARP

Nowy budynek ASP we Wrocławiu, proj. Projekt Praga, I nagroda; makieta: Kuba Morkowski i Adam Perka
Autor: Archiwum serwisu
Rozwiń
Nowy budynek ASP we Wrocławiu: wyniki konkursu SARP

Nowy budynek ASP we Wrocławiu: wyniki konkursu SARP

Nowy budynek ASP we Wrocławiu, proj. Projekt Praga, I nagroda; makieta: Kuba Morkowski i Adam Perka
Autor: Archiwum serwisu
Rozwiń
Nowy budynek ASP we Wrocławiu: wyniki konkursu SARP

Nowy budynek ASP we Wrocławiu: wyniki konkursu SARP

Nowy budynek ASP we Wrocławiu, proj. Projekt Praga, I nagroda; makieta: Kuba Morkowski i Adam Perka
Autor: Archiwum serwisu
Rozwiń
Nowy budynek ASP we Wrocławiu: wyniki konkursu SARP

Nowy budynek ASP we Wrocławiu: wyniki konkursu SARP

Nowy budynek ASP we Wrocławiu, proj. Projekt Praga, I nagroda; makieta: Kuba Morkowski i Adam Perka
Autor: Archiwum serwisu
Rozwiń
Magnifying Glass Plus Powiększ zdjęcie
Nowy budynek ASP we Wrocławiu: wyniki konkursu SARP

Nowy budynek ASP we Wrocławiu: wyniki konkursu SARP

Nowy budynek ASP we Wrocławiu, proj. KXM i Lahdelma & Mahlamäki, II nagroda
Autor: Archiwum serwisu
Rozwiń
Magnifying Glass Plus Powiększ zdjęcie
Nowy budynek ASP we Wrocławiu: wyniki konkursu SARP

Nowy budynek ASP we Wrocławiu: wyniki konkursu SARP

Nowy budynek ASP we Wrocławiu, proj. KXM i Lahdelma & Mahlamäki, II nagroda
Autor: Archiwum serwisu
Rozwiń
Magnifying Glass Plus Powiększ zdjęcie
Nowy budynek ASP we Wrocławiu: wyniki konkursu SARP

Nowy budynek ASP we Wrocławiu: wyniki konkursu SARP

Nowy budynek ASP we Wrocławiu, proj. KXM i Lahdelma & Mahlamäki, II nagroda
Autor: Archiwum serwisu
Rozwiń
Magnifying Glass Plus Powiększ zdjęcie
Nowy budynek ASP we Wrocławiu: wyniki konkursu SARP

Nowy budynek ASP we Wrocławiu: wyniki konkursu SARP

Nowy budynek ASP we Wrocławiu, proj. KXM i Lahdelma & Mahlamäki, II nagroda
Autor: Archiwum serwisu
Rozwiń
Magnifying Glass Plus Powiększ zdjęcie
Nowy budynek ASP we Wrocławiu: wyniki konkursu SARP

Nowy budynek ASP we Wrocławiu: wyniki konkursu SARP

Nowy budynek ASP we Wrocławiu, proj. KXM i Lahdelma & Mahlamäki, II nagroda
Autor: Archiwum serwisu
Rozwiń
Magnifying Glass Plus Powiększ zdjęcie
Nowy budynek ASP we Wrocławiu: wyniki konkursu SARP

Nowy budynek ASP we Wrocławiu: wyniki konkursu SARP

Nowy budynek ASP we Wrocławiu, proj. KXM i Lahdelma & Mahlamäki, II nagroda
Autor: Archiwum serwisu
Rozwiń
Magnifying Glass Plus Powiększ zdjęcie
Nowy budynek ASP we Wrocławiu: wyniki konkursu SARP

Nowy budynek ASP we Wrocławiu: wyniki konkursu SARP

Nowy budynek ASP we Wrocławiu, proj. KXM i Lahdelma & Mahlamäki, II nagroda
Autor: Archiwum serwisu
Rozwiń
Magnifying Glass Plus Powiększ zdjęcie
Nowy budynek ASP we Wrocławiu: wyniki konkursu SARP

Nowy budynek ASP we Wrocławiu: wyniki konkursu SARP

Nowy budynek ASP we Wrocławiu, proj. KXM i Lahdelma & Mahlamäki, II nagroda
Autor: Archiwum serwisu
Rozwiń
Magnifying Glass Plus Powiększ zdjęcie
Nowy budynek ASP we Wrocławiu: wyniki konkursu SARP

Nowy budynek ASP we Wrocławiu: wyniki konkursu SARP

Nowy budynek ASP we Wrocławiu, proj. KXM i Lahdelma & Mahlamäki, II nagroda
Autor: Archiwum serwisu
Rozwiń
Magnifying Glass Plus Powiększ zdjęcie
Nowy budynek ASP we Wrocławiu: wyniki konkursu SARP

Nowy budynek ASP we Wrocławiu: wyniki konkursu SARP

Nowy budynek ASP we Wrocławiu, proj. KXM i Lahdelma & Mahlamäki, II nagroda
Autor: Archiwum serwisu
Rozwiń
Nowy budynek ASP we Wrocławiu: wyniki konkursu SARP

Nowy budynek ASP we Wrocławiu: wyniki konkursu SARP

Nowy budynek ASP we Wrocławiu, proj. KXM i Lahdelma & Mahlamäki, II nagroda
Autor: Archiwum serwisu
Rozwiń
Magnifying Glass Plus Powiększ zdjęcie
Nowy budynek ASP we Wrocławiu: wyniki konkursu SARP

Nowy budynek ASP we Wrocławiu: wyniki konkursu SARP

Nowy budynek ASP we Wrocławiu, proj. KXM i Lahdelma & Mahlamäki, II nagroda
Autor: Archiwum serwisu
Rozwiń
Nowy budynek ASP we Wrocławiu: wyniki konkursu SARP

Nowy budynek ASP we Wrocławiu: wyniki konkursu SARP

Nowy budynek ASP we Wrocławiu, proj. KXM i Lahdelma & Mahlamäki, II nagroda
Autor: Archiwum serwisu
Rozwiń
Nowy budynek ASP we Wrocławiu: wyniki konkursu SARP

Nowy budynek ASP we Wrocławiu: wyniki konkursu SARP

Nowy budynek ASP we Wrocławiu, proj. KXM i Lahdelma & Mahlamäki, II nagroda
Autor: Archiwum serwisu
Rozwiń
Nowy budynek ASP we Wrocławiu: wyniki konkursu SARP

Nowy budynek ASP we Wrocławiu: wyniki konkursu SARP

Nowy budynek ASP we Wrocławiu, proj. WXCA III nagroda
Autor: Archiwum serwisu
Rozwiń
Nowy budynek ASP we Wrocławiu: wyniki konkursu SARP

Nowy budynek ASP we Wrocławiu: wyniki konkursu SARP

Nowy budynek ASP we Wrocławiu, proj. WXCA III nagroda
Autor: Archiwum serwisu
Rozwiń
Nowy budynek ASP we Wrocławiu: wyniki konkursu SARP

Nowy budynek ASP we Wrocławiu: wyniki konkursu SARP

Nowy budynek ASP we Wrocławiu, proj. WXCA III nagroda
Autor: Archiwum serwisu
Rozwiń
Nowy budynek ASP we Wrocławiu: wyniki konkursu SARP

Nowy budynek ASP we Wrocławiu: wyniki konkursu SARP

Nowy budynek ASP we Wrocławiu, proj. WXCA III nagroda
Autor: Archiwum serwisu
Rozwiń
Nowy budynek ASP we Wrocławiu: wyniki konkursu SARP

Nowy budynek ASP we Wrocławiu: wyniki konkursu SARP

Nowy budynek ASP we Wrocławiu, proj. WXCA III nagroda
Autor: Archiwum serwisu
Rozwiń
Magnifying Glass Plus Powiększ zdjęcie
Nowy budynek ASP we Wrocławiu: wyniki konkursu SARP

Nowy budynek ASP we Wrocławiu: wyniki konkursu SARP

Nowy budynek ASP we Wrocławiu, proj. WXCA III nagroda
Autor: Archiwum serwisu
Rozwiń
Magnifying Glass Plus Powiększ zdjęcie
Nowy budynek ASP we Wrocławiu: wyniki konkursu SARP

Nowy budynek ASP we Wrocławiu: wyniki konkursu SARP

Nowy budynek ASP we Wrocławiu, proj. WXCA III nagroda
Autor: Archiwum serwisu
Rozwiń
Magnifying Glass Plus Powiększ zdjęcie
Nowy budynek ASP we Wrocławiu: wyniki konkursu SARP

Nowy budynek ASP we Wrocławiu: wyniki konkursu SARP

Nowy budynek ASP we Wrocławiu, proj. WXCA III nagroda
Autor: Archiwum serwisu
Rozwiń
Magnifying Glass Plus Powiększ zdjęcie
Nowy budynek ASP we Wrocławiu: wyniki konkursu SARP

Nowy budynek ASP we Wrocławiu: wyniki konkursu SARP

Nowy budynek ASP we Wrocławiu, proj. WXCA III nagroda
Autor: Archiwum serwisu
Rozwiń
Magnifying Glass Plus Powiększ zdjęcie
Nowy budynek ASP we Wrocławiu: wyniki konkursu SARP

Nowy budynek ASP we Wrocławiu: wyniki konkursu SARP

Nowy budynek ASP we Wrocławiu, proj. WXCA III nagroda
Autor: Archiwum serwisu
Rozwiń
Nowy budynek ASP we Wrocławiu: wyniki konkursu SARP

Nowy budynek ASP we Wrocławiu: wyniki konkursu SARP

Nowy budynek ASP we Wrocławiu, proj. WXCA III nagroda
Autor: Archiwum serwisu
Rozwiń
Nowy budynek ASP we Wrocławiu: wyniki konkursu SARP

Nowy budynek ASP we Wrocławiu: wyniki konkursu SARP

Nowy budynek ASP we Wrocławiu, proj. WXCA III nagroda
Autor: Archiwum serwisu
Rozwiń
Nowy budynek ASP we Wrocławiu: wyniki konkursu SARP

Nowy budynek ASP we Wrocławiu: wyniki konkursu SARP

Nowy budynek ASP we Wrocławiu, proj. WXCA III nagroda
Autor: Archiwum serwisu
Rozwiń
Nowy budynek ASP we Wrocławiu: wyniki konkursu SARP

Nowy budynek ASP we Wrocławiu: wyniki konkursu SARP

Nowy budynek ASP we Wrocławiu, proj. WXCA III nagroda
Autor: Archiwum serwisu
Rozwiń
Magnifying Glass Plus Powiększ zdjęcie
Nowy budynek ASP we Wrocławiu: wyniki konkursu SARP

Nowy budynek ASP we Wrocławiu: wyniki konkursu SARP

Nowy budynek ASP we Wrocławiu, proj. WXCA III nagroda
Autor: Archiwum serwisu
Rozwiń
Magnifying Glass Plus Powiększ zdjęcie
Nowy budynek ASP we Wrocławiu: wyniki konkursu SARP

Nowy budynek ASP we Wrocławiu: wyniki konkursu SARP

Nowy budynek ASP we Wrocławiu, proj. nsMoonStudio, wyróżnienie
Autor: Archiwum serwisu
Rozwiń
Magnifying Glass Plus Powiększ zdjęcie
Nowy budynek ASP we Wrocławiu: wyniki konkursu SARP

Nowy budynek ASP we Wrocławiu: wyniki konkursu SARP

Nowy budynek ASP we Wrocławiu, proj. nsMoonStudio, wyróżnienie
Autor: Archiwum serwisu
Rozwiń
Nowy budynek ASP we Wrocławiu: wyniki konkursu SARP

Nowy budynek ASP we Wrocławiu: wyniki konkursu SARP

Nowy budynek ASP we Wrocławiu, proj. nsMoonStudio, wyróżnienie
Autor: Archiwum serwisu
Rozwiń
Magnifying Glass Plus Powiększ zdjęcie
Nowy budynek ASP we Wrocławiu: wyniki konkursu SARP

Nowy budynek ASP we Wrocławiu: wyniki konkursu SARP

Nowy budynek ASP we Wrocławiu, proj. nsMoonStudio, wyróżnienie
Autor: Archiwum serwisu
Rozwiń
Magnifying Glass Plus Powiększ zdjęcie
Nowy budynek ASP we Wrocławiu: wyniki konkursu SARP

Nowy budynek ASP we Wrocławiu: wyniki konkursu SARP

Nowy budynek ASP we Wrocławiu, proj. nsMoonStudio, wyróżnienie
Autor: Archiwum serwisu
Rozwiń
Magnifying Glass Plus Powiększ zdjęcie
Nowy budynek ASP we Wrocławiu: wyniki konkursu SARP

Nowy budynek ASP we Wrocławiu: wyniki konkursu SARP

Nowy budynek ASP we Wrocławiu, proj. nsMoonStudio, wyróżnienie
Autor: Archiwum serwisu
Rozwiń
Nowy budynek ASP we Wrocławiu: wyniki konkursu SARP

Nowy budynek ASP we Wrocławiu: wyniki konkursu SARP

Nowy budynek ASP we Wrocławiu, proj. nsMoonStudio, wyróżnienie
Autor: Archiwum serwisu
Rozwiń
Magnifying Glass Plus Powiększ zdjęcie
Nowy budynek ASP we Wrocławiu: wyniki konkursu SARP

Nowy budynek ASP we Wrocławiu: wyniki konkursu SARP

Nowy budynek ASP we Wrocławiu, proj. nsMoonStudio, wyróżnienie
Autor: Archiwum serwisu
Rozwiń
Magnifying Glass Plus Powiększ zdjęcie
Nowy budynek ASP we Wrocławiu: wyniki konkursu SARP

Nowy budynek ASP we Wrocławiu: wyniki konkursu SARP

Nowy budynek ASP we Wrocławiu, proj. nsMoonStudio, wyróżnienie
Autor: Archiwum serwisu
Rozwiń
Nowy budynek ASP we Wrocławiu: wyniki konkursu SARP

Nowy budynek ASP we Wrocławiu: wyniki konkursu SARP

Nowy budynek ASP we Wrocławiu, proj. nsMoonStudio, wyróżnienie
Autor: Archiwum serwisu
Rozwiń
Nowy budynek ASP we Wrocławiu: wyniki konkursu SARP

Nowy budynek ASP we Wrocławiu: wyniki konkursu SARP

Nowy budynek ASP we Wrocławiu, proj. nsMoonStudio, wyróżnienie
Autor: Archiwum serwisu
Rozwiń
Powrót
Nowy budynek ASP we Wrocławiu: wyniki konkursu SARP
Nowy budynek ASP we Wrocławiu: wyniki konkursu SARP
Nowy budynek ASP we Wrocławiu: wyniki konkursu SARP
Nowy budynek ASP we Wrocławiu: wyniki konkursu SARP
Nowy budynek ASP we Wrocławiu: wyniki konkursu SARP
Nowy budynek ASP we Wrocławiu: wyniki konkursu SARP
Nowy budynek ASP we Wrocławiu: wyniki konkursu SARP
Nowy budynek ASP we Wrocławiu: wyniki konkursu SARP
Nowy budynek ASP we Wrocławiu: wyniki konkursu SARP
Nowy budynek ASP we Wrocławiu: wyniki konkursu SARP
Nowy budynek ASP we Wrocławiu: wyniki konkursu SARP
Nowy budynek ASP we Wrocławiu: wyniki konkursu SARP
Nowy budynek ASP we Wrocławiu: wyniki konkursu SARP
Nowy budynek ASP we Wrocławiu: wyniki konkursu SARP
Nowy budynek ASP we Wrocławiu: wyniki konkursu SARP
Nowy budynek ASP we Wrocławiu: wyniki konkursu SARP
Nowy budynek ASP we Wrocławiu: wyniki konkursu SARP
Nowy budynek ASP we Wrocławiu: wyniki konkursu SARP
Nowy budynek ASP we Wrocławiu: wyniki konkursu SARP
Nowy budynek ASP we Wrocławiu: wyniki konkursu SARP
Nowy budynek ASP we Wrocławiu: wyniki konkursu SARP
Nowy budynek ASP we Wrocławiu: wyniki konkursu SARP
Nowy budynek ASP we Wrocławiu: wyniki konkursu SARP
Nowy budynek ASP we Wrocławiu: wyniki konkursu SARP
Nowy budynek ASP we Wrocławiu: wyniki konkursu SARP
Nowy budynek ASP we Wrocławiu: wyniki konkursu SARP
Nowy budynek ASP we Wrocławiu: wyniki konkursu SARP
Nowy budynek ASP we Wrocławiu: wyniki konkursu SARP
Nowy budynek ASP we Wrocławiu: wyniki konkursu SARP
Nowy budynek ASP we Wrocławiu: wyniki konkursu SARP
Nowy budynek ASP we Wrocławiu: wyniki konkursu SARP
Nowy budynek ASP we Wrocławiu: wyniki konkursu SARP
Nowy budynek ASP we Wrocławiu: wyniki konkursu SARP
Nowy budynek ASP we Wrocławiu: wyniki konkursu SARP
Nowy budynek ASP we Wrocławiu: wyniki konkursu SARP
Nowy budynek ASP we Wrocławiu: wyniki konkursu SARP
Nowy budynek ASP we Wrocławiu: wyniki konkursu SARP
Nowy budynek ASP we Wrocławiu: wyniki konkursu SARP
Nowy budynek ASP we Wrocławiu: wyniki konkursu SARP
Nowy budynek ASP we Wrocławiu: wyniki konkursu SARP
Nowy budynek ASP we Wrocławiu: wyniki konkursu SARP
Nowy budynek ASP we Wrocławiu: wyniki konkursu SARP
Nowy budynek ASP we Wrocławiu: wyniki konkursu SARP
Nowy budynek ASP we Wrocławiu: wyniki konkursu SARP
Nowy budynek ASP we Wrocławiu: wyniki konkursu SARP
Nowy budynek ASP we Wrocławiu: wyniki konkursu SARP
Nowy budynek ASP we Wrocławiu: wyniki konkursu SARP
Nowy budynek ASP we Wrocławiu: wyniki konkursu SARP
Nowy budynek ASP we Wrocławiu: wyniki konkursu SARP
Zamknij reklamę za s.
X
Zamknij reklamę
...
powiększone zdjęcie
email