Projektowanie obiektów z funkcją opieki dla osób z demencją - Architektura-Murator
Magnifying Glass Plus Powiększ zdjęcie
Projektowanie obiektów z funkcją opieki dla osób z demencją

Projektowanie obiektów z funkcją opieki dla osób z demencją

Wizualizacja parkingu wraz ze strefą wejściową ośrodka przeznaczonego dla osób z chorobami otępiennymi, autorzy: Wiktoria Grzechnik, 2021
Autor: Archiwum serwisu
Rozwiń
Magnifying Glass Plus Powiększ zdjęcie
Projektowanie obiektów z funkcją opieki dla osób z demencją

Projektowanie obiektów z funkcją opieki dla osób z demencją

Rzut parkingu i strefy wejścia, autorzy: Dominika Łuc i Jakub Brodziński
Autor: Archiwum serwisu
Rozwiń
Magnifying Glass Plus Powiększ zdjęcie
Projektowanie obiektów z funkcją opieki dla osób z demencją

Projektowanie obiektów z funkcją opieki dla osób z demencją

Rzut sali chorych dla osób z chorobami otępiennymi, autorzy:Wiktoria Grzechnik, 2021. Sala chorych jest jednym z ważniejszych pomieszczeń w opiece nad chorym, gdyż powinna zapewniać poczucie prywatności, ograniczenie nadmiaru bodźców oraz pełną funkcjonalność w zakresie przestrzeni ruchu.
Autor: Archiwum serwisu
Rozwiń
Projektowanie obiektów z funkcją opieki dla osób z demencją

Projektowanie obiektów z funkcją opieki dla osób z demencją

Wizualizacja toalety w pokoju chorego, autorzy: Wiktoria Grzechnik, Monika Kądziołka, 2021
Autor: Archiwum serwisu
Rozwiń
Magnifying Glass Plus Powiększ zdjęcie
Projektowanie obiektów z funkcją opieki dla osób z demencją

Projektowanie obiektów z funkcją opieki dla osób z demencją

Wizualizacja toalety w pokoju chorego, autorzy: Wiktoria Grzechnik Pomieszczenie łazienki zlokalizowanej w strefie chorego ma zapewniać jak największą samodzielność w czynnościach higienicznych, w tym jak największą funkcjonalność w strefie umywalki, toalety i prysznica.
Autor: Archiwum serwisu
Rozwiń
Magnifying Glass Plus Powiększ zdjęcie
Projektowanie obiektów z funkcją opieki dla osób z demencją

Projektowanie obiektów z funkcją opieki dla osób z demencją

Wizualizacja sali terapii grupowej, autor: Wiktoria Grzechnik, 2021. Pomieszczenia służące terapii grupowej należą do strefy społecznej, niezwykle ważnej dla aktywności chorego i podtrzymania jego relacji społecznych. Istotnym elementem w projektowaniu tego typu pomieszczeń jest dbałość o ograniczenie bodźców (wzrokowych, dźwiękowych) oraz możliwość wyboru poziomu uczestniczenia w aktywnościach grupy.
Autor: Archiwum serwisu
Rozwiń
Magnifying Glass Plus Powiększ zdjęcie
Projektowanie obiektów z funkcją opieki dla osób z demencją

Projektowanie obiektów z funkcją opieki dla osób z demencją

Wizualizacja sali terapii grupowej, autor: Wiktoria Grzechnik, 2021
Autor: Archiwum serwisu
Rozwiń
Magnifying Glass Plus Powiększ zdjęcie
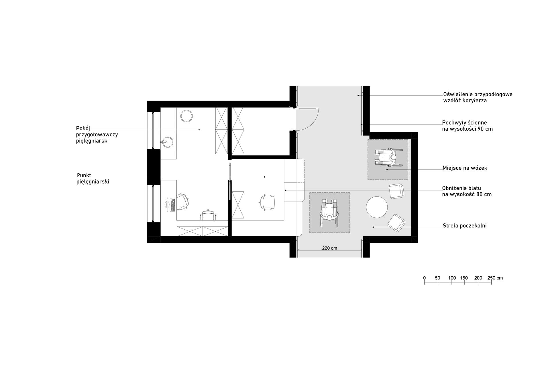
Projektowanie obiektów z funkcją opieki dla osób z demencją

Projektowanie obiektów z funkcją opieki dla osób z demencją

Rzut dyżurki pielęgniarek, autor: Nikola Noszczyńska Korytarze stanowią ważny element nie tylko z uwagi na zapewnienie chorym orientacji w budynku (oznakowanie, akcenty dekoracyjne), ale także z uwagi na możliwość biernej obserwacji życia w placówce. Dlatego łączenie miejsc wypoczynku z miejscami pracy personelu służy poczuciu bezpieczeństwa i uspokaja chorego.
Autor: Archiwum serwisu
Rozwiń
Magnifying Glass Plus Powiększ zdjęcie
Projektowanie obiektów z funkcją opieki dla osób z demencją

Projektowanie obiektów z funkcją opieki dla osób z demencją

Wizualizacja dyżurki pielęgniarek, autorzy: Wiktoria Grzechnik
Autor: Archiwum serwisu
Rozwiń
Magnifying Glass Plus Powiększ zdjęcie
Projektowanie obiektów z funkcją opieki dla osób z demencją

Projektowanie obiektów z funkcją opieki dla osób z demencją

Wizualizacja dyżurki pielęgniarek, autorzy: Wiktoria Grzechnik
Autor: Archiwum serwisu
Rozwiń
Powrót
Projektowanie obiektów z funkcją opieki dla osób z demencją
Projektowanie obiektów z funkcją opieki dla osób z demencją
Projektowanie obiektów z funkcją opieki dla osób z demencją
Projektowanie obiektów z funkcją opieki dla osób z demencją
Projektowanie obiektów z funkcją opieki dla osób z demencją
Projektowanie obiektów z funkcją opieki dla osób z demencją
Projektowanie obiektów z funkcją opieki dla osób z demencją
Projektowanie obiektów z funkcją opieki dla osób z demencją
Projektowanie obiektów z funkcją opieki dla osób z demencją
Projektowanie obiektów z funkcją opieki dla osób z demencją
Zamknij reklamę za s.
X
Zamknij reklamę
...
powiększone zdjęcie
email