Przebudowa domu projektu Romualda Gutta - zobacz zdjęcia willi na Starym Żoliborzu - Architektura-Murator
Magnifying Glass Plus Powiększ zdjęcie
Przebudowa domu projektu Romualda Gutta

Przebudowa domu projektu Romualda Gutta

Autor: Aleksandra Targońska/ Archiwum prywatne
Magnifying Glass Plus Powiększ zdjęcie
Przebudowa domu projektu Romualda Gutta

Przebudowa domu projektu Romualda Gutta

Przed i po
Autor: Aleksandra Targońska/ Archiwum prywatne
Rozwiń
Magnifying Glass Plus Powiększ zdjęcie
Przebudowa domu projektu Romualda Gutta

Przebudowa domu projektu Romualda Gutta

Autor: Aleksandra Targońska/ Archiwum prywatne
Magnifying Glass Plus Powiększ zdjęcie
Przebudowa domu projektu Romualda Gutta

Przebudowa domu projektu Romualda Gutta

Przed i po - od strony ogrodu.
Autor: Aleksandra Targońska/ Archiwum prywatne
Rozwiń
Magnifying Glass Plus Powiększ zdjęcie
Przebudowa domu projektu Romualda Gutta

Przebudowa domu projektu Romualda Gutta

Autor: Aleksandra Targońska/ Archiwum prywatne
Magnifying Glass Plus Powiększ zdjęcie
Przebudowa domu projektu Romualda Gutta - rzuty

Przebudowa domu projektu Romualda Gutta - rzuty

Rzut parteru
Autor: Pracownia itektoniczna TZA/ Archiwum prywatne
Rozwiń
Magnifying Glass Plus Powiększ zdjęcie
Przebudowa domu projektu Romualda Gutta

Przebudowa domu projektu Romualda Gutta

Autor: Marcin Grabowiecki/ Archiwum prywatne
Magnifying Glass Plus Powiększ zdjęcie
Przebudowa domu projektu Romualda Gutta

Przebudowa domu projektu Romualda Gutta

Autor: Marcin Grabowiecki/ Archiwum prywatne
Magnifying Glass Plus Powiększ zdjęcie
Przebudowa domu projektu Romualda Gutta

Przebudowa domu projektu Romualda Gutta

Autor: Aleksandra Targońska/ Archiwum prywatne
Magnifying Glass Plus Powiększ zdjęcie
Przebudowa domu projektu Romualda Gutta - rzuty

Przebudowa domu projektu Romualda Gutta - rzuty

Przekrój
Autor: Pracownia itektoniczna TZA/ Archiwum prywatne
Rozwiń
Magnifying Glass Plus Powiększ zdjęcie
Przebudowa domu projektu Romualda Gutta

Przebudowa domu projektu Romualda Gutta

Autor: Marcin Grabowiecki/ Archiwum prywatne
Magnifying Glass Plus Powiększ zdjęcie
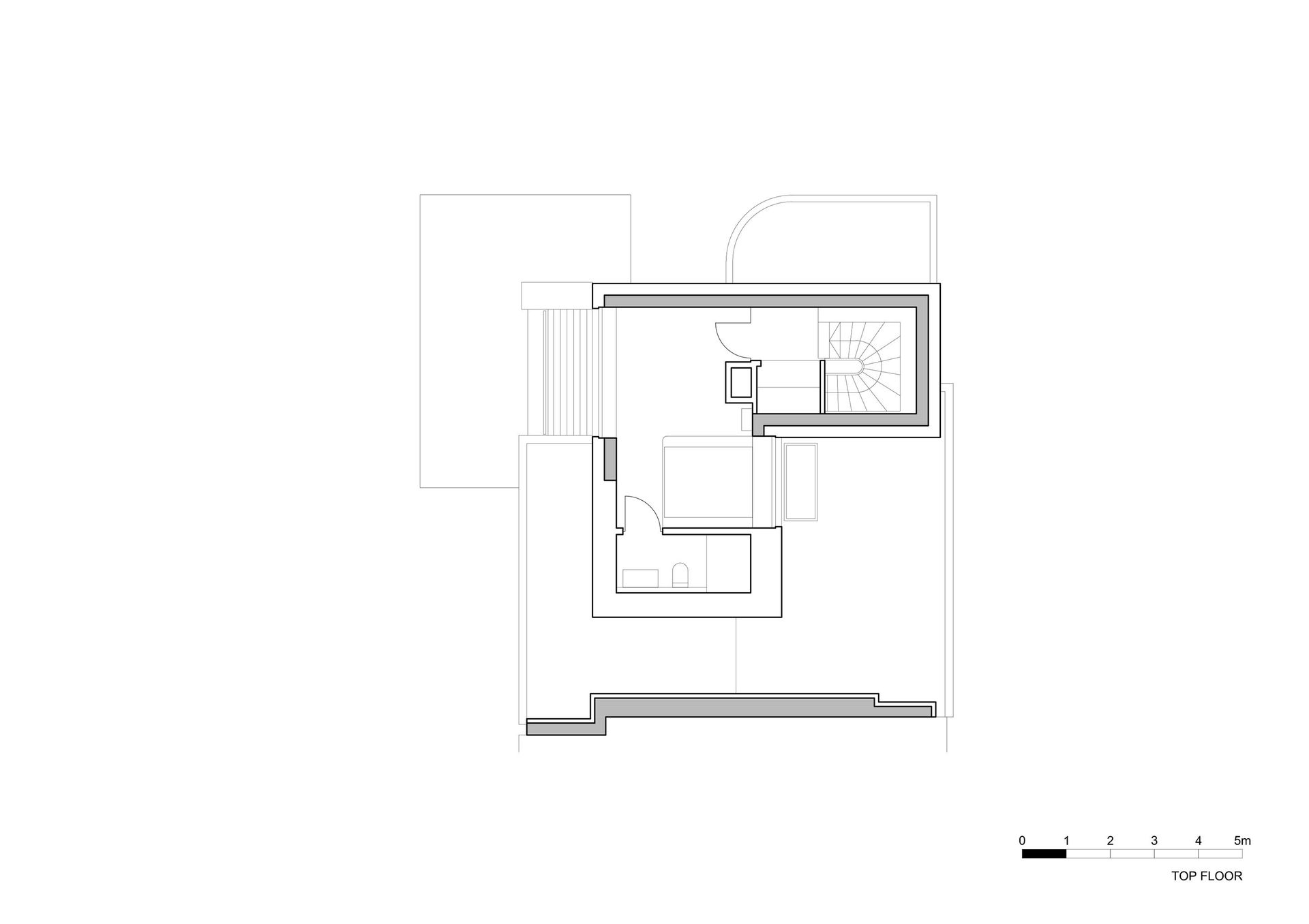
Przebudowa domu projektu Romualda Gutta - rzuty

Przebudowa domu projektu Romualda Gutta - rzuty

Rzut ostatniego piętra
Autor: Pracownia itektoniczna TZA/ Archiwum prywatne
Rozwiń
Magnifying Glass Plus Powiększ zdjęcie
Przebudowa domu projektu Romualda Gutta

Przebudowa domu projektu Romualda Gutta

Autor: Aleksandra Targońska/ Archiwum prywatne
Magnifying Glass Plus Powiększ zdjęcie
Przebudowa domu projektu Romualda Gutta

Przebudowa domu projektu Romualda Gutta

Autor: Aleksandra Targońska/ Archiwum prywatne
Magnifying Glass Plus Powiększ zdjęcie
Przebudowa domu projektu Romualda Gutta

Przebudowa domu projektu Romualda Gutta

Autor: Aleksandra Targońska/ Archiwum prywatne
Magnifying Glass Plus Powiększ zdjęcie
Przebudowa domu projektu Romualda Gutta

Przebudowa domu projektu Romualda Gutta

Autor: Marcin Grabowiecki/ Archiwum prywatne
Magnifying Glass Plus Powiększ zdjęcie
Przebudowa domu projektu Romualda Gutta - rzuty

Przebudowa domu projektu Romualda Gutta - rzuty

Rzut pierwszego piętra
Autor: Pracownia itektoniczna TZA/ Archiwum prywatne
Rozwiń
Magnifying Glass Plus Powiększ zdjęcie
Przebudowa domu projektu Romualda Gutta

Przebudowa domu projektu Romualda Gutta

Autor: Aleksandra Targońska/ Archiwum prywatne
Magnifying Glass Plus Powiększ zdjęcie
Przebudowa domu projektu Romualda Gutta - rzuty

Przebudowa domu projektu Romualda Gutta - rzuty

Autor: Pracownia itektoniczna TZA/ Archiwum prywatne
Magnifying Glass Plus Powiększ zdjęcie
Przebudowa domu projektu Romualda Gutta

Przebudowa domu projektu Romualda Gutta

Autor: Marcin Grabowiecki/ Archiwum prywatne
Magnifying Glass Plus Powiększ zdjęcie
Przebudowa domu projektu Romualda Gutta

Przebudowa domu projektu Romualda Gutta

Autor: Marcin Grabowiecki/ Archiwum prywatne
Magnifying Glass Plus Powiększ zdjęcie
Przebudowa domu projektu Romualda Gutta

Przebudowa domu projektu Romualda Gutta

Autor: Marcin Grabowiecki/ Archiwum prywatne
Magnifying Glass Plus Powiększ zdjęcie
Przebudowa domu projektu Romualda Gutta - rzuty

Przebudowa domu projektu Romualda Gutta - rzuty

Rzut poziomu -1
Autor: Pracownia itektoniczna TZA/ Archiwum prywatne
Rozwiń
Magnifying Glass Plus Powiększ zdjęcie
Przebudowa domu projektu Romualda Gutta

Przebudowa domu projektu Romualda Gutta

Autor: Marcin Grabowiecki/ Archiwum prywatne
Magnifying Glass Plus Powiększ zdjęcie
Przebudowa domu projektu Romualda Gutta

Przebudowa domu projektu Romualda Gutta

Autor: Marcin Grabowiecki/ Archiwum prywatne
Magnifying Glass Plus Powiększ zdjęcie
Przebudowa domu projektu Romualda Gutta

Przebudowa domu projektu Romualda Gutta

Autor: Marcin Grabowiecki/ Archiwum prywatne
Magnifying Glass Plus Powiększ zdjęcie
Przebudowa domu projektu Romualda Gutta

Przebudowa domu projektu Romualda Gutta

Autor: Marcin Grabowiecki/ Archiwum prywatne
Magnifying Glass Plus Powiększ zdjęcie
Przebudowa domu projektu Romualda Gutta

Przebudowa domu projektu Romualda Gutta

Autor: Marcin Grabowiecki/ Archiwum prywatne
Magnifying Glass Plus Powiększ zdjęcie
Przebudowa domu projektu Romualda Gutta

Przebudowa domu projektu Romualda Gutta

Autor: Marcin Grabowiecki/ Archiwum prywatne
Magnifying Glass Plus Powiększ zdjęcie
Przebudowa domu projektu Romualda Gutta

Przebudowa domu projektu Romualda Gutta

Autor: Marcin Grabowiecki/ Archiwum prywatne
Magnifying Glass Plus Powiększ zdjęcie
Przebudowa domu projektu Romualda Gutta

Przebudowa domu projektu Romualda Gutta

Autor: Marcin Grabowiecki/ Archiwum prywatne
Powrót
Przebudowa domu projektu Romualda Gutta
Przebudowa domu projektu Romualda Gutta
Przebudowa domu projektu Romualda Gutta
Przebudowa domu projektu Romualda Gutta
Przebudowa domu projektu Romualda Gutta
Przebudowa domu projektu Romualda Gutta - rzuty
Przebudowa domu projektu Romualda Gutta
Przebudowa domu projektu Romualda Gutta
Przebudowa domu projektu Romualda Gutta
Przebudowa domu projektu Romualda Gutta - rzuty
Przebudowa domu projektu Romualda Gutta
Przebudowa domu projektu Romualda Gutta - rzuty
Przebudowa domu projektu Romualda Gutta
Przebudowa domu projektu Romualda Gutta
Przebudowa domu projektu Romualda Gutta
Przebudowa domu projektu Romualda Gutta
Przebudowa domu projektu Romualda Gutta - rzuty
Przebudowa domu projektu Romualda Gutta
Przebudowa domu projektu Romualda Gutta - rzuty
Przebudowa domu projektu Romualda Gutta
Przebudowa domu projektu Romualda Gutta
Przebudowa domu projektu Romualda Gutta
Przebudowa domu projektu Romualda Gutta - rzuty
Przebudowa domu projektu Romualda Gutta
Przebudowa domu projektu Romualda Gutta
Przebudowa domu projektu Romualda Gutta
Przebudowa domu projektu Romualda Gutta
Przebudowa domu projektu Romualda Gutta
Przebudowa domu projektu Romualda Gutta
Przebudowa domu projektu Romualda Gutta
Przebudowa domu projektu Romualda Gutta
Zamknij reklamę za s.
X
Zamknij reklamę
...
powiększone zdjęcie
email