Saint-Gobain Architecture Student Contest 2023 - Architektura-Murator
Saint-Gobain Architecture Student Contest 2023

Saint-Gobain Architecture Student Contest 2023

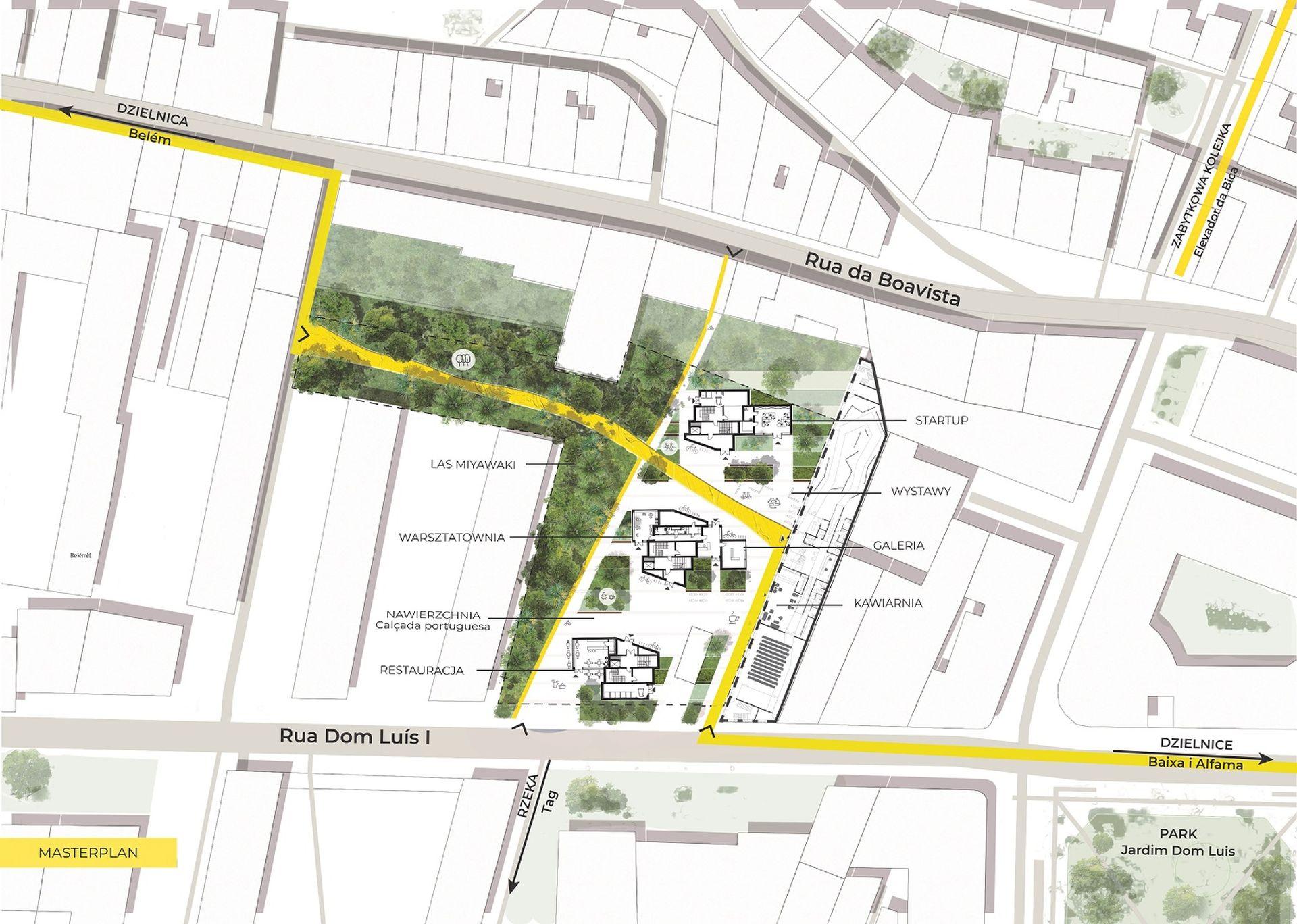
„Yellow”, zwycięski projekt ogólnopolskiego etapu Architecture Student Contest 2023 autorstwa Magdaleny Kazulak i Konstancji Stanieckiej, studentek Wydziału Architektury Politechniki Wrocławskiej
Autor: serwis prasowy/ Materiały prasowe
Rozwiń
Magnifying Glass Plus Powiększ zdjęcie
Saint-Gobain Architecture Student Contest 2023

Saint-Gobain Architecture Student Contest 2023

„Yellow”, zwycięski projekt ogólnopolskiego etapu Architecture Student Contest 2023 autorstwa Magdaleny Kazulak i Konstancji Stanieckiej, studentek Wydziału Architektury Politechniki Wrocławskiej
Autor: serwis prasowy/ Materiały prasowe
Rozwiń
Saint-Gobain Architecture Student Contest 2023

Saint-Gobain Architecture Student Contest 2023

„Yellow”, zwycięski projekt ogólnopolskiego etapu Architecture Student Contest 2023 autorstwa Magdaleny Kazulak i Konstancji Stanieckiej, studentek Wydziału Architektury Politechniki Wrocławskiej
Autor: serwis prasowy/ Materiały prasowe
Rozwiń
Magnifying Glass Plus Powiększ zdjęcie
Saint-Gobain Architecture Student Contest 2023

Saint-Gobain Architecture Student Contest 2023

„Yellow”, zwycięski projekt ogólnopolskiego etapu Architecture Student Contest 2023 autorstwa Magdaleny Kazulak i Konstancji Stanieckiej, studentek Wydziału Architektury Politechniki Wrocławskiej
Autor: serwis prasowy/ Materiały prasowe
Rozwiń
Magnifying Glass Plus Powiększ zdjęcie
Saint-Gobain Architecture Student Contest 2023

Saint-Gobain Architecture Student Contest 2023

Miejsce II - Projekt Obieg, Aleksandra Tądel i Magdalena Strauchmann, Politechnika Wrocławska
Autor: serwis prasowy/ Materiały prasowe
Rozwiń
Saint-Gobain Architecture Student Contest 2023

Saint-Gobain Architecture Student Contest 2023

Miejsce III - Projekt Miradouro clementina; Darya Golod i Vera Platonava, Politechnika Warszawska
Autor: serwis prasowy/ Materiały prasowe
Rozwiń
Saint-Gobain Architecture Student Contest 2023

Saint-Gobain Architecture Student Contest 2023

Wyróżnienie w kategorii Design - Projekt Aisle, Kalina Zawada i Nikola Czech, Politechnika Wrocławska
Autor: serwis prasowy/ Materiały prasowe
Rozwiń
Saint-Gobain Architecture Student Contest 2023

Saint-Gobain Architecture Student Contest 2023

Wyróżnienie w kategorii Innowacje - Projekt Stairway Garden, Michał Kolonko i Kajetan Rakoczy, Politechnika Śląska
Autor: serwis prasowy/ Materiały prasowe
Rozwiń
Saint-Gobain Architecture Student Contest 2023

Saint-Gobain Architecture Student Contest 2023

Special Prize - Projekt Individualmente, Zofia Sobieraj i Bartosz Michałowski, Politechnika Wrocławska
Autor: serwis prasowy/ Materiały prasowe
Rozwiń
Powrót
Saint-Gobain Architecture Student Contest 2023
Saint-Gobain Architecture Student Contest 2023
Saint-Gobain Architecture Student Contest 2023
Saint-Gobain Architecture Student Contest 2023
Saint-Gobain Architecture Student Contest 2023
Saint-Gobain Architecture Student Contest 2023
Saint-Gobain Architecture Student Contest 2023
Saint-Gobain Architecture Student Contest 2023
Saint-Gobain Architecture Student Contest 2023
Zamknij reklamę za s.
X
Zamknij reklamę
...
powiększone zdjęcie
email