Yoga House in the Bog - Architektura-Murator
Magnifying Glass Plus Powiększ zdjęcie
The Austra's Shelter. Wizualizacja elewacji frontowej

The Austra's Shelter. Wizualizacja elewacji frontowej

Autor: Weronika Plata/ Materiały prasowe
Magnifying Glass Plus Powiększ zdjęcie
Shemat lokalizacji założenia

Shemat lokalizacji założenia

Kompleks Austra’s Shelter oferuje nie tylko przestrzeń dla Domu Jogi. Aspiruje również do stworzenia bazy turystycznej dla okolicznych szlaków. Mając na względzie naturalną rzeźbę terenu, Dom Jogi w minimalny sposób ingeruje w otoczenie. Swym kształtem nawiązuje do tradycyjnego łotewskiego budownictwa
Autor: Weronika Plata/ Materiały prasowe
Rozwiń
Magnifying Glass Plus Powiększ zdjęcie
The Austra's Shelter. Wizualizacja elewacji bocznej

The Austra's Shelter. Wizualizacja elewacji bocznej

Autor: Weronika Plata/ Materiały prasowe
Magnifying Glass Plus Powiększ zdjęcie
Schemat idei.

Schemat idei.

Jedną z głównych idei projektowych była inspiracja tradycyjnym sposobem tkania materiałów. Wertykalny rytm fasady nawiązuje do osnowy krosna, zaś poprzeczne elementy odwołują się do tradycyjnych symboli kultury łotewskiej. Budynek Domu Jogi został zorientowany tak, aby móc w pełni wykorzystać południową ekspozycję słońca. Aby zapobiec przegrzewaniu budynku, zaprojektowano przesuwny system okiennic. Ma on na celu ograniczyć emisję sztucznego światła, które ma negatywny wpływ na otacząjącą florę i faunę
Autor: Weronika Plata/ Materiały prasowe
Rozwiń
Magnifying Glass Plus Powiększ zdjęcie
Wizualizacja sali jogi

Wizualizacja sali jogi

Autor: Weronika Plata/ Materiały prasowe
Magnifying Glass Plus Powiększ zdjęcie
Schemat kabin medytacji.

Schemat kabin medytacji.

W ramach kompleksu jogi, zaprojektowano również Kabiny Medytacji. Mają one na celu zapewnienie przestrzeni do wyciszenia się w przestrzeni lasu, gdzie użytkownicy mogą zaangażować swoje wszystkie zmysły. Kształt kabin nawiązuje do archetypu domu, który przywołuje skojarzenie bezpieczeństwa oraz harmonii. Trójwymiarowy system deskowania ma za zadanie przywołanie uczucia nieskończoności
Autor: Weronika Plata/ Materiały prasowe
Rozwiń
Magnifying Glass Plus Powiększ zdjęcie
The Austra's Shelter

The Austra's Shelter

Wizualizacja przykładowej sypialni
Autor: Weronika Plata/ Materiały prasowe
Rozwiń
Magnifying Glass Plus Powiększ zdjęcie
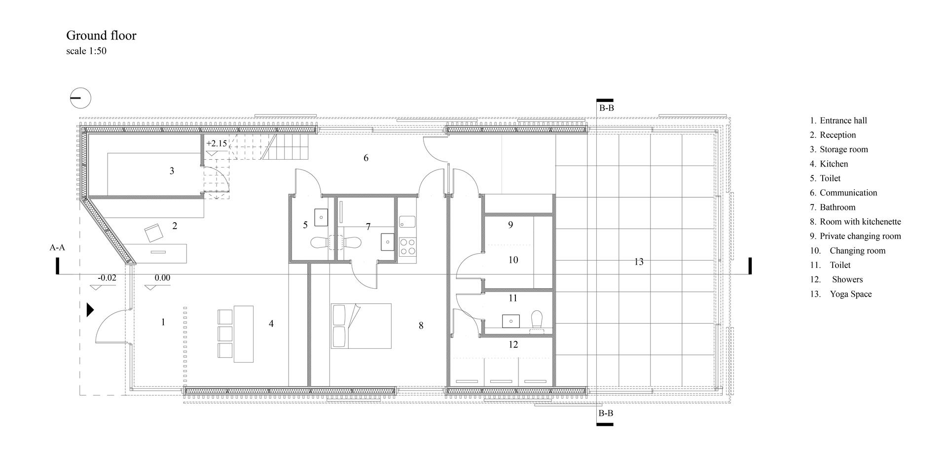
Rzut parteru

Rzut parteru

Autor: Weronika Plata/ Materiały prasowe
Przekrój szczegółowy

Przekrój szczegółowy

Autor: Weronika Plata/ Materiały prasowe
Magnifying Glass Plus Powiększ zdjęcie
Wizualizacja wnętrza sauny

Wizualizacja wnętrza sauny

W ramach kompleksu wellness, zaprojektowano inne, mniejsze funkcje towrzyszące, np. sauny, łaźnie, ogród do medytacji oraz kabiny turystyczne. Dzięki holistycznemu podejściu do tematu Domu Jogi, użytkownicy mogą urozmaicać swój wewnętrzny rozwój poprzez inne aktywności, jednocześnie dbając o swoją duszę oraz ciało
Autor: Weronika Plata/ Materiały prasowe
Rozwiń
Powrót
The Austra's Shelter. Wizualizacja elewacji frontowej
Shemat lokalizacji założenia
The Austra's Shelter. Wizualizacja elewacji bocznej
Schemat idei.
Wizualizacja sali jogi
Schemat kabin medytacji.
The Austra's Shelter
Rzut parteru
Przekrój szczegółowy
Wizualizacja wnętrza sauny
Zamknij reklamę za s.
X
Zamknij reklamę
...
powiększone zdjęcie
email