12 | Układ okien kształtuje modułowy charakter bryły budynku. Na przedłużeniu przeszkleń dolnych poziomów w każdym mieszkaniu zlokalizowane zostały balkony

i

Autor: Marcin Czechowicz 12 | Układ okien kształtuje modułowy charakter bryły budynku. Na przedłużeniu przeszkleń dolnych poziomów w każdym mieszkaniu zlokalizowane zostały balkony

Olbrachta 24 / Warszawa

2023-02-22 14:09

Architektura budynku jest odzwierciedleniem modułowej struktury mieszkań oraz ich nietypowego na rynku warszawskim dwupoziomowego układu – pisze Krzysztof Mycielski o projekcie autorstwa Pole Architekci.

Ten konsekwentny architektonicznie obiekt prowokuje do cofnięcia się w czasie, gdyż zastosowane w nim motywy mają długą historię i ulegały ewolucji. Zhumanizowana modułowość w architekturze mieszkaniowej, jednoznacznie wyartykułowana w tektonice budynków, osiągnęła swoje apogeum w projektach strukturalistów lat 60. Ich genezę stanowiło nie tylko poszukiwanie estetycznej formuły dla powszechnej prefabrykacji. Było nim również przekonanie, iż remedium na bezduszność masowego budownictwa mogą stanowić wielopiętrowe bloki mieszkalne, w których poszczególne lokale funkcjonują niczym posklejane ze sobą niewielkie dwukondygnacyjne domy jednorodzinne.

Manifestem takiego podejścia do projektowania stała się realizacja Habitatu’67 na wystawie światowej w Montrealu autorstwa Moshe Safdiego, doprowadzona zresztą w swoich założeniach do granic absurdu, chociażby ze względu na straty ciepła, jakie poprzez namnożenie przegród zewnętrznych generowało tego typu rozwiązanie. W kolejnych dekadach, naznaczonych krytyką modernizmu, ówczesny radykalizm strukturalistów raczej mógł odstraszać, niż inspirować. Niemniej idea domu wielorodzinnego o wyrazistej strukturze, konsekwentnie uporządkowanej modułem indywidualnego lokalu, była na tyle atrakcyjna, iż musiała doczekać się kontynuacji.

Czytaj też: Centrum edukacyjne w Dolinie Kościeliskiej |

Olbrachta 24 1

i

Autor: Marcin Czechowicz 1 | Wysokość budynku została określona jako wartość przejściowa między niską i wysoką zabudową

To myślenie wyraźnie czytelne jest właśnie przy ulicy Olbrachta w Warszawie w budynku autorstwa młodej pracowni POLE Architekci, ale również w poprzedniej ich realizacji mieszkaniowej przy ul. Potockiej („A-m” 02/2020). Trójwymiarowa modułowość odgrywa tu przede wszystkim rolę porządkującą i dziś nie musi już być uzasadniana prefabrykacją. Uzyskanie wyjątkowej konsekwencji z pewnością nie było proste projektowo i wymagało otwartego dewelopera. W takim projektowaniu kreowanie bryły i elewacji musi być idealnie zgrane w czasie z powstawaniem rzutów. Jest to znacznie bardziej skomplikowane od sytuacji, w której najpierw działamy w dwóch wymiarach, korygując z inwestorem plany lokali w zgodzie z wykreowaną przez rynek zróżnicowaną strukturą mieszkań. Ale po wymagającej fazie koncepcji powstaje wartościowa synteza – spójna w trzech wymiarach struktura budynku znacznie ułatwiająca decyzje w późniejszych fazach projektowania.

Czytaj też: Budynek mieszkalny Mad House w Warszawie |

Powtarzalnym modułem, stosowanym w tym budynku bez żadnych wyjątków, jest niewielkie mieszkanie dwupoziomowe, skrojone powierzchniowo pod możliwości sprzedażowe. Na warszawskim rynku nieruchomości stanowi dość wyjątkową ofertę zrealizowaną, co znamienne, przez poznańskiego inwestora. W ciągu ostatnich dwóch dekad rynek w stolicy na tyle się zoptymalizował, iż niemal wszystkie oferowane przez deweloperów układy mieszkań czerpią z nudnego, acz funkcjonalnego schematu poziomego podziału mieszkania na strefę dzienną i nocną. Tymczasem w zaprojektowanych tu nietypowych mieszkaniach dwupoziomowych strefowanie wyszło samoistnie, z przestrzenią dzienną na dole i nocną na górze, a jednocześnie pojawiła się wartość dodana, nie do uzyskania w lokalach jednokondygnacyjnych. Poza wewnętrznymi schodami, mogącymi stanowić indywidualny i atrakcyjny element aranżacji wnętrz, nie ma tu powierzchni straconych na komunikację.

Olbrachta 24 6

i

Autor: Marcin Czechowicz 6 | Inwestycja zlokalizowana jest w dzielnicy Wola, niedaleko centrum Warszawy

Mieszkania są stosunkowo płytkie, zaś duże okna występujące naprzemiennie na obu kondygnacjach, pozwalają na idealne doświetlenie zarówno dolnego poziomu, jak i antresoli z kilku kierunków jednocześnie, bezpośrednio i pośrednio. Mieszkania mogą mieć ciekawy indywidualny nastrój, zaś naprzemienność okien stanowi równocześnie atrakcyjny motyw konsekwentnie porządkujący elewacje. Realizacja młodej pracowni to świeża i przełamująca schematy architektoniczna wypowiedź w zakresie dosyć ograniczonych możliwości, które stwarza warszawski rynek mieszkań nieapartamentowych. Uporządkowany formalnie budynek wygląda efektownie, co rekompensuje niestety podstawową jego wadę, jaką jest nieadekwatna skala obiektu w przestrzeni kameralnej ulicy, przy której stoi. To nie jest zarzut do jego autorów ani do inwestora, ale do twórców miejscowego planu, którzy – nie wiedzieć czemu – nawiązali tu dopuszczalnymi parametrami do sąsiadujących od tyłu bloków, a nie do kontekstu małomiasteczkowej w swym charakterze ulicznej pierzei. Czy charakterystyczna dla tego budynku konsekwencja, stanowiąca w końcu motyw przewodni światowego współczesnego projektowania, możliwa też kiedyś będzie w stołecznej urbanistyce?

Czytaj też: Projekt Służewiec: mieszkaniówka BBGK na warszawskim Mordorze |

Naprzemienność okien stanowi atrakcyjny motyw konsekwentnie porządkujący elewację

Olbrachta 24 11

i

Autor: Marcin Czechowicz 11 | Duże otwory okienne na obu poziomach każdego mieszkania ułożone są w formie szachownicy i zapewniają równomierne doświetlenie wnętrza

Założenia autorskie

Zabudowa wzdłuż ul. Olbrachta na warszawskiej Woli jest wysokościowo niejednorodna. Po jej południowej stronie występują budynki niskie, czterokondygnacyjne, po północnej natomiast, w miejscu lokalizacji projektowanej zabudowy, wysokie, punktowe dochodzące do ok. 45 m. Taką wysokość nowej zabudowy dopuszcza w tym miejscu obowiązujący Miejscowy Plan Zagospodarowania Przestrzennego. Jednocześnie nie pozwalał on na stworzenie zabudowy pierzejowej. Stąd decyzja o zaprojektowaniu budynku wolnostojącego, co było największym wyzwaniem na tak ciasnej i wąskiej działce. Jego wysokość została określona jako wartość przejściowa między niską i wysoką zabudową, pomimo dopuszczalnych 45 m. Architektura budynku i rysunek elewacji są odzwierciedleniem modułowej struktury mieszkań i ich nietypowego układu. Są one dwupoziomowe o powierzchni ok. 40 m2, co umożliwiło ich podział na strefę dzienną na niższym piętrze i nocną – na wyższym.

Całość łączy otwarta, wysoka miejscami na 6 m przestrzeń dzienna, ze schodami scalającymi oba poziomy. Jest ona doświetlona dużymi przeszkleniami ułożonymi szachownicowo, z których jedno jest zawsze wyjściem na balkon. Taki układ okien zapewnia większą prywatność, patrząc od wewnątrz, przy jednoczesnym zachowaniu bardzo dużej powierzchni przeszkleń, z zewnątrz natomiast kształtuje modułowy rysunek elewacji i bryły budynku. Modułowość bryły została uczytelniona przez odjęcie od niej kilku bloków w strefie wejścia, co tworzy głęboki zadaszony podcień. Akcentuje on w ten sposób strefę wejściową i wjazd do windy obsługującej garaż podziemny. Łukasz Gniewek, Bartłomiej Popiela, Wojciech Gajewski

Olbrachta 24 8

i

Autor: Marcin Czechowicz 8 | Budynek ma cztery kondygnacje nadziemne oraz jedną podziemną
Metryczka

Olbrachta 24 Warszawa, ul. Olbrachta 24 Autorzy: Pole Architekci, architekci Łukasz Gniewek, Bartłomiej Popiela, Wojciech Gajewski Współpraca autorska: Julita Zembrowska Konstrukcja: Adam Bobryk Generalny wykonawca: Hexacon Inwestor: GN-Group Real Estate Developer Powierzchnia terenu: 631 m2 Powierzchnia zabudowy: 326 m2 Powierzchnia użytkowa: 1300 m2 Powierzchnia całkowita: 1900 m2 Kubatura: 8000 m3 Liczba mieszkań: 29 Powierzchnia mieszkań: od 38 m2 do 78 m2 Projekt: 2017-2020 Realizacja: 2022 Nie podano kosztu inwestycji

Olbrachta 24 9

i

Autor: Marcin Czechowicz 9 | Odjęcie od bryły kilku bloków w strefie wejścia tworzy głęboki, zadaszony podcień
Olbrachta 24 10

i

Autor: Marcin Czechowicz 10 | Strefa wejściowa i wjazd do windy obsługującej garaż podziemny
Olbrachta 24 12

i

Autor: Marcin Czechowicz 12 | Układ okien kształtuje modułowy charakter bryły budynku. Na przedłużeniu przeszkleń dolnych poziomów w każdym mieszkaniu zlokalizowane zostały balkony
Olbrachta 24 2

i

Autor: Pole architekci/ Materiały prasowe 2 | Sytuacja Link: https://cdn.galleries.smcloud.net/t/photos/gf-NNVs-2MZU-X8kU_olbrachta-24-2.jpeg
Olbrachta 24 3

i

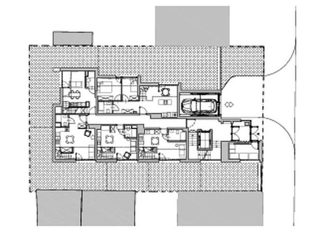
Autor: Pole architekci/ Materiały prasowe 3 | Rzut parteru. Oznaczenia: 1 – ogródek; 2 – salon z aneksem; 3 – sypialnia; 4 – hol; 5 – śmietnik Link: https://cdn.galleries.smcloud.net/t/photos/gf-nT3v-Fske-fij2_olbrachta-24-3.jpeg
Olbrachta 24 4

i

Autor: Pole architekci/ Materiały prasowe 4 | Rzut kondygnacji powtarzalnej. Oznaczenia: 1 – salon z aneksem, strefa dzienna Link: https://cdn.galleries.smcloud.net/t/photos/gf-YNa9-1R3Z-QEtB_olbrachta-24-4.jpeg
Olbrachta 24 5

i

Autor: Pole architekci/ Materiały prasowe 5 | Rzut antresoli powtarzalnej. Oznaczenia: 1 – antresola, strefa nocna Link: https://cdn.galleries.smcloud.net/t/photos/gf-tjDu-t4dY-68uv_olbrachta-24-5.jpeg
Olbrachta 24 7

i

Autor: Pole architekci/ Materiały prasowe 7 | Przekrój A-A Link: https://cdn.galleries.smcloud.net/t/photos/gf-qtTk-RVLo-mSnM_olbrachta-24-7.jpeg
Olbrachta 24 in Warsaw

As the developers of the local plan absurdly permitted the parameters of the neighbouring blocks of flats rather than those of the small-town frontage of the rest of the street, a free-standing, tall building was designed on a narrow plot on Olbrachta Street. The building’s architecture and facade reflect the modular structure of the flats and their unusual layout. The 40m² flats are two-storey with the living area located on a lower level and the sleeping area on a higher level. There is an open-plan living area, 6m high in places, with a staircase connecting the two levels. Each apartment has large windows, one of them being an exit to the balcony, that are situated in such a way that building’s walls resemble a chequerboard. From the inside, this arrangement of windows provides greater privacy despite a large area of glazing. From the outside, it shapes the modularity of the façade. Several blocks were subtracted in the entrance area, creating a large covered arcade that accentuates the entrance and the lift to the underground garage.