Projekt pro bono

Rozpoczęła się budowa domu dla nastoletnich matek według projektu biura WXCA

2023-05-10 11:24

Na warszawskim Ursynowie rozpoczęła się realizacja domu dla nastoletnich i usamodzielniających się matek według projektu WXCA. Inicjatorzy przedsięwzięcia wciąż szukają partnerów, którzy chcieliby wesprzeć przedsięwzięcie.

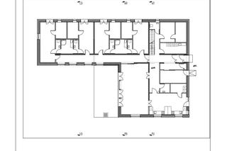
Nazwa obiektu Dom dla nastoletnich i usamodzielniających się matek
Adres obiektu Warszawa, ul. Puchalska
Autorzy WXCA, architekci Szczepan Wroński, Jan Kucza-Kuczyński, Weronika Wilkowska, Jadwiga Małecka
Inwestor Fundacja Po Drugie
Powierzchnia użytkowa 500 m²
Projekt 2021

Projekt domu dla nastoletnich i usamodzielniających się matek architekci z WXCA opracowali pro bono na zlecenie Fundacji Po Drugie. Chcieliśmy stworzyć taką architekturę, która będzie zachęcać młode matki i ich dzieci do wchodzenia w interakcje z innymi mieszkańcami, ale także do wzięcia odpowiedzialności za wspólną przestrzeń i dbania o nią – mówi Jan Kucza-Kuczyński z WXCA, współautor projektu. Architektura wyznacza nam tutaj nie tylko ramy do życia, ale również przejmuje funkcje społeczne. Piękna przestrzeń będzie też miała wymiar resocjalizacyjny – dodaje Agnieszka Sikora, prezeska Fundacji Po Drugie.

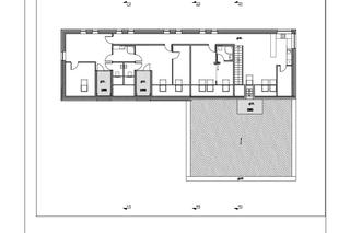
Dwukondygnacyjny budynek na planie litery L stanie przy ul. Puchalskiej na warszawskim Ursynowie. Dom mogłoby w nim znaleźć sześć młodych matek z dziećmi. Każda miałaby swój prywatny pokój, osobny, mały pokój dla dziecka oraz toaletę. Przewidziano też pomieszczenia dla opiekunów, świetlicę, jadalnię i kuchnię. Jak tłumaczą autorzy, dużą część obiektu stanowią przestrzenie wspólne, kluczowe dla budowania więzi w grupie. Powierzchnia użytkowa domu wyniesie ok. 500 m². Z uwagi na dość heterogeniczną zabudowę w sąsiedztwie, architekci zdecydowali się na prostą bryłę oblicowaną drewnem. Chcieliśmy znaleźć jakiś wspólny mianownik, żeby ten dom wpisał się w różnorodne otoczenie – tłumaczy Weronika Wilkowska z WXCA. Autorzy zaproponowali obiekt składający się z dwóch skrzydeł: wschodniego, przekrytego dachem o łagodnym spadku, które mieści wszystkie funkcje wspólne, oraz zachodniego, przekrytego większym dachem spadzistym, gdzie znalazłyby się pokoje mieszkalne. Obok zaprojektowali jeszcze zieloną przestrzeń rekreacyjną, plac zabaw dla dzieci, a także ogródek społeczny, gdzie mieszkanki będą mogły uprawiać warzywa.

Dom dla nastoletnich matek od WXCA coraz bliżej realizacji

i

Autor: Archiwum serwisu Dom dla nastoletnich matek w Warszawie, proj. WXCA; il. Mikołaj Niewęgłowski

Dom dla nastoletnich matek ma być budynkiem pasywnym. Przewidziano zarówno pompę ciepła, ogniwa fotowoltaiczne, jak i lokalne nawiewniki powietrza z rekuperacją, a nawet urządzenia do odzysku ciepła ze ścieków bytowych. Wody opadowe będą gromadzone w podziemnym zbiorniku, po czym wykorzystane do podlewania ogrodu i zasilania wc. Do budowy domu, tam, gdzie będzie to możliwe, zostaną wykorzystane materiały naturalne o niskim śladzie węglowym lub pochodzące z recyklingu, jak gruz czy drewno z rozbiórki. Pomyślano również o radykalnym zmniejszeniu zużycia wody i jednoczesnym zachowaniu wysokiego komfortu użytkowników. W tym celu zainstalowane zostaną wyselekcjonowane baterie czerpalne, pralki i zmywarki o wysokim współczynniku oszczędności wody. Poruszyła nas historia podopiecznych Fundacji Po Drugie. Każdy zasługuje na bezpieczny dach nad głową, bez względu na zakręty życiowe, jakie musi pokonywać. Chcieliśmy pomagać mądrze i dlatego stworzyliśmy dom pasywny. Mamy nadzieję, że energia tego zrównoważonego domu wprowadzi też równowagę do życia podopiecznych fundacji – podsumowuje Jan Kucza-Kuczyński.

Fundacja Po Drugie od ponad 10 lat wspiera młodzież i młodych dorosłych zagrożonych bezdomnością. Jako jedna z pierwszych organizacji w Polsce zwróciła uwagę na problem nastoletnich matek, które przebywając w młodzieżowych ośrodkach wychowawczych są pozbawione stałego kontaktu ze swoimi dziećmi. Fundacja postanowiła problem nagłośnić i doprowadzić do stworzenia systemowych rozwiązań. Udało się dopiero teraz. W 2022 roku został przedstawiony projekt nowelizacji postępowania w sprawie nieletnich, który zakłada utworzenie ośrodków dla matek z dziećmi. Dom na warszawskim Ursynowie będzie więc pierwszą placówką tego typu w Polsce. Fundacja Po Drugie wciąż szuka partnerów, którzy chcieliby wesprzeć przedsięwzięcie. W projekt zaangażowały się do tej pory m.in. Fundacje VELUX, Fundacja Rossmann czy Fundacja Unaweza prowadzona przez Martynę Wojciechowską. Więcej informacji oraz zbiórka na stronie: www.unaweza.org.

ZAPISZ SIĘ