Nowy projekt plus3-Architekci

Rozbudowa Teatru im. Wandy Siemaszkowej w Rzeszowie. Wiemy, jak będzie wyglądać

2023-04-25 14:27

Teatr im. Wandy Siemaszkowej w Rzeszowie planuje budowę nowej sceny. Czterokondygnacyjny budynek o charakterystycznych elewacjach z prefabrykatów został ukształtowany w taki sposób, by chronić znajdujące się na działce wiekowe drzewa. Za projekt obiektu odpowiada warszawska pracownia plus3-Architekci.

Rozbudowa Teatru im. Wandy Siemaszkowej Rzeszów, ul. Sokoła 7/9
Autorzy: Plus3-Architekci
Zespół projektowy: Katarzyna Głażewska, Krzysztof Bagiński, Aleksandra Stoltz
Konstrukcje: Kuban i Salak
Instalacje sanitarne: Profen
Instalacje elektryczne: Przedsiębiorstwo Specjalistyczne TEATR
Technologia sceniczna:  Manufaktura Technologiczna
Akustyka: ewkAkustika
Inwestor: Zarząd Województwa Podkarpackiego
Powierzchnia zabudowy: 1520 m²
Powierzchnia użytkowa:  4505 m²
Kubatura: 19 625 m³
Realizacja: 2024

Teatr im. Wandy Siemaszkowej mieści się przy ulicy Sokoła w samym centrum miasta. Nowe skrzydło przewidziano w jego bezpośrednim sąsiedztwie, przy alei Cieplińskiego. Na projekt budynku władze województwa zorganizowały postępowanie w trybie tzw. dialogu konkurencyjnego. Poza doświadczeniem w realizacji obiektów scenicznych i wykorzystywaniu w pracy technologii BIM, uczestnicy musieli wykazać się oryginalnym pomysłem na projekt. Zwyciężyło warszawskie biuro plus3-Architekci. Pierwsze szkice powstawały w trakcie dialogu z komisją. To było dla nas bardzo cenne doświadczenie – podkreśla Katarzyna Głażewska, prowadząca pracownię plus3-Architekci. Głównym założeniem które wywarło największy wpływ na architekturę budynku było uszanowanie istniejących na działce wartościowych gatunków drzew, zwłaszcza imponujących starych dębów – pomników przyrody i wieloletnich świadków odbywających się tu kulturalnych wydarzeń. Forma brył, a nawet precyzyjnie dobrany sposób posadowienia budynków, pozwoliły stworzyć patio, którego największą ozdobą będą wiekowe drzewa – tłumaczą autorzy.

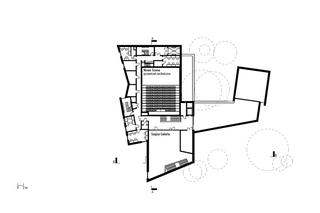
Architekci zaproponowali czterokondygnacyjny obiekt na nieregularnym rzucie. Nowy budynek Teatru  im. Wandy Siemaszkowej to kompozycja kilku, przenikających się brył stwarzających wrażenie silnego rozdrobnienia zabudowy. Kompleks uzupełnia niezależny budynek magazynu dekoracji. Stonowane, prefabrykowane elewacje harmonizują z istniejącą, zróżnicowaną zabudową śródmiejską, a jednocześnie podkreślają rangę instytucji. Pozornie nieidealna struktura to próba stworzenia obiektu płynnego, zmiennego pod wpływem warunków atmosferycznych, na którego fasadach załamią się promienie słoneczne i rysować się będą cienie gałęzi drzew. Solidna, prosta, stonowana fasada ma być tłem dla historii, które będą przedstawiane na deskach teatru – opowiada Katarzyna Głażewska.

Istotą urbanistyczną założenia było otwarcie budynku od strony alei Cieplińskiego. Swobodne przejście na teren teatru ma spowodować, że obiekt stanie się bardziej inkluzywny. Uwarunkowania techniczne działki – w tym gęsta infrastruktura podziemna – zdeterminowały poniekąd usytuowanie strefy wejściowej w podcieniu nadwieszenia budynku, co stanowi swoiste zaproszenie do wejścia na teren teatru. Jest to forma naprowadzenia użytkowników. Ukształtowany w podcieniu plac dodatkowo podkreśla tę strefę. Dzięki wyraźnemu połączenie obiektu z najważniejszą arterią w mieście, placówka staje się bardziej przystępna dla mieszkańców – zwracają uwagę projektanci.

Niemniej istotne było opracowanie funkcjonalnych przestrzeni performatywnych. Przestronne, jasne foyer, z którego istnieje możliwość bezpośredniego wejścia na patio, ma być nie tylko miejscem, które będzie przestrzenią gromadzenia się ludzi: miłośników teatru i lokalnej społeczności, ale też miejscem budowania relacji społecznych. Jego otwarta, uwolniona struktura może być wykorzystana do prezentowania zróżnicowanych form performatywnych. Sale teatralne dostępne są bezpośrednio z przestrzeni foyer: Nowa Scena z widownią na blisko 180 miejsc oraz Młoda Scena dla 60 widzów. Każda z sal wyposażona zostanie w nowoczesny sprzęt technologii scenicznych, dzięki czemu możliwa będzie duża dowolność w aranżacji spektakli – wyjaśniają autorzy. W projektowanym budynku znajdzie się też miejsce dla sali prób, pokoi gościnnych, bufetu, jasnych garderób, pomieszczeń administracyjnych i zaplecza technicznego. Obiekt wyposażony zostanie ponadto w przestrzeń ekspozycyjną – Szajna Galerię.

Projektowany obiekt jest opowieścią o funkcjonalnych przestrzeniach współgrających z architektonicznym wyrazem budynków, które staną się wyważonym uzupełnieniem pierzei przy alei Cieplińskiego. Teatr im. Wandy Siemaszkowej stanowić będzie syntetyczny, otwarty na miasto i region ośrodek, dostępne dla wszystkich miejsce spotkań i tętniące sztuką centrum kultury – zapowiadają projektanci. Rozbudowa teatru rozpocznie się najwcześniej w 2024 roku.