Praca konkursowa

Zwycięską praca na koncepcję rewitalizacji budynku po młynie w Kcyni

2023-12-01 13:31

Prezentujemy pracę autorstwa Marii Hofman, Katarzyny Karczewskiej i Mikołaja Szewko, która zajęła pierwsze miejsce w konkursie na koncepcję architektoniczną rewitalizacji dawnego młyna w Kcyni. Projekt studentów z Politechniki Warszawskiej harmonijnie łączy historię z nowoczesnością, proponując wszechstronne przestrzenie dla lokalnej społeczności.

Autorzy:

Maria Hofman, Katarzyna Karczewska, Mikołaj Szewko

Nazwa uczelni:

Politechnika Warszawska

Wydział:

Architektury
Rok studiów: 5 rok
Rok rozpoczęcia studiów: 2019

Jednym z głównych założeń projektu było zachowanie charakteru budynku dawnego młyna, który bezsprzecznie jest istotnym obiektem dla całego regionu. Możliwie najwięcej elementów całej struktury zostało zachowanych, a fragmenty wymagające naprawy, doprowadzono do stanu używalności i zabezpieczone. Elementy, których wymiana była konieczna zostały wymienione w sposób harmonijnie uzupełniający historyczny budynek. Największą dokonaną przez autorów w projekcie zmianą była wymiana późniejszych przybudówek przylegających do jednej ze ścian młyna. Zostały one zastąpione prostą bryłą, bezpośrednio nawiązującą do wcześniejszych obiektów skalą i barwą.

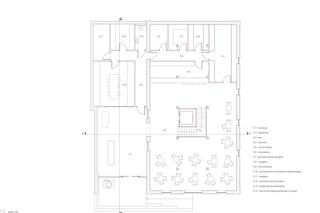
Główne wejście do obiektu znajduje się w nowo dobudowanej części. Obok drzwi ustawiona została jedna z oryginalnych maszyn używanych w młynie. Zdradza ona charakter miejsca. Przybyłych gości wita recepcja. Na osi wejścia znajduje się przeszklona witryna, za którą znajduje się inkubator spożywczy. Dzięki takiemu zabiegowi odwiedzający mogą również się dowiedzieć na temat procesów powstawania lokalnie wytwarzanych produktów spożywczych.

Na prawo od głównego wejścia znajduje się przejście w zewnętrznej ścianie młyna do kawiarni. Pozostawione okna pozwalają odkrywać dawną strukturę obiektu. W centrum kawiarni znajduje się pion komunikacyjny (klatka schodowa i winda) łączący wszystkie piętra i nawiązujący do industrialnego charakteru budynku. Powiększone otwory okienne parteru zostały dostosowane do nowego poziomu posadzki i doskonale doświetlają wnętrze. Wymieniona stolarka okienna swoim podziałem nawiązuje do pierwotnego i tworzy niepowtarzalny charakter przestrzeni. Ważnym elementem wnętrz są duże neony pełniące rolę drogowskazów. Za częścią barową znajduje się zaplecze gastronomiczne dla kawiarni i inkubatora, spełniające normy sanitarne.

 W podziemnej części nowo wykonanej przybudówki zostały przewidziane ogólnodostępne toalety oraz magazyn i pomieszczenie techniczne. 

Na 1. piętrze projekt przewiduje wykonanie pomieszczeń na potrzeby Izby Pałuckiej oraz Izby Pamięci prof. Jana Czochralskiego. Przestrzeń wystawowa utworzona w oparciu o logiczny ciąg ekspozycji prowadzi odwiedzających od wejścia do wyjścia z muzeum. Przestrzeń została wzbogacona o niedużą salę audiowizualną. Część administracyjna mieści się tuż obok wejścia na ekspozycję.   Jednoprzestrzenne wnętrze 2. piętra służy jako miejsce zorganizowanych warsztatów, seansów filmowych i przedstawień. Istnieje możliwości podziału przestrzeni, za pomocą przesuwnych ścian.

Całość obiektu została dostosowana do potrzeb osób z niepełnosprawnościami.

Wadliwe elementy drewniane i ceramiczne konstrukcji, które przekraczają dopuszczalne obciążenia użytkowe zostały wymienione/uzupełnione według zastanego układu struktury nośnej. Zewnętrzne wykończenie budynku zostało wzbogacone o wstawki zaprawy tynkarskiej nadając obiektowi świeżego charakteru i jednocześnie zabezpieczając wrażliwe elementy detalu elewacji. Działanie to było również konieczne ze względu na znaczne ubytki w gzymsach.

Konstrukcja żelbetowego nad częścią podziemną w nowej przybudówce kontynuowana jest historycznym młynie. Pozostałe dwa stropy wykonane są według zasad zastanej struktury drewnianej, z uwzględnieniem nowego przebiegu komunikacji pionowej. Ww. schody i konstrukcja windy zostały zaprojektowane z elementów stalowych, spełniających normy ppoż. Stropy dodatkowo zostały wyciszone akustycznie w celu zapewnienia dogodnych warunków korzystania z obiektu. We wnętrzu (projekt lady recepcyjnej i baru) została wykorzystana cegła rozbiórkowa pochodząca z dawnej przybudówki.