Izba Lekarska w Gdańsku: dobiega końca nowa realizacja pracowni Toprojekt

Już pod koniec przyszłego roku zostanie oddana do użytku nowa siedziba ośrodka szkoleniowego Okręgowej Izby Lekarskiej w Gdańsku. Zespół autorstwa pracowni Toprojekt z Rybnika oferować będzie też przestrzeń rekreacyjną dla okolicznych mieszkańców.

Zamknięty, jednoetapowy konkurs architektoniczny na projekt ośrodka szkoleniowo-naukowego Okręgowej Izby Lekarskiej w Gdańsku rozstrzygnięto jeszcze w 2020 roku. Na zlecenie Izby Lekarskiej przeprowadziła go firma A2P2 architecture & planning, zajmując się całą procedurą, od wypracowania programu i warunków, przez dobór uczestników i sędziów, po organizacyjną stronę przedsięwzięcia. Po wstępnej selekcji i przedstawieniu zamawiającemu kilkunastu propozycji, ostatecznie wyłoniono pięć biur projektowych: OVO Grąbczewscy, Kwadrat, Toprojekt, Roark Studio i HMS Architektura.

Podstawowym kryterium było doświadczenie, przede wszystkim portfolio, obejmujące obiekty o podobnej skali, choć niekoniecznie funkcji, szanujące kontekst i z dopracowanym detalem. Zależało nam jednocześnie na zróżnicowaniu geograficznym – zaproszono dwa biura z Trójmiasta, dwa ze Śląska oraz jedno z Koszalina – tłumaczy Monika Arczyńska z A2P2 architecture & planning. Przed ostatecznym rozesłaniem zaproszeń organizatorzy przeprowadzili rozmowy z wszystkimi pracowniami, aby upewnić się, że są zainteresowane udziałem, że odpowiadają im warunki oraz będą mieć możliwość przygotowania koncepcji. Wybrano formułę konkursu zamkniętego z częściowym zwrotem kosztów dla uczestników (12 tysięcy zł netto).

Program został wypracowany we współpracy z zamawiającym oraz na podstawie konsultacji z Wydziałem Urbanistyki i Architektury gdańskiego urzędu miasta oraz z ekspertami, m.in. z branży gastronomicznej z uwagi na zaplanowaną w ośrodku restaurację, która będzie obsługiwać szkolenia – dodaje Arczyńska, podkreślając, że na obszarze opracowania obowiązywał plan miejscowy.

Zadaniem uczestników było zaproponowanie obiektu z wielofunkcyjną salą na 300 osób, biblioteką oraz częścią noclegową i gastronomiczną, obsługującą szkolenia, ale otwartą też dla gości z zewnątrz. Budynek zaplanowano przy ul. Dębinki w dzielnicy Aniołki w Gdańsku, w sąsiedztwie głównej siedziby Okręgowej Izby Lekarskiej w Gdańsku. Obecnie znajdują się tam pawilony TKKF Dębinki, których działalność zostanie przeniesiona do planowanego ośrodka. W jury pod przewodnictwem architekta Pawła Majkusiaka znaleźli się: Małgorzata Dembowska z biura WXCA, Anna Golędzinowska, urbanistka i radna Miasta Gdańska,  Bartosz Kubryński, przedstawiciel inwestora zastępczego oraz reprezentujący Okręgową Radę Lekarską: Dariusz Kutella i Roman Budziński.

Izba Lekarska w Gdańsku: wyniki konkursu

Sąd konkursowy jednogłośnie zadecydował o przyznaniu pierwszej nagrody pracowni Toprojekt z Rybnika (zespół w składzie: architekci Marek Wawrzyniak, Karol Wawrzyniak, Pushkraj Tambdey, Katarzyna Ostrowicz, Adriana Łukowska, Agata Skiba oraz studentka Marzia Maria Petricci). Autorzy pracy wykazali się wysoką wrażliwością wobec kontekstu urbanistycznego i zrozumieniem charakteru miejsca, co pozwoliło na optymalne wyważenie skali, formy i rozwiązań materiałowych. Zaprojektowany ośrodek, zwłaszcza część szkoleniowa, charakteryzuje się wysokimi możliwościami adaptacji. Organizacja funkcji i elastyczność aranżacji przekłada się na racjonalne zagospodarowanie przestrzeni, dzięki czemu powierzchnia użytkowa została zredukowana do minimum, a zwarta bryła przyniesie realne oszczędności eksploatacyjne. W części noclegowej uzyskano atrakcyjną przestrzeń wspólną (patio) przy jednoczesnym ograniczeniu wielkości pokoi – czytamy w uzasadnieniu. Sędziowie podkreślili też, że koncepcja jest konsekwentna, a przedstawienie idei projektowej syntetyczne i przemyślane. Projekt stanowi udaną próbę stworzenia rozpoznawalnego obiektu użyteczności publicznej – nieprzeskalowanego, lecz wyraźnie większego gabarytowo od zabudowy willowej, co stanowi główną cechę układu urbanistycznego dzielnicy. Zaproponowany ośrodek wpisuje się w historyczną zabudowę Aniołków, zachowując przy tym współczesny charakter budynków – będzie stanowić wizytówkę zarówno Okręgowej Izby Lekarskiej, jak i dzielnicy – napisało jury.

Izba Lekarska w Gdańsku według Toprojekt: wyniki konkursu

i

Autor: Archiwum serwisu Izba Lekarska w Gdańsku, proj. Toprojekt, I miejsce, elewacja frontoa
Izba Lekarska w Gdańsku według Toprojekt: wyniki konkursu

i

Autor: Archiwum serwisu Izba Lekarska w Gdańsku, proj. Toprojekt, I miejsce, ogród półprywatny

Architektura Plus: Izba Lekarska według Toprojekt

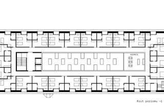
Autorzy postanowili zaproponować więcej niż zakładał program. Zaprojektowali dodatkowo zróżnicowaną przestrzeń publiczną, która mogłaby służyć także mieszkańcom dzielnicy, a ponadto starali się przewidzieć potrzeby przestrzenne i funkcjonalne, które mogą pojawiać się w przyszłości. Główna bryła to wolno stojący, osiowy i symetryczny obiekt utrzymany w charakterze zatopionego w zieleni pawilonu. Udało się w nim zmieścić wszystkie funkcje, w tym parking na 53 samochody, strefę szkoleniowo-gastronomiczną w parterze i hotel na górnej kondygnacji. Program fitness zrealizowany został w oddzielnym pawilonie.

Oba budynki połączone są ze sobą w części podziemnej pomieszczeniem kręgielni. Dzięki temu mieszkańcy hotelu będą mogli dostać się do fitness bez wychodzenia na zewnątrz. W nawiązaniu do willowej architektury w sąsiedztwie projektanci planowali początkowo wykorzystać w koncepcji cegłę. Ostatecznie zdecydowali się jednak na wykończenie całości dachówką ceramiczną. Jedynie pawilon strefy fitness wraz z otaczającym go perforowanym murem wykonany zostanie z cegły. Konstrukcję stropu nad parterem zaprojektowano jako płytę zespoloną stalowo-betonową opartą na kratowych dźwigarach stalowych. Skrajne skośne krzyżulce kratownic wraz z zespolonymi ściankami o analogicznej konstrukcji będą jednocześnie pełnić funkcję stężeń pionowych. Dzięki sporej wysokości kratownic uzyskano przestrzeń do przeprowadzenia wszystkich niezbędnych instalacji obsługujących zarówno strefę parteru, jaki i piętra. Łatwa będzie również kontrola, obsługa i ewentualna wymiana instalacji – tłumaczą autorzy.

Pod dolnym pasem kratownic zaprojektowano ażurowy strop podwieszany w postaci pionowych drewnianych paneli, które oprócz funkcji akustycznych mogą pełnić również rolę dyfuzorów dla naturalnego światła ze świetlików i oświetlenia sztucznego. Powierzchnia użytkowa całego zespołu wyniesie 3708 m².

Drugiej nagrody nie przyznano, a dwie równorzędne trzecie nagrody otrzymały pracownie HMS Architektura z Koszalina oraz Roark Studio z Sopotu. Warto podkreślić, że Izby Lekarskiej nie obwiązuje ustawa Prawo zamówień publicznych, a co za tym idzie – nie musiała organizować konkursu na projekt zespołu. Budżet inwestycji wynosi ok. 20 milionów złotych, a otwarcie ośrodka zaplanowano na koniec 2024 roku.

Izba Lekarska w Gdańsku według Toprojekt: wyniki konkursu

i

Autor: Archiwum serwisu Izba Lekarska w Gdańsku, proj. Toprojekt, I miejsce, strefa hotelowa
Izba Lekarska w Gdańsku według Toprojekt: wyniki konkursu

i

Autor: Archiwum serwisu Izba Lekarska w Gdańsku, proj. Toprojekt, I miejsce, strefa wejściowa
Izba Lekarska w Gdańsku według Toprojekt: wyniki konkursu

i

Autor: Archiwum serwisu Izba Lekarska w Gdańsku, proj. Toprojekt, I miejsce, układ jednoprzestrzenny