szkoły

Nowe szkoły polskie. Szkoła muzyczna we Wrocławiu

2024-08-20 11:04

Nowa szkoła oferuje użytkownikom przestrzeń relaksu i koncentracji, pracy indywidualnej i grupowej, zabawy i powagi, a przy tym jest znakomitym przykładem zabudowy, która uzupełnia zniszczoną w czasie wojny tkankę miasta – tak o projekcie Maćków Pracownia Projektowa pisał wieloletni korespondent i przyjaciel „A-m”, zmarły rok temu, Tomasz Głowacki. Warto przypomnieć i jego słowa, i samą realizację.

Murator remontuje: Podłoga z paneli w jodełkę
Materiał sponsorowany
Materiał sponsorowany

Nowa siedziba szkoły muzycznej - w ruchliwym, ale dobrze zlokalizowanym punkcie

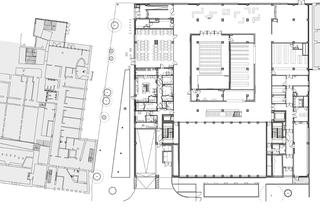
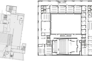
Obiekt jest nową siedzibą dla działającej od 65 lat słynnej wrocławskiej kuźni talentów -Ogólnokształcącej Szkoły Muzycznej I i II stopnia im. Karola Szymanowskiego - która mieściła się dotąd w przeszło stuletnim budynku przy ulicy Łowieckiej, zbudowanym jako dom z tanimi pokojami dla osób starszych. Lokalizacja szkoły na niewielkiej działce w śródmieściu przy reprezentacyjnej i ruchliwej ulicy Piłsudskiego może wydawać się nieporozumieniem, jednakże wybór tego miejsca ma uzasadnienie z przynajmniej dwóch powodów. Po pierwsze placówka skupia uczniów z całego miasta i okolic, więc centralne położenie z bezpośrednim dostępem do komunikacji tramwajowej, autobusowej i kolejowej z pewnością przysłuży się przyszłym muzykom. Po drugie tuż obok znajduje się Filharmonia Wrocławska, która po przeprowadzce do Narodowego Forum Muzyki planuje przekazać swoje włości we władanie szkoły, dzięki czemu ma tu powstać rozwojowy kompleks edukacyjno-koncertowy.

Czytaj też:

Jak wygląda najbliższe otoczenie szkoły?

Frontowa, północno-wschodnia elewacja nowego obiektu tworzy elegancką pierzeję, dostosowując się wysokością do okazałego gmachu Urzędu Skarbowego – jedynej pozostałości po hali targowej z 1908 roku projektu Richarda Plüddemanna i Heinricha Küstera.

Zachodnio-północną granicę definiuje Filharmonia Wrocławska i towarzyszący jej wąski pasaż łączący ulicę Piłsudskiego z Kolejową. Od południa, zbliżając się do budynku Reprotechniki, szkoła poszerza swoje gabaryty na długość filharmonii, kształtując minikwartał z zielonym dziedzińcem nad parterem.

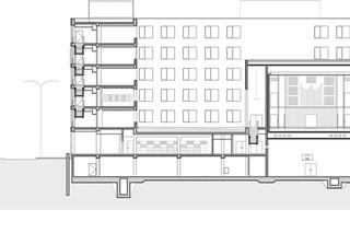
Pełny życia budynek szkoły z zewnątrz wygląda poważnie

Budynek z zewnątrz nie manifestuje swojej edukacyjnej roli i może być odczytywany jako szacowny obiekt biurowy dla dorosłych, a nie żywiołowej gromady dzieci i młodzieży. Nie widać także, jakie bogactwo funkcji w sobie mieści. Oprócz

  • gimnazjum
  • i liceum

jest tu też

  • podstawówka
  • i oddział przedszkolny,

a poza standardowymi salami lekcyjnymi

  • ponad 60 sal do muzyki,
  • w tym aula koncertowa ze 170-osobową widownią.

Przewidziano ponadto

  • stołówkę z własnym zapleczem kuchennym,

a w części podziemnej

  • parking na 52 samochody,
  • salę gimnastyczną
  • oraz siłownię ze ścianką wspinaczkową.

Czytaj też:

Rozłożenie funkcji szkoły na 7 piętrach budynku

Przy organizacji tak obszernego programu na małym terenie projektanci wykazali się dużym talentem. Przez przemyślane rozłożenie funkcji na siedmiu kondygnacjach, podczas przerw nie odczuwa się typowego dla szkoły zgiełku, choć od 6.30 do 21.30 w budynku przebywa prawie 700 osób. Wbrew modelowym rozwiązaniom komunikacja nie odbywa się tu wokół centralnie zlokalizowanego holu czy atrium, ale po obwodzie zewnętrznym i korytarzowo, co wynika zarówno z wymaganej liczby pomieszczeń, jak i zapewnienia odpowiedniego nasłonecznienia sal przy równoczesnym ich odseparowaniu od hałasu ulicznego. W tej mistrzowskiej układance brakuje jednak niewielkich wglądów z korytarzy: do sali chóru na parterze i na centralne patio na kondygnacjach powyżej. Takie diagonalne widoki na przestrzał ułatwiłyby orientację i pozwoliłyby lepiej docenić urodę zaprojektowanej struktury.

Parametry akustyczne nowego budynku szkoły muzycznej we Wrocławiu

Poza funkcjonalnością szkoła wyróżnia się przede wszystkim doskonałymi parametrami akustycznymi. Dzięki ścisłej współpracy ze specjalistami poszczególne sale muzyczne nie tylko wyciszono, chroniąc przed wzajemnym przenikaniem dźwięków i hałasem miejskim, ale zapewniono w nich też indywidualnie kształtowany czas pogłosu, zależny od specyfiki instrumentów. Rzuty i przekroje pomieszczeń przybierają więc trapezowate kształty, a ich ściany i sufity zostały wyłożone reliefową kompozycją z kasetonów akustycznych z białej płyty Ecophon oraz nielakierowanej sklejki brzozowej.

Wystrój wnętrz, kolorystyka, materiały

W wystroju wnętrz dominuje biel i drewniane okładziny ścian, ale istotną rolę odgrywa także beton, wykorzystany zwłaszcza w przestrzeniach reprezentacyjnych: w wysokim foyer oraz w auli koncertowej, gdzie wykonano z niego ryflowane ekrany akustyczne. Mocny akcent stanowią też masywne, betonowe schody jednobiegowe, łączące hole poszczególnych pięter.

Przykład neomodernistycznego budynku szkolnego

Rytm, prostota i logika cechuje ten neomodernistyczny obiekt. Szukając konotacji muzycznych, można pokusić się o porównanie go do współczesnej interpretacji muzyki klasycystycznej, ma bowiem klarowną strukturę, symetrię rzutu, ale też interesującą artykulację fasad w postaci nieznacznego wysunięcia przeszkleń przed lico elewacji. Ciemne, gładkie okna mocno kontrastują z białym tłem ścian z cegły klinkierowej Röben i tynku o nierównej fakturze. Mimo znacznych ograniczeń budżetu, który nie pozwolił na wykończenie elewacji w całości cegłą (od strony podwórka zamiast klinkieru położono tynk) obiekt zwyciężył w kategorii budynków użyteczności publicznej w polskiej edycji konkursu Brick Awards 2015.

Udana przestrzeń, dobrze wpisująca się w otoczenie

Nowa szkoła oferuje przestrzeń relaksu i koncentracji, pracy indywidualnej i grupowej, zabawy i powagi. Skondensowany, wielozadaniowy gmach jest jednocześnie znakomitym przykładem zabudowy, która uzupełnia zniszczoną w czasie wojny tkankę Wrocławia, i która, jak mówią sami autorzy, zszywa okaleczone miasto.

Czytaj więcej: