Brama Oławska / Wrocław

2022-12-22 22:15

Autorom biurowca udało się zapewnić przestrzenność i lekkość konstrukcji, która została wsparta na żelbetowych słupach tworzących głęboki podcień – projekt pracowni Artur Jasiński i Wspólnicy Biuro Architektoniczne komentuje Jerzy S. Majewski [W WYDANIU CYFROWYM WIĘCEJ ZDJĘĆ].

Brama Oławska 9

i

Autor: Paweł Wieczorek/ Materiały prasowe 9 | Widok od strony skrzyżowania ul. Wita Stwosza i Trasy W-Z. Pod tworzącym podcień narożnikiem znajduje się wyjście z przejścia podziemnego. Z prawej przylega zabytkowa szkoła

Brama Oławska, projektu pracowni Artur Jasiński i Wspólnicy z Krakowa, wypełniła ostatni, czwarty narożnik u zbiegu ruchliwego skrzyżowania Trasy W-Z, czyli ul. Oławskiej, i ul. Wita Stwosza. To kolejny duży budynek zmieniający plac Dominikański, opustoszały po zniszczeniach wojennych i rozbiórce pod budowę Trasy W-Z, w pełną życia część miasta. Niczym nóż rozcinała ona zabytkowe ulice, tworząc bolesne wyrwy urbanistyczne. Nowy biurowiec PZU jest jednym z szeregu obiektów, który je zabliźnia. Budynek nazwano Bramą Oławską od nazwy dawnej bramy miejskiej. Pod jego budowę rozebrano mniejszy biurowiec PZU, z 1970 roku, projektu Ryszarda Natusiewicza. Był to, jak przekonuje Tomasz Małycha, architekt ze strony inwestora, obiekt o frapującej konstrukcji i elewacjach zniekształconych postmodernistyczną „panierką” z lat 90. XX wieku. Urbanistycznie był chybiony. Wolnostojący, odsunięty od narożników, wzmacniał dekompozycję układu przestrzennego tej części miasta.

Brama Oławska 1

i

Autor: Maciej Lulko 1 | Biurowiec od wschodu zamyka perspektywę ul. Oławskiej

Brama Oławska zdaje się być jego zaprzeczeniem. Współtworzy wielkomiejską tkankę centrum Wrocławia. Harmonizuje zarówno z wielkoskalowymi nowymi budynkami, jak i zabytkami. Dobrze też zamyka od wschodu perspektywę ul. Oławskiej, biegnącej do rynku i wypełnionej wybitymi gmachami funkcjonalistycznych domów towarowych, jak dawny Petersdorff (dziś Kameleon), proj. Ericha Mendelsohna, czy C&A Brenninkmeyer Seepa Kaisera.

Biurowiec powstał na rzucie prostokąta. Ma siedem kondygnacji naziemnych z niższą częścią przylegającą do zabytkowego gmachu szkolnego, stojącego wzdłuż ul. Wita Stwosza, oraz trzy kondygnacje podziemne z garażem na 140 samochodów. Od strony frontowej i narożnika z Wita Stwosza otaczają go dwukondygnacyjne podcienie, zaś wewnątrz znalazł się zaprojektowany z oddechem hol, również o wysokości dwóch kondygnacji. Elegancji dodają mu grafitowe ściany wyłożone płytami ze spieków ceramicznych. Budynek ma konstrukcję szkieletową, płytowo-słupową. Oryginalny jest podcień w partii szczytowej, od strony narożnika z ul. Wita Stwosza, nad wyjściem z miejskiego przejścia podziemnego. Zastosowano tam konstrukcję zespoloną, stalowo-żelbetową z belkami dwuteowników o kilkunastometrowej rozpiętości. Ukrycie wyjścia pod ogromnym podcieniem nosi cechy wielkomiejskości, a masa gmachu zdaje się wisieć nad nim.

Czytaj też: Centrum sportowe we Wrocławiu |

Brama Oławska 2

i

Autor: Maciej Lulko 2 | Wyjście z przejścia podziemnego Słodowy znajduje się pod podcieniem Bramy Oławskiej. Pośrodku zabytkowa elewacja szkoły z lat 1891-93. Z prawej zaokrąglony narożnik biurowca Dominikański

Projektant podkreśla, że istotny był dla niego dialog nowego budynku z sąsiednim kompleksem szkolnym, stojącym frontem do ul. Piotra Skargi. Udało się go nawiązać przy zachowaniu współczesnego języka architektury nowego obiektu, niewykraczającego jednak poza standard współczesnej architektury biurowej. Pomimo to, dzięki dużej kulturze projektanta, biurowiec Brama Oławska koresponduje z zabytkowym kompleksem szkolnym z końca XIX wieku, który ma typowy dla ówczesnego komunalnego budownictwa wrocławskiego nastrój architektury średniowiecznej. Elewacje biurowca są obłożone panelami z kompozytów o barwie zbliżonej do kolorystyki ceglanej liceum i pobliskich budynków, począwszy od ceglanych średniowiecznych kościołów. Ogromna masa elewacji frontowej obiektu uległa rozdrobnieniu dzięki nałożeniu na fasadę detalu w postaci wiązek listew i rur z ukrytymi w nich elementami iluminacji, co odwołuje się do drobnych, pionowych podziałów w sąsiednim budynku szkoły. Dodajmy, że w roku 2010 na tyłach liceum, zgodnie z projektem pracowni Major architekci, stanęła nowoczesna sala gimnastyczna, z ażurową, pordzewianą, parawanową ścianą, wypełniającą pierzeje ul. Nowej („A-m”, nr 06/2011). Nowy biurowiec PZU „osłania” teraz kompleks szkolny od strony ruchliwej Trasy W-Z, domykając kameralny dziedziniec szkolny. Elewacja wysuniętego nieco przyziemia – podium od strony dziedzińca licowana jest cegłą, podobnie jak budynek szkoły. Należy żałować, że nie pokuszono się tu o wymieszanie cegły o różnych odcieniach, tak by nie tworzyła jednolitej płaszczyzny. Nie jest ona, na szczęście, płaska. Projektanci zrytmizowali ją lizenami.

Brama Oławska 3

i

Autor: Maciej Lulko 3 | Elewacja boczna widoczna z przejścia podziemnego, gdzie wyeksponowano ceglane relikty dawnych umocnień

Elewacja powstała z miedzianych blach oraz spływających po nich mosiężnych rur, w których ukryto źródła światła

Założenia autorskie

Budynek Bramy Oławskiej usytuowany jest w centrum Wrocławia, w narożniku ulic Piotra Skargi i Oławskiej, która prowadzi z rynku Starego Miasta. W sąsiedztwie są: kościół Świętego Wojciecha, biurowiec Nowy Targ, autorstwa Maćków Pracownia Projektowa, a vis-à-vis – budynek zaprojektowany przez biuro Medusa Group. Bezpośrednim sąsiadem Bramy Oławskiej jest neogotycka Szkoła Ludowa Kanonenhof, autorstwa Richarda Plüddemanna, wzniesiona w latach 1891-1893. Jej elewacja wykonana z żółtej cegły, została uzupełniona glazurą w kolorach zielonym i brązowym. W pobliżu znajdują się relikty średniowiecznych fortyfikacji związanych z Bramą Oławską. Przed II wojną światową na działce stała XIX-wieczna kamienica ze znaną restauracją Mikado i sklepem braci Kwiatkowskich. W czasie wojny została zniszczona, a na jej miejscu, w latach 60. XX wieku, powstał budynek PZU, rozebrany w 2017 roku.

Brama Oławska 9

i

Autor: Paweł Wieczorek/ Materiały prasowe 9 | Widok od strony skrzyżowania ul. Wita Stwosza i Trasy W-Z. Pod tworzącym podcień narożnikiem znajduje się wyjście z przejścia podziemnego. Z prawej przylega zabytkowa szkoła

Przystępując do projektu, zadaliśmy sobie pytanie: jak powiązać racjonalną i dużą w skali bryłę obiektu biurowego z sąsiednim, zabytkowym budynkiem, o bogatych elewacjach, wykończonych kolorową, szkliwioną cegłą? Skłoniło nas to do rozbicia narożnych brył i zastosowania odpowiedniego detalu. To właśnie stąd wywodzi się połączenie elewacji, wykonanej z miedzianych blach i spływających po nich mosiężnych rur, oraz profili okiennych. Jest to jedyny nasz obiekt, w którym zastosowaliśmy taką kolorystykę i tak bogaty detal. Poza pełnieniem funkcji dekoracyjnej, ma on zadanie użytkowe – źródła światła ukryte w rurach i profilach służą do nocnej iluminacji budynku. Do jego górnej partii wybraliśmy szkło refleksyjne, by zwielokrotnić odbicia, nadać bryłom i detalom więcej głębi oraz zbliżyć nieco do neogotyckiej ornamentyki sąsiedniego obiektu.

Czytaj też: Młyn Maria we Wrocławiu |

Innym wyzwaniem była konieczność zapisanego w Miejscowym Planie Zagospodarowania Przestrzennego nadwieszenia narożnika budynku nad ul. Piotra Skargi i postawienie go nad przejściem podziemnym, zakończonym amfiteatralną formą schodów. Został on w tym miejscu oparty na kilku ulokowanych po obwodzie słupach. Aby osiągnąć pożądaną, kilkunastometrową rozpiętość konstrukcji, zastosowano układ zespolonych z żelbetowym stropem belek, wykonanych ze stalowych blachownic o wysokości metra. Dzięki temu udało się zapewnić przestrzenność i lekkość konstrukcji, która płynnie przechodzi w arkady wzdłuż budynku. Uskoki w rytmie arkad zaznaczają podziemne przejście Słodowe i wejście główne. Każda z elewacji obiektu w inny sposób reaguje na jego kontekst przestrzenny. Artur Jasiński

Brama Oławska 10

i

Autor: Maciej Lulko 10 | Tylna przeszklona elewacja budynku wspiera się na jednokondygnacyjnym podium, licowanym cegłą
Metryczka

Budynek biurowy Brama Oławska Wrocław, Ul. Oławska Autorzy: Artur Jasiński i Wspólnicy Biuro Architektoniczne, architekci Artur Jasiński, Marcin Pawłowski, Paweł Wieczorek, Marta Grochowska, Katarzyna Leśnodorska, Barbara Ostrowska-Furmanek Współpraca autorska: Tomasz Lelek, Demi Tran, Jan Wąsowicz, Katarzyna Zaniewska Architektura wnętrz: Artur Jasiński i Wspólnicy Biuro Architektoniczne Architektura krajobrazu: Artur Jasiński i Wspólnicy Biuro Architektoniczne Konstrukcja: GSBK Biuro Konstrukcyjne Generalny wykonawca: Warbud Inwestor: Tower Inwestycje Powierzchnia terenu: 2775 m2 Powierzchnia zabudowy: 2471 m2 Powierzchnia użytkowa: 15 454 m2 Powierzchnia całkowita: 20 444 m2 Kubatura: 80 099 m3 Projekt konkursowy: 2018 Projekt: 2018-2019 Realizacja: 2020-2022 Nie podano kosztu inwestycji

Brama Oławska 12

i

Autor: Maciej Lulko 12 | Fragment tylnej elewacji budynku. Na wysuniętej części podium urządzony został zielony dach

Pionowe detale na elewacji oraz jej kolorystyka nawiązują do frontów pobliskiej szkoły

Brama Oławska 4

i

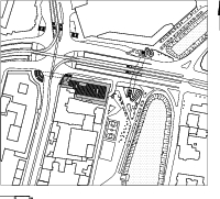
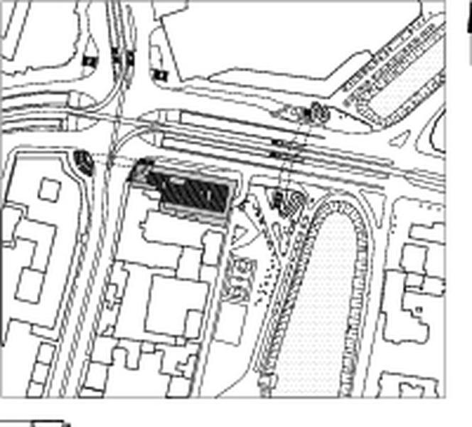
Autor: Artur Jasiński i Wspólnicy Biuro Architektoniczne/ Materiały prasowe 4 | Sytuacja https://cdn.galleries.smcloud.net/t/photos/gf-UF5B-uyYD-NmLy_brama-olawska-4.jpeg
Brama Oławska 5

i

Autor: Artur Jasiński i Wspólnicy Biuro Architektoniczne/ Materiały prasowe 5 | Szkic https://cdn.galleries.smcloud.net/t/photos/gf-CYKH-7qFj-nNfN_brama-olawska-5.jpeg
Brama Oławska 6

i

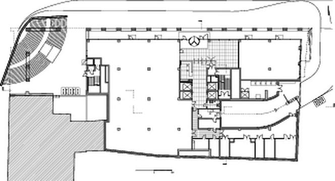
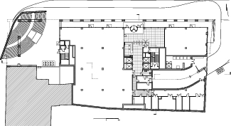
Autor: Artur Jasiński i Wspólnicy Biuro Architektoniczne/ Materiały prasowe 6 | Rzut parteru. Oznaczenia: 1 – hol główny; 2 – lokal usługowy; 3 – pomieszczenie ochrony; 4 – pomieszczenie BMS; 6 – pomieszczenie socjalne; 7 – warsztat; 8 – korytarz techniczny https://cdn.galleries.smcloud.net/t/photos/gf-WRrg-ZDzK-KfiV_brama-olawska-6.jpeg
Brama Oławska 7

i

Autor: Artur Jasiński i Wspólnicy Biuro Architektoniczne/ Materiały prasowe 7 | Rzut piętra typowego. Oznaczenia: 1 – powierzchnia biurowa; 2 – hol windowy https://cdn.galleries.smcloud.net/t/photos/gf-w2zp-AwH6-KTrC_brama-olawska-7.jpeg
Brama Oławska 8

i

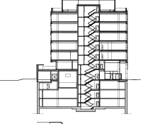
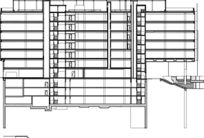
Autor: Artur Jasiński i Wspólnicy Biuro Architektoniczne/ Materiały prasowe 8 | Przekrój A-A https://cdn.galleries.smcloud.net/t/photos/gf-Fo29-j4tA-pgMQ_brama-olawska-8.jpeg
Brama Oławska 11

i

Autor: Artur Jasiński i Wspólnicy Biuro Architektoniczne/ Materiały prasowe 11 | Przekrój B-B https://cdn.galleries.smcloud.net/t/photos/gf-xNAg-n8CU-BK6E_brama-olawska-11.jpeg
Brama Oławska 15

i

Autor: Artur Jasiński 15 | Tylna elewacja biurowca domknęła dziedziniec szkolny, tworząc kameralne wnętrze i izolując wewnętrzne skrzydła zespołu od hałasu ulicznego
Brama Oławska 16

i

Autor: Artur Jasiński 16 | Wysoki podcień w elewacji frontowej, wzdłuż ul. Oławskiej nadaje ulicy prawdziwie wielkomiejski charakter
Brama Oławska 13

i

Autor: Maciej Lulko 13 | Budynek zdaje się wisieć ponad wyjściem z przejścia podziemnego. W rzeczywistości wsparty jest na żelbetowych słupach konstrukcyjnych tworzących głęboki podcień. W efektowny sposób zaprojektowany został jego sufit, który budzi skojarzenia z wnętrzami dawnego gmachu Miejskiej Kasy Oszczędności, projektu Heinricha Rumpa w rynku, podobnie jak biurowiec Brama Oławska zamykającego od zachodu daleką perspektywę ul. Oławskiej
Brama Oławska 17

i

Autor: Artur Jasiński 17 | Elewację budynku wertykalizują pionowe listwy i rury. Dzięki temu rozwiązaniu fronty zdają się nawiązywać do drobnych podziałów i rytmiki, sąsiadującego z biurowcem, gmachu szkolnego z epoki cesarskich Niemiec
Brama Oławska 18

i

Autor: Maciej Lulko 18 | Fragment holu wejściowego z recepcją. Wnętrze obłożono czarnymi płytami ze spieków. Hol jest usytuowany od strony elewacji frontowej z wejściem z podcienia
Brama Oławska 14

i

Autor: Artur Jasiński 14 | Fragment tylnej elewacji budynku. Z lewej ażurowa ściana szkolnej sali gimnastycznej powstałej przed kilkunastu laty i współtworzącej pierzeję ul. Nowej
Brama Oławska 19

i

Autor: Maciej Lulko 19 | Fragment holu windowego
Brama Oławska 20

i

Autor: Paweł Wieczorek/ Materiały prasowe Budynek biurowy Brama Oławska
Brama Oławska 21

i

Autor: Paweł Wieczorek/ Materiały prasowe Budynek biurowy Brama Oławska
Brama Oławska 22

i

Autor: Paweł Wieczorek/ Materiały prasowe Budynek biurowy Brama Oławska
Brama Oławska 23

i

Autor: Paweł Wieczorek/ Materiały prasowe Budynek biurowy Brama Oławska
Brama Oławska 24

i

Autor: Artur Jasiński/ Materiały prasowe Budynek biurowy Brama Oławska
Brama Oławska 25

i

Autor: Paweł Wieczorek/ Materiały prasowe Budynek biurowy Brama Oławska
The Oławska Gate Office Building in Wrocław

The urban layout in this part of Wrocław, close to the Old Town, was damaged by the war, and later, by construction of an expressway. The new office building of an insurance company has contributed to the reconstruction of the urban tissue in this part of the city, filling a corner at the intersection of two busy streets. It replaced a previous, smaller edifice belonging to the same insurance company. Well harmonized with contemporary large-scale buildings in the vicinity, it also corresponds with its historic neighbors, especially the large neo-Gothic school next door. Its façade along the street rests on a two-storied portico, and the corner overhangs an exit from the underground passage. The elevations are finished in copper panels which refers to the color scheme of the school and other brick buildings in the vicinity, and which are articulated with pipes and bunches of slats masking elements of lighting. A one-storied plinth of the rear façade along the school playfield forms a green terrace. Inside, a large, two-storied entrance lobby is finished in graphite ceramic panels.