Kondycja architektury mieszkaniowej

2023-11-28 14:25

Stan polskiej polityki mieszkaniowej nie napawa optymizmem. Brakuje lokali dostępnych, wciąż powstają osiedla grodzone z namiastkami placów zabaw, a oferta rynkowa bogata jest w mikroapartamenty. Odpowiedzi na pytanie o kondycję mieszkalnictwa udziela Agata Twardoch, która przeanalizowała układy mieszkań w realizacjach zaprojektowanych przez wiodące pracownie architektoniczne.

Osiedle Beauforta sytuacja

i

Autor: Archiwum redakcji/ Materiały prasowe Osiedle Beauforta, Pogórze, gm. Kosakowo Autorzy: Rayss Group, architekci Łukasz Rayss, Barbara Czołczyńska, Barbara Grzędzicka, Aleksandrza Flejszar, Kornelia Jażdżewska, architekt krajobrazu Realizacja: 2017-2021 Sytuacja

Gdy redaktorka naczelna „A-m” poprosiła mnie o analizę współczesnych układów mieszkań, od razu wyobraziłam sobie rzuty zbyt małych, niedoświetlonych lub całkiem nieustawnych „apartamentów” i mój krytyczny tekst o nich zakończony wnioskami: Normy! Edukacja! Mieszkanie jako infrastruktura! Jednak praca nad artykułem, którego zakończenie znałam, zanim jeszcze napisałam pierwsze zdanie, oraz ponowne „wałkowanie" otaczającej nas beznadziei wydało mi się nieskończenie nudne i przygnębiające. Poprosiłam więc siedem zaprzyjaźnionych i uznanych za wiodące pracowni, żeby wskazały w portfolio swoje ulubione mieszkaniowe realizacje. Wybór miał być subiektywny i błyskawiczny, żeby nie było czasu na jego PR-ową analizę (działy public relations proszę o wyrozumiałość!). Tak zebrałam osiem budynków i zespołów mieszkaniowych, których analiza okazała się zaskakująca i przyniosła kilka mniej oczywistych wniosków. Interesowały mnie nie tylko same rzuty, lecz także właśnie szybkie decyzje kolegów – czyli to, co sami architekci (i architektka) uznają za godne uwagi. Odezwałam się do (alfabetycznie): BBGK, Grupy 5, JEMS Architektów, Maćków Pracowni Projektowej, MAMarchitekci, Medusa Group oraz Rayss Group.

Osiedle Beauforta rzut

i

Autor: Archiwum serwisu Osiedle Beauforta, Pogórze, gm. Kosakowo Autorzy: Rayss Group, architekci Łukasz Rayss, Barbara Czołczyńska, Barbara Grzędzicka, Aleksandrza Flejszar, Kornelia Jażdżewska, architekt krajobrazu Realizacja: 2017-2021 Rzut kondygnacji mieszkalnej https://cdn.galleries.smcloud.net/t/photos/gf-XBZw-UoVc-os3Y_osiedle-beauforta-rzut.jpeg

Budynek mieszkalny Sprzeczna 4

Wojtek Kotecki z BBGK wskazał dwie, zupełnie odmienne, realizacje: Sprzeczną 4 oraz Mennicę Residence. Pierwsza jest bez wątpienia niezwykłym obiektem – manifestem prefabrykacji, nowoczesną plombą w zniszczonej przedwojennej zabudowie warszawskiej Pragi. Nie błyszczy na tle starszych koleżanek i nie razi w oczy, za to przejmuje ich tonację, fakturę i rytm, jednak bez popadania w tanią imitację. Zastosowanie w tej realizacji prefabrykacji udowadnia, że jest to metoda konkurencyjna dla technologii tradycyjnej: szybka w realizacji, łatwa do indywidualizacji, dająca swobodę kształtowania rzutów. Tę swobodę przetestowano, oddzielając konstrukcję mieszkań od konstrukcji podziemnego garażu, na czym zyskały i mieszkania, i garaż. Jak przystało na nowoczesne miasto w garażu jest niewiele miejsc postojowych dla samochodów, za to znalazł się w nim systemowy parking rowerowy. Najmniejsze mieszkania mają tu 28 m2, największe – prawie 100, towarzyszą im balkony i spore tarasy, których powierzchnia sięga 79 m2. Mimo ściętej pod znacznym kątem działki udało się osiągnąć foremne mieszkania, a powstałe przez to uskoki w elewacji frontowej ukryte są w konstrukcji tarasów. Dzięki stosunkowo płytkiemu traktowi, w średnich mieszkaniach wejścia do sypialni nie prowadzą prosto z dużego pokoju, zamiast tego są elegancko ukryte w niewielkich, półotwartych korytarzykach.

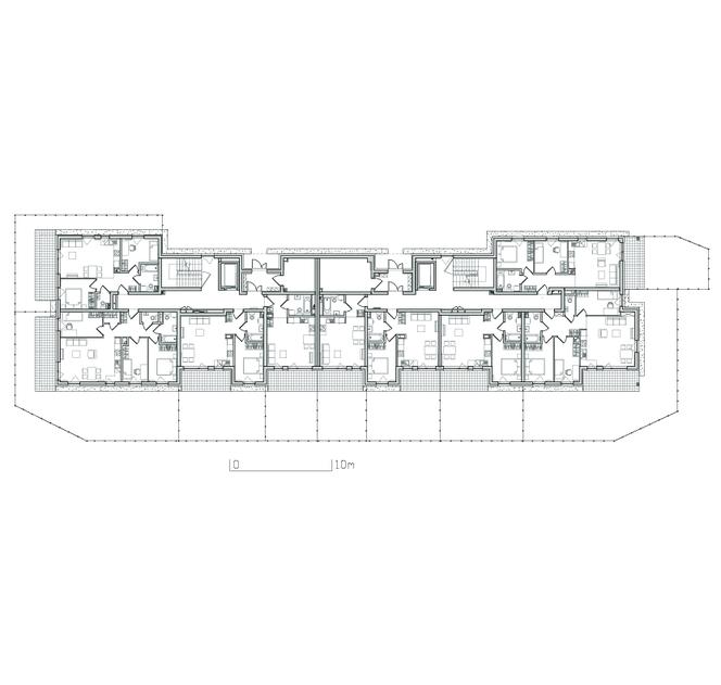
Malądzka rzut

i

Autor: Archiwum serwisu Budynek mieszkalny, Warszawa, ul. Mlądzka Autorzy: MAMarchitekci, architekci Katarzyna Rokicka-Müller, Maksym Potapow, Piotr Pieńkowski, Dominika Zubkowicz Realizacja: 2019-2022 Rzut parteru https://cdn.galleries.smcloud.net/t/photos/gf-i9H1-eqC1-TYYS_maladzka-rzut.jpeg

Zespół mieszkaniowo-usługowy Mennica Residence

Mennica Residence jest realizacją całkiem inną, nieoczywistą i odważną pozycją na liście ulubionych realizacji architekta. Jest to inwestycja wyraźnie komercyjna, o maksymalnej intensywności i niewielkim wizualnym wyrafinowaniu. O estetyce jeden z autorów mówi: umiar w doborze środków oraz ponadczasowość, i to właściwie wszystko, co można na jej temat powiedzieć. O wyjątkowości zespołu decyduje jednak jego nieograniczona podatność na zmiany. Wieże mieszkalne mają konstrukcyjnie otwarty plan, bez słupów i ścian nośnych (shell and core), co pozwala na niezależne układy poszczególnych kondygnacji i ułatwia wprowadzanie rewolucyjnych zmiany w trakcie użytkowania. Już w bazowej aranżacji widać wiele możliwości adaptacji budynku. Znajdują się tu mieszkania o wielu metrażach – od 28-metrowych kawalerek po ponad 300-metrowe duplexy i penthousy (każde z balkonem, tarasem, loggią lub ogrodem zimowym), pojedyncze biura i biurowe kompleksy, apartamenty na wynajem i hotele z niezależnymi klatkami schodowymi. Układy najmniejszych mieszkań są poprawne, mają wprawdzie przechodnią strefę kuchenną przy wejściu i dostępną z niej toaletę, ale nie wygląda na to, żeby ktoś zamierzał mieszkać w nich na stałe. Większe lokale, których powierzchnia rośnie z każdym kolejnym piętrem, zaaranżowane są z dbałością o funkcjonalność i ergonomię. Jeżeli już musimy mieszkania traktować jak towar, to dobrze, żeby miał on długą przydatność do spożycia. Osiedle Wróblewo

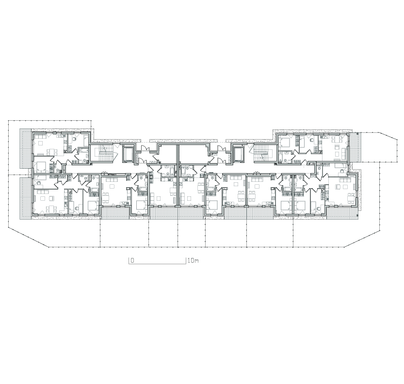
Michał Leszczyński z Grupy 5 zwrócił moją uwagę na osiedle Wróblewo na Tarchominie, które, mimo że zostało zaprojektowane już w 1999 roku, to broni się do dziś. Dla pracowni jest to przełomowa realizacja, bo ukonstytuowała jej podejście do projektowania zespołów mieszkaniowych, zgodnie z którym jako inwestor traktowany jest jej końcowy odbiorca-mieszkaniec, a nie zamawiający. Katalizatorem stała się najprawdopodobniej Młodzieżowa Spółdzielnia Mieszkaniowa, która zleciła młodym wtedy architektom wykonanie projektu. Mimo że MSM jest odpowiedzialna m.in. za wspaniałe osiedle Młodych z lat 50., w 1999 roku hasło „spółdzielnia” kojarzyło się wyłącznie negatywnie – ze zunifikowanymi i pełnymi absurdalnych rozwiązań mieszkaniami w bloku. Zapewne dlatego projektanci potrzebowali wymyślić sobie lepszego inwestora. Staramy się upodmiotowić naszego przyszłego użytkownika mieszkania – powiedział Michał, a mnie bardzo się to zdanie podoba. Wróblewo to kameralny czterokondygnacyjny budynek w kształcie litery U, z dziedzińcem otwartym na południe, który klimatem nawiązuje do międzywojennego funkcjonalizmu. Zaprojektowany został z dbałością o odpowiednie doświetlenie, widok za oknem i wygodę mieszkańców.

Wszystkie mieszkania są przewietrzane na przestrzał lub narożnikowo i funkcjonalne, mają wydzielone strefy wejścia i oddzielone od salonu drzwi do sypialni. Nawet w najmniejszych z nich, o powierzchni 26,6 m2, jest podział na strefę dzienną i nocną (w budynku w ogóle nie ma mieszkań jednopokojowych!). W parterze, od strony ulicy, znajdują się lokale usługowe, przy wejściu do każdej z klatek schodowych jest wózkownia. Pokoje dzienne lokalizowane są głównie od południa lub zachodu, w ostateczności od wschodu. Loggie i tarasy wychodzą na wewnętrzny dziedziniec.

W tym budynku czuje się radość z projektowania i oddech, a jego analiza napawa spokojem – do momentu, gdy nie próbuje się go zobaczyć w kontekście. Wróblewo znajduje się przy ul. Odkrytej, na Białołęce, a ta na swoją złą sławę rzetelnie zapracowała. Obecnie więc zaprojektowany przez Grupę 5 budynek, który otoczony podobną do niego zabudową mógłby tworzyć wzorcowe osiedle mieszkaniowe, ginie wśród przytłaczającego horror vacui podmiejskiej warszawskiej zabudowy łanowej z drugiego dziesięciolecia XXI wieku. Każdy pasek porolniczego gruntu zagospodarowany jest do ostatniego metra kwadratowego, każdy zabudową całkowicie odmienną od sąsiedniej: o nieprzystających skali, charakterze, układzie ani kierunku. Brakuje pierzei, parków, przestrzeni publicznych i ścieżek rowerowych. Na początku napisałam, że budynek broni się, „mimo że” zaprojektowany był na przełomie wieków, zastanawiam się jednak, czy nie powinnam była napisać „dzięki temu że”. Nie jestem pewna, czy w obecnych uwarunkowaniach możliwa byłaby taka realizacja skierowana do przeciętnego odbiorcy.

Osiedle Beauforta roślinność

i

Autor: Dzięki uprzejmości pracowni Rayss Group/ Materiały prasowe Osiedle Beauforta, Pogórze, gm. Kosakowo Autorzy: Rayss Group, architekci Łukasz Rayss, Barbara Czołczyńska, Barbara Grzędzicka, Aleksandrza Flejszar, Kornelia Jażdżewska, architekt krajobrazu Realizacja: 2017-2021 Wykaz zastosowanych roślin https://cdn.galleries.smcloud.net/t/photos/gf-rFgF-AEPf-WvQJ_osiedle-beauforta-roslinnosc.jpeg
Mennica Residance - sytuacja

i

Autor: Archiwum serwisu Zespół mieszkaniowo-usługowy Mennica Residence, Warszawa, ul. Grzybowska 43A Autorzy: BBGK Architekci, architekci Jan Belina--Brzozowski, Konrad Grabowiecki, Wojciech Kotecki Współpraca autorska: architekci Tomasz Skalski, Jacek Wochowski, Mariusz Wronowski, Michał Ożóg, Karol Wiśniewski, Michał Sztolcman, Jakub Szymański, Michał Dezór, Tomasz Pluciński, Małgorzata Wilczyńska, Zofia Laskowska Architektura wnętrz: BBGK Architekci i Agnieszka Słowik Realizacja: 2016-2018 Sytuacja. Oznaczenia: 1 – Mennica Residence (I etap); 2 – Mennica Residence (II etap); 3 – Mennica Legacy Tower; 4 – Browary Warszawskie na miejscu dawnych browarów Haberbuscha i Schielego; 5 – dawny browar Junga; 6 – dawna fabryka Norblina https://cdn.galleries.smcloud.net/t/photos/gf-Mgir-e7sR-z3ib_mennica-residance-sytuacja.jpeg
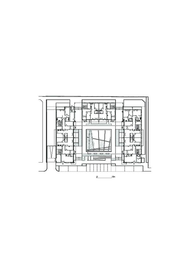
Mennica Residance - rzut parteru

i

Autor: Archiwum serwisu Zespół mieszkaniowo-usługowy Mennica Residence, Warszawa, ul. Grzybowska 43A Autorzy: BBGK Architekci, architekci Jan Belina--Brzozowski, Konrad Grabowiecki, Wojciech Kotecki Współpraca autorska: architekci Tomasz Skalski, Jacek Wochowski, Mariusz Wronowski, Michał Ożóg, Karol Wiśniewski, Michał Sztolcman, Jakub Szymański, Michał Dezór, Tomasz Pluciński, Małgorzata Wilczyńska, Zofia Laskowska Architektura wnętrz: BBGK Architekci i Agnieszka Słowik Realizacja: 2016-2018 Rzut parteru. Oznaczenia: 1 – hol wejściowy; 2 – pomieszczenie usługowe; 3 – wjazd do garażu; 4 – dziedziniec https://cdn.galleries.smcloud.net/t/photos/gf-Ztrs-1V4C-HX4y_mennica-residance-rzut-parteru.jpeg

Zespół mieszkaniowy Wilanowska

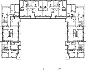
Z pracowni JEMS zagadnęłam Maćka Rydza, który wskazał osiedle przy al. Wilanowskiej, wybrane na podstawie nieoficjalnego pracownianego plebiscytu. Zespół powstawał w dwóch etapach (pierwszy oddany do użytku w 2009 roku, drugi w 2014) tworzących razem spójną estetycznie całość, której architektura przez lata nie zestarzała się ani o jotę. Zastosowano tu ciekawe połączenie ciepłego, drewnianego i dynamicznego wnętrza oraz białego, neutralnego i statycznego zewnętrza. Jedno od drugiego odróżnia się do tego stopnia, że szukając znanych z architektonicznych magazynów żaluzjowych elewacji, możemy z łatwością przeoczyć stojący przy al. Wilanowskiej biały i skromny budynek z szarymi pasami okien. Formalnie zabieg wspaniale się broni.

Znajdujące się w zespole mieszkania są różnorodne. Większe 150-metrowe apartamenty, z których część wyposażona jest w stosunkowo duże ogrody lub tarasy na dachu, znajdują się we wnętrzu założenia. Mniejsze i tańsze – w podłużnych budynkach, które chronią jego serce od północy przed hałasem, a od wschodu przed sąsiednim kameralnym osiedlem z wielkiej płyty. Większe mieszkania mają bardzo dobry układ z wyraźnym podziałem na strefę dzienną i sypialnianą oraz z półwydzieloną kuchnią. Do mniejszych, jednoprzestrzennych, wchodzi się od strony sypialnej, co jest rozwiązaniem niestandardowym, ale myślę, że może się sprawdzać.

Niestety jest to osiedle zamknięte: płoty i podziały przecinają je we wszystkich kierunkach. Po pierwsze, cały zespół jest szczelnie ogrodzony. Od frontu budynkiem bramnym z usługami w parterach, w pozostałych częściach jednak już drucianą siatką. Po drugie, we wnętrzu wydzielone są nie tylko prywatne ogródki, które zajmują zdecydowanie większą część terenu, lecz także nie ma możliwości przejścia pomiędzy wnętrzem pierwszego i drugiego etapu realizacji, które tworzyć powinny przecież całość. To, że gdy chciałam osobiście pooglądać tę nagradzaną realizację, musiałam podać się za pacjentkę mającego w zespole gabinet dentysty, jeszcze da się zrozumieć. Jednak to, że mieszkający na jednym osiedlu sąsiedzi muszą wyjść poza jego obręb, żeby się nawzajem odwiedzić, jest już absurdem (nie wspomnę o tym, że układ kilku graniczących ze sobą wzdłuż al. Wilanowskiej osiedli z powodzeniem mógłby mieć łączący je wewnętrzny zielony pasaż, ani tym bardziej o tym, że prowadzący z północy klin zieleni, który wprowadza mieszkańców okolicznych terenów w Gucin Gaj, sprawdzałby się lepiej, gdyby nie zamieniono go w parking). Szczelne ogrodzenie osiedla ma dodatkowy szkodliwy społecznie wymiar – ponieważ znajdujący się w jego obrębie plac zabaw należy raczej do tych symbolicznych, idę o zakład, że dzieci chodzą bawić się na sąsiednie osiedle z wielkiej płyty. Muszę przyznać, że nie cenię świata, w którym zdecydowanie zamożniejsi mieszkańcy luksusowego kompleksu mogą korzystać z infrastruktury finansowanej przez gorzej uposażonych mieszkańców postpeerelowskiego blokowiska, podczas gdy w drugą stronę nie ma już takiej możliwości. W tym kontekście podział na bogate i rozrzeźbione wnętrze oraz oszczędne zewnętrze nabiera innego – ekskluzywnego w dosłownym znaczeniu tego słowa – wymiaru. Zastanawiam się, czy w tym przypadku piękna architektura i przyzwoity układ równoważą szkodliwą społecznie organizację przestrzeni. Budynek mieszkaniowo-usługowy Witolda 43

Zbyszek Maćków podsunął mi wrocławską kamienicę przy ul. Witolda 43. W przypadku tego mieszkaniowo-usługowego budynku najlepsza jest opowieść, która za nim stoi – nie dość, że kwartał przewidziany pod wielką galerię handlową został ostatecznie przeznaczony pod mieszkaniówkę, to dodatkowo duża działka, na której stanąć miał zaprojektowany przez wrocławskich architektów i architektki budynek, została w 60% przeznaczona na publiczny skwer. Inwestor na takie rozwiązanie nie tylko się zgodził, lecz także dodatkowo sfinansował jego projekt i realizację, w czym widzę siłę perswazji Zbyszka Maćkowa (chapeaux bas!). Ostatecznie powstał budynek, który z jednej strony stanowi południowo-wschodnie domknięcie istniejącego kwartału zabudowy mieszkaniowej (jego wschodni narożnik graniczy z Rezydencją Leopoldinum, proj. Maciej Hawrylak z 2007 roku, zachodni – z o wiele niższą przedwojenną kamienicą), a z drugiej stał się północną pierzeją placu. W podciętym parterze umieszczono lokale usługowe, zaprojektowane w sposób, który przekreśla możliwość ich ewentualnej zamiany na dodatkowe mieszkania. Dzięki podjętym decyzjom projektowym ta część Wrocławia ma szansę stać się prawdziwie miejska. Ponarzekałabym trochę na wystrój samego placu – jego zagospodarowanie sprawia, że nie jest on do końca ani placem, na którym można zrobić sąsiedzką wyprzedaż garażową, ani skwerem, gdzie można wypocząć wśród zieleni – i na betonowe ławki, które są niewygodne i jak sądzę niezbyt ekologiczne, ale nie są to rzeczy, których nie można zmienić i dostosować do potrzeb, gdy te się już doprecyzują.

W budynku zaprojektowano mieszkania o wielkości między 39 a 190 m2, wszystkie z balkonami, logiami lub tarasami. Największe z nich są przewietrzane na przestrzał lub narożnikowo. Tylko jedno mieszkanie na piętrze doświetlane jest jedynie od północy, ma za to bardzo płytki trakt, jest więc szansa, że będzie się dało tam mieszkać, nie chorując przy okazji na zimową depresję. Najmniejsze mieszkania mają hotelowy układ z wejściem do sypialni z pokoju dziennego, ale jest to już chyba standard, do którego musimy się przyzwyczaić, bo dzięki niemu oszczędzamy tak cenne metry. Kamienica ma siedem i pół kondygnacji naziemnych (ale mezzanino zostało nieco wycofane, więc nie przytłacza wysokością) oraz dwie podziemne parkingu. Dzięki niesymetrycznemu rozcięciu od strony placu budynek nie sprawia jednak wrażenia przysadzistego. Bardzo doceniam także sprytną grę balkonami: loggie od strony placu nadają elewacji miejskiego wyrazu, balkony na elewacjach bocznych podkreślają mieszkaniową funkcję obiektu.

Budynek mieszkalny Mlądzka

i

Autor: Dzięki uprzejmości MAMarchitekci/ Materiały prasowe Budynek mieszkalny, Warszawa, ul. Mlądzka Autorzy: MAMarchitekci, architekci Katarzyna Rokicka-Müller, Maksym Potapow, Piotr Pieńkowski, Dominika Zubkowicz Realizacja: 2019-2022 Rzut piętra https://cdn.galleries.smcloud.net/t/photos/gf-L6WU-Hy6B-reUM_budynek-mieszkalny-mladzka.jpeg
Mennica Residance - rzut 2 piętra

i

Autor: Archiwum serwisu Zespół mieszkaniowo-usługowy Mennica Residence, Warszawa, ul. Grzybowska 43A Autorzy: BBGK Architekci, architekci Jan Belina--Brzozowski, Konrad Grabowiecki, Wojciech Kotecki Współpraca autorska: architekci Tomasz Skalski, Jacek Wochowski, Mariusz Wronowski, Michał Ożóg, Karol Wiśniewski, Michał Sztolcman, Jakub Szymański, Michał Dezór, Tomasz Pluciński, Małgorzata Wilczyńska, Zofia Laskowska Architektura wnętrz: BBGK Architekci i Agnieszka Słowik Realizacja: 2016-2018 Rzut 2. piętra mieszkalnego https://cdn.galleries.smcloud.net/t/photos/gf-hYV2-QXzG-EFtj_mennica-residance-rzut-2-pietra.jpeg

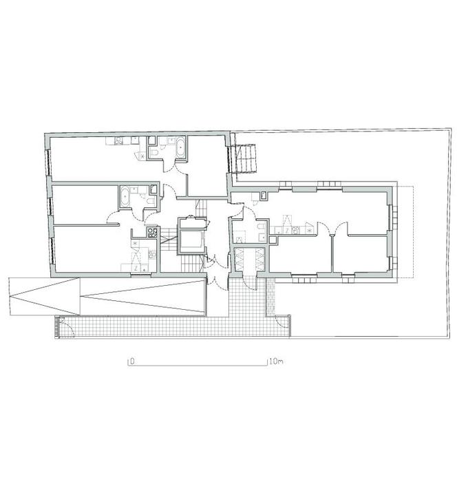
Budynek mieszkalny Mlądzka

Kasia Rokicka-Müller z pracowni MAMarchitekci zwróciła moją uwagę na kameralny projekt przy ul. Mlądzkiej na warszawskim Grochowie. Inwestycja polegała na modernizacji i rozbudowie modernistycznego zabytkowego budynku mieszkalnego. Istniejący, dwukondygnacyjny obiekt powiększony został od strony ogrodu, dzięki czemu jego chroniona bryła zachowała swój pierwotny charakter. Materiałowe rozdzielenie części starej (biały tynk) od nowej (cegła silikatowa plus drewno), powoduje, że nie mamy wątpliwości ani co stało tu od dawna, ani co jest nowym dodatkiem – a to przecież jedna z najważniejszych, konserwatorskich zasad. W obiekcie powstało dziewięć mieszkań o wielkościach między 25 a 60 m2, których – szczególnie jak na obiekt w połowie adaptowany – układy są nad wyraz zgrabne. Niektóre z nich mają bezpośredni dostęp do małych ogródków wydzielonych z jednego większego, wszystkie mają własne balkony. Jeszcze po wojnie w tej części Grochowa było całkiem sporo podobnych, międzywojennych domów, które później zaczęły znikać, ustępując miejsca zabudowie z wielkiej płyty, parkingom i pawilonom. Tym bardziej cieszy, że budynek przy ul. Mlądzkiej nie tylko zachował mieszkalną funkcję, lecz także nieco pierwotnej, skromnej formy. Należy mieć tylko nadzieję, że podobny los spotka towarzyszącego mu od zachodu bliźniaka i resztę międzywojennej zabudowy z sąsiednich ulic. Dobrze byłoby, gdyby kolejnymi projektami modernizacji także zajęły się dziewczyny z MAMarchitektów – w tym wypadku wyszło dobrze, a i gwarantowana tą samą ręką spójność byłaby na miejscu. Pierwsza Dzielnica

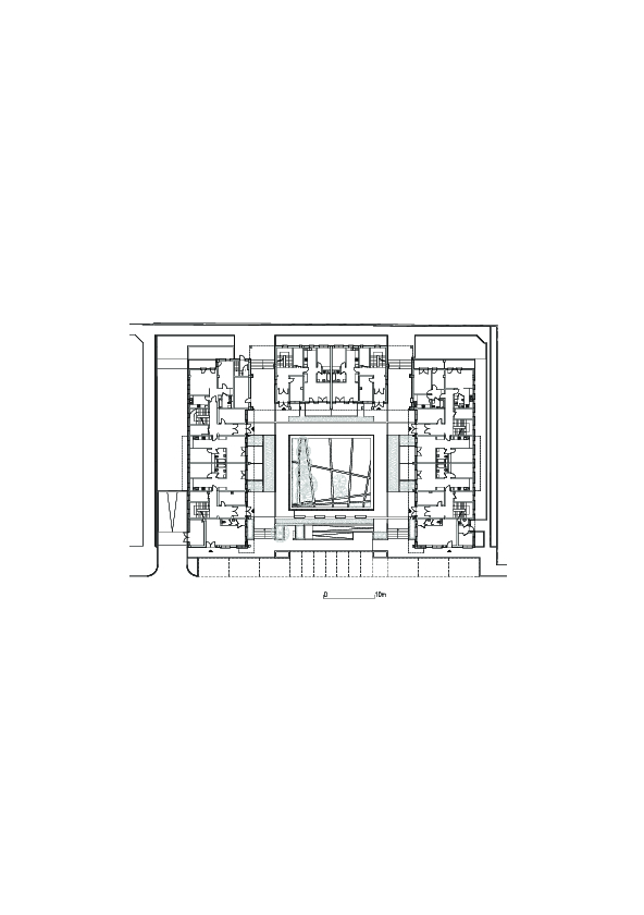
Przemo Łukasik z Medusy Group, poproszony o wybranie jednej realizacji, najpierw wskazał Bolko Loft i wcale mu się nie dziwię, bo dla mnie też jest to jedna z ważniejszych polskich realizacji w ogóle. Nie spełniała ona jednak mojego kryterium zabudowy wielorodzinnej, więc zatrzymaliśmy się na katowickiej Pierwszej Dzielnicy. Bardzo doceniam ten bezkompromisowy wybór, bo nie znam wielu mieszkaniowych projektów, które jeszcze na etapie koncepcji wywołałyby taką dyskusję. Założenie powstaje (na razie ukończony jest pierwszy etap) na terenie po kopalni Katowice, w strefie kultury, w której stoją już Spodek (proj. Gintowt, Krasiński) Muzeum Śląskie (Ritveld und Rieve), ECK (JEMS Architekci) oraz NOSPR (Konior Studio). To właśnie lokalizacja wywołała na Śląsku zamieszanie i podzieliła mieszkańców na przeciwników (licznych) i zwolenników budowy 16-piętrowych punktowców w tle symbolicznej panoramy pokopalnianej. Żeby złagodzić narosłe wokół budynków kontrowersje, architekci z Medusy konsultowali projekt z sąsiadami okolicznych dzielnic, a inwestor obiecał, że teren osiedla będzie powszechnie dostępny. Otwarte i parkowe otoczenie budynków – które na razie w całości widzimy jedynie na wizualizacjach – sprawia, że nie można pozbyć się skojarzeń z najsławniejszymi katowickimi osiedlami duetu Buszki i Franty: znajdującymi się zaraz obok „gwiazdami”, czy „kukurydzami” osiedla Tysiąclecia. W naszych stronach jest to skojarzenie pozytywne.

Na pierwszy, już oddany do użytkowania, etap osiedla składają się trzy wieże o 12 kondygnacjach naziemnych, postawione na wspólnej kondygnacji usługowej i dwóch piętrach garażu podziemnego. Budynki te stanowią pewnego rodzaju bramę do rosnących za nimi wyższych i docelowo zatopionych w zieleni wież. Zrealizowane obiekty to typowe punktowce z trzonem komunikacyjnym i rozłożonymi dookoła mieszkaniami o wielkościach między 29 m2 a prawie 100 m2. Wejścia do klatek prowadzą ze znajdującej się między lokalami usługowymi zadaszonej przestrzeni, która ma szansę zaistnieć jako przyjazna strefa sąsiedzka. W każdej klatce jest pomieszczenie na rowery.

Skojarzenie z osiedlem Tysiąclecia nie bazuje jedynie na skali. Wizja Pierwszej Dzielnicy wygląda jak realizacja CIAM-owskich postulatów sprzed stu lat, zmaterializowana z wykorzystaniem współczesnych środków technicznych. Usytuowane w parku budynki zapewniają dostęp do słońca, powietrza i zieleni. Samochody w całości schowano w parkingach podziemnych, co realizuje postulat rozdziału ruchu kołowego od komunikacji pieszej. Usługi w parterach ograniczają konieczność podróży poza osiedle. I prawie dałabym się tej wizji porwać, gdyby tylko zespół nie był tak ekskluzywny i zanurzony w neoliberalnym paradygmacie. Inwestor bardzo zyskuje na zlokalizowanej obok strefie kultury, której obecność podnosi wartość mieszkań, ale co zyskuje miasto? Ekskluzywne apartamenty dla wybranych, apartamenty inwestycyjne i apartamenty na pobyt krótkoterminowy (których już teraz na samym booking.com znalazłam kilkanaście, w końcu to świetna lokalizacja zaraz przy Spodku i NOSPR-ze). To – że miastu nie udało się w zamian za zgodę na budowę tej wielkiej inwestycji, dla której konieczna była zmiana prawa lokalnego – wynegocjować żadnych mieszkań dostępnych cenowo, jest bezsprzecznym dowodem na słabość obecnego systemu i nierówny rozkład sił pomiędzy jednostkowym interesem prywatnym a powszechnym interesem mieszkańców. Nie jest to jednak ani winą, ani odpowiedzialnością architektów, którzy ze swojej strony zrobili dobrą robotę. Osiedle Beauforta

Łukasz Rayss, architekt i założyciel pracowni Rayss Group, odpowiedzialnej za wiele zespołów mieszkaniowych zlokalizowanych w rejonie Trójmiasta, bez wahania powiedział, że jego ulubionym jest osiedle Beauforta: bez zadęcia, żaden pomnik architektoniczny, po prostu dobre osiedle dla ludzi do mieszkania. W zupełności się z takim wyborem zgadzam. Założenie powstało w gwałtownie urbanizującej się części Gdyni, nieco na zachód od Kosakowa, najlepiej znanego z festiwalu Open’er. Ta lokalizacja sprawia, że osiedle jest jedną z wielu nowych inwestycji na terenach wycinanych łanami z pól uprawnych, tworzących w tej części skomplikowany układ mozaikowy, który doskonale widać w kompozycji powstającej zabudowy. Projekt pracowni Rayss Group zlokalizowano na jednej z połanowych działek o wydłużonym kształcie, jednak uciążliwość geometrii projektantom i projektantkom z pracowni udało się zniwelować m.in. dzięki nietypowemu przebiegowi głównej osi zespołu, która nie biegnie prosto, a po łuku, ukośnie do dłuższej krawędzi działki. Czterokondygnacyjne budynki rozłożone są wzdłuż niej i tworzą po obu jej stronach mniejsze zespoły zabudowy z wewnętrznymi dziedzińcami i całą masą zieleni. To właśnie ta zieleń i towarzyszący jej system naturalnej retencji stanowią o wyjątkowości osiedla. Cała błękitno-zielona infrastruktura została zaprojektowana przez architektkę krajobrazu Joannę Rayss, i co ważne, konsekwentnie zrealizowana. Jest ona na tyle wyjątkowa, że stała się pokazową inwestycją dla osób zainteresowanych wdrażaniem takich rozwiązań (nawiasem mówiąc, sama pokazuję ją jako dobry przykład swoim studentom i studentkom). Na osiedlu udało się także zrealizować przemyślany system otwartych dla wszystkich przestrzeni publicznych: od zachodu deweloper zlokalizował – zgodnie z wymogami studium – boisko i zbiornik wodny, a między budynkami – już bez planistycznego przymusu – powstały: tyrolka, zielony labirynt, grządki uprawne, szachy, domek dla dzieci i wiele innych elementów, na których wykonanie bardzo często inwestorom brakuje chęci.

Wszystkie budynki mają dosyć wąskie trakty, brakuje bowiem mieszkań, które wychodziłyby jedynie na stronę północną. W każdej klatce znajduje się wózkownia i winda, mimo że budynki mają jedynie cztery kondygnacje. Mieszkania w tej realizacji są bardzo zgrabne. Konsekwentne uporządkowanie ich układów z pasem funkcji pomocniczych, wyznaczonym równolegle do osi budynku, przywodzi mi na myśl nasze idealistyczne studenckie projekty, gdy mieszkania mogłyśmy budować z „alfabetu pomieszczeń” i zgodnie z zaplanowaną logiką, gdyż nie wisiał nad nami jeszcze paradygmat PUM-u.

Pierwsza Dzielnica - rzut parteru

i

Autor: Archiwum serwisu Pierwsza Dzielnica, Katowice, ul. Góreckiego Autorzy: Medusa Group, architekci Przemo Łukasik, Łukasz Zagała Współpraca autorska: architekci Maria Jaksik, Anna Siwińska, Jarosław Przybyłka, Marta Frączyk, Łukasz Iwan, Michał Sokołowski, Mateusz Rymar, Konrad Basan, Krzysztof Weber Architektura wnętrz: architekci Dorota Pala, Izabela Moskal, Magdalena Stanik Realizacja: 2021 Rzut parteru. Oznaczenia: 1 – przestrzeń wspólna mieszkańców; 2 – powierzchnia usługowo-handlowa https://cdn.galleries.smcloud.net/t/photos/gf-4t3y-6HV4-ygop_pierwsza-dzielnica-rzut-parteru.jpeg
Pierwsza Dzielnica - rzut 1-4

i

Autor: Archiwum serwisu Pierwsza Dzielnica, Katowice, ul. Góreckiego Autorzy: Medusa Group, architekci Przemo Łukasik, Łukasz Zagała Współpraca autorska: architekci Maria Jaksik, Anna Siwińska, Jarosław Przybyłka, Marta Frączyk, Łukasz Iwan, Michał Sokołowski, Mateusz Rymar, Konrad Basan, Krzysztof Weber Architektura wnętrz: architekci Dorota Pala, Izabela Moskal, Magdalena Stanik Realizacja: 2021 Rzut powtarzalny, kondygnacja mieszkalna, piętra 1.-4. https://cdn.galleries.smcloud.net/t/photos/gf-kiPg-ELZ3-fZbk_pierwsza-dzielnica-rzut-1-4.jpeg

Co z tego wynika?

Nieusystematyzowany przegląd pozwolił mi poznać osiem całkiem odmiennych realizacji: od prefabrykowanej plomby i kameralnej rozbudowy budynku zabytkowego przez kilka niezwykle komercyjnych inwestycji w centrach miast po duże osiedle w silnie urbanizującej się okolicy. Co łączy te inwestycje?

1. Dobre układy mieszkań i strefy wspólne. Wbrew medialnemu lamentowi da się zaprojektować ustawne mieszkania w warunkach podporządkowania inwestycji realiom Excela i to niezależnie od wielkości (pod warunkiem, że jest to wielkość mieszkaniowa, a nie schowka pod schodami). Co więcej, po pewnym okresie, gdy przestrzenie wspólne, takie jak wózkownie i rowerownie, były konsekwentnie wycinane nie tylko z projektów, lecz także z istniejących budynków, widać ich renesans. Pojawiają się one w prawie wszystkich opisanych tu inwestycjach. Nie da się jednak nie zauważyć, że nawet w tych jednych z najlepszych realizacji mieszkaniowych ostatnich lat nie ma tego, co znalazło się w pochodzącym z końca lat 90. Wróblewie – oddechu.

2. Parkingi. Nadal trzeba je projektować zgodnie z anachronicznymi wymogami prawa miejscowego. W efekcie zespoły albo powstają na wielkich garażach podziemnych, które znacząco zwiększają koszty inwestycji i nie dają absolutnie żadnej możliwości adaptacyjnej, gdy w końcu spadnie liczba użytkowanych samochodów (a w końcu spadnie), albo wśród morza parkingów naziemnych. Jedynie w realizacji na Sprzecznej udało się wynegocjować z miastem zmniejszenie liczby samochodów, co pozwoliło w zamian na spory i wygodny parking rowerowy. Na osiedlu Beauforta, gdzie znaczna część miejsc postojowych znajduje się na powierzchni terenu, widać jak bardzo wpłynęły one na układ budynków – znowu winne są wymogi prawa lokalnego, mimo że niedaleko osiedla powstaje kolejna stacja SKM. W przypadku parkingów naziemnych możemy przynajmniej mieć nadzieję, że z czasem będą one zamieniane na dodatkowe tereny rekreacyjne. Dziwi, że nigdzie nie pojawiły się jeszcze garaże wielopoziomowe w typie kopenhaskiego budynku Parc&Play, który łączy miejsca postojowe dla samochodów i rowerów, usługi w parterach oraz plac zabaw na dachu i umożliwia ewentualną adaptację na inne funkcje.

3. Poszukiwania nowego wyrazu. Wszystkie realizacje charakteryzuje poszukiwanie nowych odpowiedzi na stare mieszkaniowe problemy. Na Sprzecznej, wybudowanej w niestosowanej od kilku dekad technologii prefabrykowanej, widać to najlepiej. Można jednak to zauważyć także w wolnych planach Mennicy Residence, placu przed wrocławską realizacją przy ul. Witolda 43, zatopionych w parku wieżach Pierwszej Dzielnicy, ogrodach deszczowych na osiedlu Beauforta czy nawet w nawiązującym do holenderskiego międzywojnia budynku autorstwa Grupy 5.

4. Publiczne vs prywatne. We wszystkich realizacjach widać mocną grę interesów, w której szala zwycięstwa przechyla się raz na stronę dewelopera, raz zatrzymuje się w pośrodku, co pozwala połączyć najlepiej jak się da interes publiczny z prywatnym. Zza realizacji, które pozostają w równowadze, widać nieustępliwość i umiejętności negocjacyjne architektów i architektek. Szczególnie mocno – w niezwykle konsekwentnej Sprzecznej, placu, który zastąpił część budynku przy wrocławskiej realizacji Zbyszka Maćkowa, czy zieleni na osiedlu w Gdyni, za którą stoi bezkompromisowość Joanny Rayss – wiem, bo widziałam ją w działaniu.

W tym miejscu dotarłam do powracającego pytania o odpowiedzialność architektek i architektów oraz o znaczenie tego zawodu. Moja odpowiedź stoi w kontrze do przekonania wielu projektantów, którzy przypisują sobie rolę odpowiedzialnego za dobro świata demiurga: architektura to jednak zawód usługowy. Wykonywany dobrze – z uwzględnieniem potrzeb odbiorcy, inwestora, środowiska i interesu publicznego – może zmieniać rzeczywistość na lepszą, ale tak samo (toutes proportions gardées) jak robią to wygodne, piękne i ekologiczne buty. Niezwykle ważna jest przy tym umiejętność perswazji i argumentowania, która pozwala przekonywać deweloperów do lepszych rozwiązań, przynajmniej w ramach określonego poziomu zysku. Na koniec, wbrew obietnicom, wracam jednak do norm, edukacji i mieszkania traktowanego jako infrastruktura. Bo kto ma odpowiadać za sprawiedliwy i zrównoważony rozwój naszych miast, jeżeli nie architekci i architektki, którym zostawiłabym pod opieką tylko (i aż) piękno, trwałość oraz wygodę użytkowania?

Po pierwsze normy – te dotyczące mieszkań, które w znacznej mierze znajdują się w rozporządzeniu o warunkach technicznych, ale także te urbanistyczne, które nie pozwolą na budowę bez infrastruktury, albo osiedli ogrodzonych płotem i składających się jedynie z apartamentów luksusowych. Nie mogą oczywiście być one sztywnie ustalone dla całego kraju czy nawet całego obszaru miasta, a szyte konkretnie pod każdą lokalizację. Muszą mieć natomiast wymiar prawa miejscowego, bo bez niego jesteśmy często bezradni w bezlitosnej grze interesów.

Po drugie edukacja przestrzenna prowadzona od samego początku. Skąd osoby, pozbawione w młodości dobrych wzorców, mają wiedzieć, w jakim mieszkaniu będzie im się żyło najlepiej, jaki jest ich żywotny interes jako obywateli miasta czy jaka spoczywa na nich jako na mieszkańcach odpowiedzialność? Dlaczego mamy w Polsce tylko jedno muzeum architektury, w którym dodatkowo są świetne wystawy, ale nie można pooglądać makiety miasta, dowiedzieć się, gdzie spływają ścieki czy do czego służą w mieście drzewa? Myślę też, że potrzeba nam zmiany sposobu edukacji samych architektek i architektów – wiele z wykonywanej obecnie pracy już niedługo zastąpią algorytmy, ale te nie wyręczą nas w obowiązku negocjacji z inwestorem, miastem i mieszkańcami.

Po trzecie mieszkanie traktowane jako infrastruktura. Jeżeli jest ono wyłącznie towarem, to rzeczywiście nie bardzo mamy podstawy, by oczekiwać od mieszkaniowych realizacji czegoś więcej niż tylko wysokiej stopy zysku. Przy takim podejściu w naszych miastach, prędzej czy później, będą piękne budynki i parki, a nawet 15-minutowy dystans do kawiarni, szkoły i terenu zieleni – co z tego, jeżeli przy okazji pracująca w kawiarni baristka będzie spędzała półtorej godziny na dojeździe w jedną stronę, nauczyciel będzie mieszkał kątem u rodziny swojego ucznia (tak jak już się dzieje, np. na Florydzie), a robotnicy budowlani będą sypiać w blaszanych kontenerach bez własnej łazienki. Nie dajmy zamienić sobie miast w parki tematyczne!

Czy w obliczu wniosków, które jak się okazało przewidziałam jednak z góry, słusznie skomplikowałam sobie pracę i wyszłam poza prostą analizę rzutów? Jak najbardziej! Po pierwsze opisane budynki i zespoły to ekonomicznie uzasadniona, a jednak dobra i bardzo dobra architektura mieszkaniowa, która – na co liczę – zwiastuje widoczny na horyzoncie kres patodeweloperki. I po drugie – bardziej nawet istotne – optymizmem napawają zastosowane przez architektów klucze doboru przykładów. Tym z czego najbardziej dumni byli prawie wszyscy moi koledzy (i koleżanka) nie były prestiżowe branżowe nagrody ani spektakularne wodotryski, a obiekty, przy których udało się choć trochę zmienić lokalną rzeczywistość na lepszą. Zatem zamiast z poczuciem beznadziei tekst kończę z wiarą w przyszłość!

Pierwsza Dzielnica - rzut 8-10

i

Autor: Archiwum serwisu Pierwsza Dzielnica, Katowice, ul. Góreckiego Autorzy: Medusa Group, architekci Przemo Łukasik, Łukasz Zagała Współpraca autorska: architekci Maria Jaksik, Anna Siwińska, Jarosław Przybyłka, Marta Frączyk, Łukasz Iwan, Michał Sokołowski, Mateusz Rymar, Konrad Basan, Krzysztof Weber Architektura wnętrz: architekci Dorota Pala, Izabela Moskal, Magdalena Stanik Realizacja: 2021 Rzut powtarzalny, kondygnacja mieszkalna, piętra 8.-10. https://cdn.galleries.smcloud.net/t/photos/gf-pGtL-BYKH-5vwL_pierwsza-dzielnica-rzut-8-10.jpeg
Pierwsza Dzielnica - przekrój

i

Autor: Archiwum serwisu Pierwsza Dzielnica, Katowice, ul. Góreckiego Autorzy: Medusa Group, architekci Przemo Łukasik, Łukasz Zagała Współpraca autorska: architekci Maria Jaksik, Anna Siwińska, Jarosław Przybyłka, Marta Frączyk, Łukasz Iwan, Michał Sokołowski, Mateusz Rymar, Konrad Basan, Krzysztof Weber Architektura wnętrz: architekci Dorota Pala, Izabela Moskal, Magdalena Stanik Realizacja: 2021 Przekrój A-A https://cdn.galleries.smcloud.net/t/photos/gf-8Yri-AX51-GMah_pierwsza-dzielnica-przekroj.jpeg
Pierwsza Dzielnica - rzut 11

i

Autor: Archiwum serwisu Pierwsza Dzielnica, Katowice, ul. Góreckiego Autorzy: Medusa Group, architekci Przemo Łukasik, Łukasz Zagała Współpraca autorska: architekci Maria Jaksik, Anna Siwińska, Jarosław Przybyłka, Marta Frączyk, Łukasz Iwan, Michał Sokołowski, Mateusz Rymar, Konrad Basan, Krzysztof Weber Architektura wnętrz: architekci Dorota Pala, Izabela Moskal, Magdalena Stanik Realizacja: 2021 Rzut 11. piętra, kondygnacja mieszkalna https://cdn.galleries.smcloud.net/t/photos/gf-pQaF-Dcmf-6cUd_pierwsza-dzielnica-rzut-11.jpeg
Sprzeczna 4 - sytuacja

i

Autor: Archiwum serwisu Budynek mieszkalny Sprzeczna 4, Warszawa, ul. Sprzeczna 4 Autorzy: BBGK Architekci, architekci Jan Belina-Brzozowski, Konrad Grabowiecki, Wojciech Kotecki Współpraca autorska: architekci Katarzyna Najberg, Emilia Sobańska Realizacja: 2017 Sytuacja. Oznaczenia: 1 – budynek mieszkalny Sprzeczna 4
Sprzeczna 4 - rzut parteru

i

Autor: Archiwum serwisu Budynek mieszkalny Sprzeczna 4, Warszawa, ul. Sprzeczna 4 Autorzy: BBGK Architekci, architekci Jan Belina-Brzozowski, Konrad Grabowiecki, Wojciech Kotecki Współpraca autorska: architekci Katarzyna Najberg, Emilia Sobańska Realizacja: 2017 Rzut parteru. Oznaczenia: 1 – hol wejściowy; 2 – pomieszczenie usługowe; 3 – pomieszczenie na odpady; 4 – wjazd do garażu podziemnego https://cdn.galleries.smcloud.net/t/photos/gf-2H7x-b7up-fh5E_sprzeczna-4-rzut-parteru.jpeg
Sprzeczna 4 - rzut 1

i

Autor: Archiwum serwisu Budynek mieszkalny Sprzeczna 4, Warszawa, ul. Sprzeczna 4 Autorzy: BBGK Architekci, architekci Jan Belina-Brzozowski, Konrad Grabowiecki, Wojciech Kotecki Współpraca autorska: architekci Katarzyna Najberg, Emilia Sobańska Realizacja: 2017 Rzut 1. piętra https://cdn.galleries.smcloud.net/t/photos/gf-MZ1c-KKc1-Uskk_sprzeczna-4-rzut-1.jpeg
Sprzeczna 4 - przekroj

i

Autor: Archiwum serwisu Budynek mieszkalny Sprzeczna 4, Warszawa, ul. Sprzeczna 4 Autorzy: BBGK Architekci, architekci Jan Belina-Brzozowski, Konrad Grabowiecki, Wojciech Kotecki Współpraca autorska: architekci Katarzyna Najberg, Emilia Sobańska Realizacja: 2017 Przekrój B-B https://cdn.galleries.smcloud.net/t/photos/gf-Zqkr-ozyf-KRaW_sprzeczna-4-przekroj.jpeg
Wilanowska - sytuacja

i

Autor: Archiwum serwisu Zespół mieszkaniowy Wilanowska II etap, Warszawa, al. Wilanowska / ul. Patkowskiego Autorzy: JEMS Architekci, architekci Maciej Miłobędzki, Olgierd Jagiełło, Paweł Majkusiak, Marcin Sadowski, Jerzy Szczepanik-Dzikowski, Paweł Natkaniec Współpraca autorska: architekci Ewa Kozieł-Jurowska, Karol Olechnicki, Maciej Rydz, Marta Świątek-Piziorska, Piotr Waleszkiewicz, Marcin Zaremba Realizacja: 2014 Sytuacja. Oznaczenia: 1 – I etap; 2 – II etap; 3 – Potok Służewiecki https://cdn.galleries.smcloud.net/t/photos/gf-xpJn-u7Uz-UnYc_wilanowska-sytuacja.jpeg
Wilanowska - rzut

i

Autor: Archiwum serwisu Zespół mieszkaniowy Wilanowska II etap, Warszawa, al. Wilanowska / ul. Patkowskiego Autorzy: JEMS Architekci, architekci Maciej Miłobędzki, Olgierd Jagiełło, Paweł Majkusiak, Marcin Sadowski, Jerzy Szczepanik-Dzikowski, Paweł Natkaniec Współpraca autorska: architekci Ewa Kozieł-Jurowska, Karol Olechnicki, Maciej Rydz, Marta Świątek-Piziorska, Piotr Waleszkiewicz, Marcin Zaremba Realizacja: 2014 Rzut kondygnacji powtarzalnej. Oznaczenia: 1 – park; 2 – plac zabaw https://cdn.galleries.smcloud.net/t/photos/gf-hw2N-Wenz-3CpQ_wilanowska-rzut.jpeg
Wilanowska - przekrój

i

Autor: Archiwum serwisu Zespół mieszkaniowy Wilanowska II etap, Warszawa, al. Wilanowska / ul. Patkowskiego Autorzy: JEMS Architekci, architekci Maciej Miłobędzki, Olgierd Jagiełło, Paweł Majkusiak, Marcin Sadowski, Jerzy Szczepanik-Dzikowski, Paweł Natkaniec Współpraca autorska: architekci Ewa Kozieł-Jurowska, Karol Olechnicki, Maciej Rydz, Marta Świątek-Piziorska, Piotr Waleszkiewicz, Marcin Zaremba Realizacja: 2014 Przekrój A-A
Witolda 43 - sytuacja

i

Autor: Archiwum serwisu Budynek mieszkaniowo-usługowy Witolda 43, Wrocław, ul. Witolda 43 Autorzy: Maćków Pracownia Projektowa, architekci Zbigniew Maćków (główny projektant), Szymon Brzezowski (architekt prowadzący), Aleksandra Czupkiewicz, Anna Haudek, Joanna Major, Maria Roj, Natalia Rowińska Współpraca autorska: architekci Marcin Brzeziński, Mariusz Maury, Laura Paluch Architektura wnętrz: Maćków Pracownia Projektowa Realizacja: 2017 Sytuacja. Oznaczenia: 1 – apartamentowiec, 2 – Odra https://cdn.galleries.smcloud.net/t/photos/gf-NRGx-xwg4-YuED_witolda-43-sytuacja.jpeg
Osiedle Wróblewo - sytuacja

i

Autor: Archiwum serwisu Osiedle Wróblewo II, Warszawa, ul. Odkryta 53 Autorzy : Grupa 5, architekci Roman Dziedziejko, Mariusz Jasiński, Mikołaj Kadłubowski, Michał Leszczyński, Krzysztof Mycielski, Mariusz Szpotowicz Współpraca: architekci Daniel Cwalina, Aureliusz Kowalczyk Realizacja: 1999-2004 Sytuacja https://cdn.galleries.smcloud.net/t/photos/gf-QjoY-83du-Ta4w_osiedle-wroblewo-sytuacja.jpeg
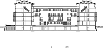
Osiedle Wróblewo - przekrój

i

Autor: Archiwum serwisu Osiedle Wróblewo II, Warszawa, ul. Odkryta 53 Autorzy : Grupa 5, architekci Roman Dziedziejko, Mariusz Jasiński, Mikołaj Kadłubowski, Michał Leszczyński, Krzysztof Mycielski, Mariusz Szpotowicz Współpraca: architekci Daniel Cwalina, Aureliusz Kowalczyk Realizacja: 1999-2004 Przekrój A-A https://cdn.galleries.smcloud.net/t/photos/gf-NWHe-nqFP-VbpD_osiedle-wroblewo-przekroj.jpeg
Witolda 43 - rzut

i

Autor: Archiwum serwisu Budynek mieszkaniowo-usługowy Witolda 43, Wrocław, ul. Witolda 43 Autorzy: Maćków Pracownia Projektowa, architekci Zbigniew Maćków (główny projektant), Szymon Brzezowski (architekt prowadzący), Aleksandra Czupkiewicz, Anna Haudek, Joanna Major, Maria Roj, Natalia Rowińska Współpraca autorska: architekci Marcin Brzeziński, Mariusz Maury, Laura Paluch Architektura wnętrz: Maćków Pracownia Projektowa Realizacja: 2017 Rzut 3. piętra mieszkalnego https://cdn.galleries.smcloud.net/t/photos/gf-h2rR-51Kn-5Fco_witolda-43-rzut.jpeg
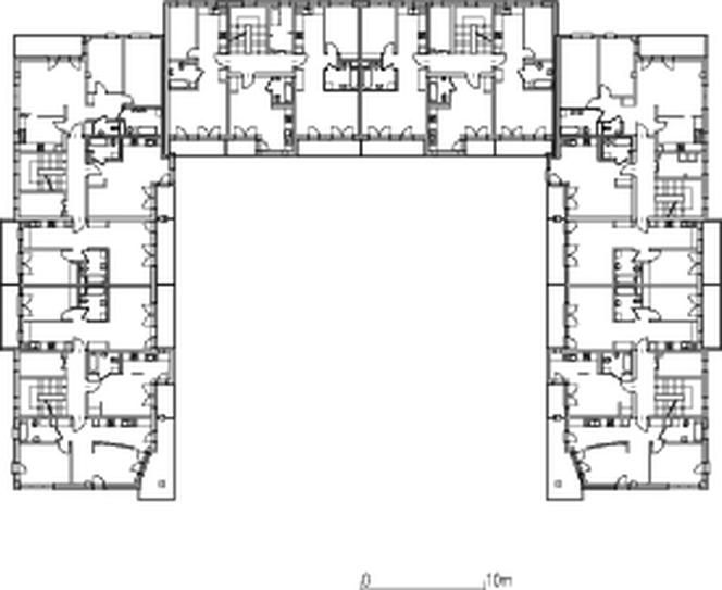
Osiedle Wróblewo - parter

i

Autor: Archiwum serwisu Osiedle Wróblewo II, Warszawa, ul. Odkryta 53 Autorzy : Grupa 5, architekci Roman Dziedziejko, Mariusz Jasiński, Mikołaj Kadłubowski, Michał Leszczyński, Krzysztof Mycielski, Mariusz Szpotowicz Współpraca: architekci Daniel Cwalina, Aureliusz Kowalczyk Realizacja: 1999-2004 Rzut parteru https://cdn.galleries.smcloud.net/t/photos/gf-U8PQ-wdqf-3gbH_osiedle-wroblewo-parter.jpeg
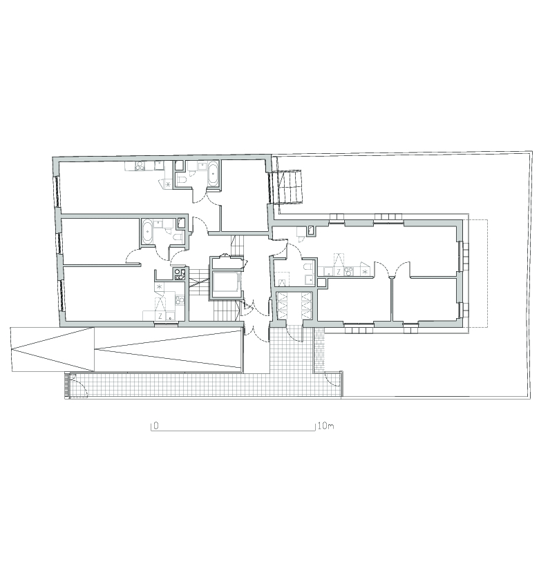
Osiedle Wróblewo - piętro 3

i

Autor: Archiwum serwisu Osiedle Wróblewo II, Warszawa, ul. Odkryta 53 Autorzy: Grupa 5, architekci Roman Dziedziejko, Mariusz Jasiński, Mikołaj Kadłubowski, Michał Leszczyński, Krzysztof Mycielski, Mariusz Szpotowicz Współpraca: architekci Daniel Cwalina, Aureliusz Kowalczyk Realizacja: 1999-2004 Rzut 3. piętra https://cdn.galleries.smcloud.net/t/photos/gf-afRQ-cbPG-Kndq_osiedle-wroblewo-pietro-3.jpeg