Co za metamorfoza! Blisko 100-letni, modernistyczny i zniszczony przez pożar parking przemieni się w tanie, komunalne i zdrowe mieszkania

2026-04-13 16:01

W jednej z wąskich ulic 10. dzielnicy Paryża – przy rue Lucien Sampaix – trwa projekt, który dobrze pokazuje jeden z istotnych kierunków współczesnej architektury w Europie – rezygnacja w wyburzenia i adaptacja istniejących struktury z minimalną ingerencją w zastaną tkankę. W miejscu dawnego garażu z 1935 roku, powstaje kompleks mieszkalny, w którym znajdzie się 16 mieszkań i lokal usługowy na parterze. Projekt, na zlecenie największej francuskiej agencji mieszkalniowej Paris Habitat, przygotowało biuro UR Architecture Urbanisme.

Urbanistyka przyszłości po polsku, czyli kulisy projektowania masterplanu F.S.O. Parku

U źródeł tego projektu leży tragiczne zdarzenie. W październiku 2020 roku modernistyczny garaż uległ poważnemu zniszczeniu w wyniku pożaru. Zamiast rozbiórki zdecydowano się na jego przejęcie przez miasto (w drodze prawa pierwokupu), a następnie przekazanie w długoterminową dzierżawę Paris Habitat. Zgodnie z zapisami miejscowego planu zagospodarowania przestrzennego teren przeznaczony jest w całości pod budownictwo społeczne, co w praktyce przesądziło o funkcji przyszłej realizacji. Pytanie tylko: jak zamienić garaż w zdrowe środowisko do mieszkania?

Specjalnością pracowni UR Architecture Urbanisme jest projektowanie i realizacja budownictwa mieszkaniowego o niskim śladzie węglowym, adaptacja istniejących budynków oraz modernizacja obiektów użyteczności publicznej. W 2024 roku biuro zostało laureatem konkursu Palmarès des Jeunes Urbanistes, przyznawanego przez Ministerstwo ds. Zagospodarowania Przestrzennego i Transformacji Ekologicznej. To nagroda za innowacyjne podejście do projektowania miasta, umiejętność odpowiadania na współczesne wyzwania – klimatyczne, społeczne i ekonomiczne – oraz łączenie skal: od architektury po urbanistykę i polityki miejskie. Wyróżnienie to wskazuje również pożądane kierunki rozwoju zawodu architekta.

Metamorfoza dawnego garażu przy rue Lucien Sampaix
Autor: UR Architecture Urbanisme / Paris Habitat/ Materiały prasowe Stan obecny - zdjęcie strat po pożarze z 2020 roku

Pożar trwale uszkodził prawie 100-letni parking, ale dał mu szansę na nowe życie

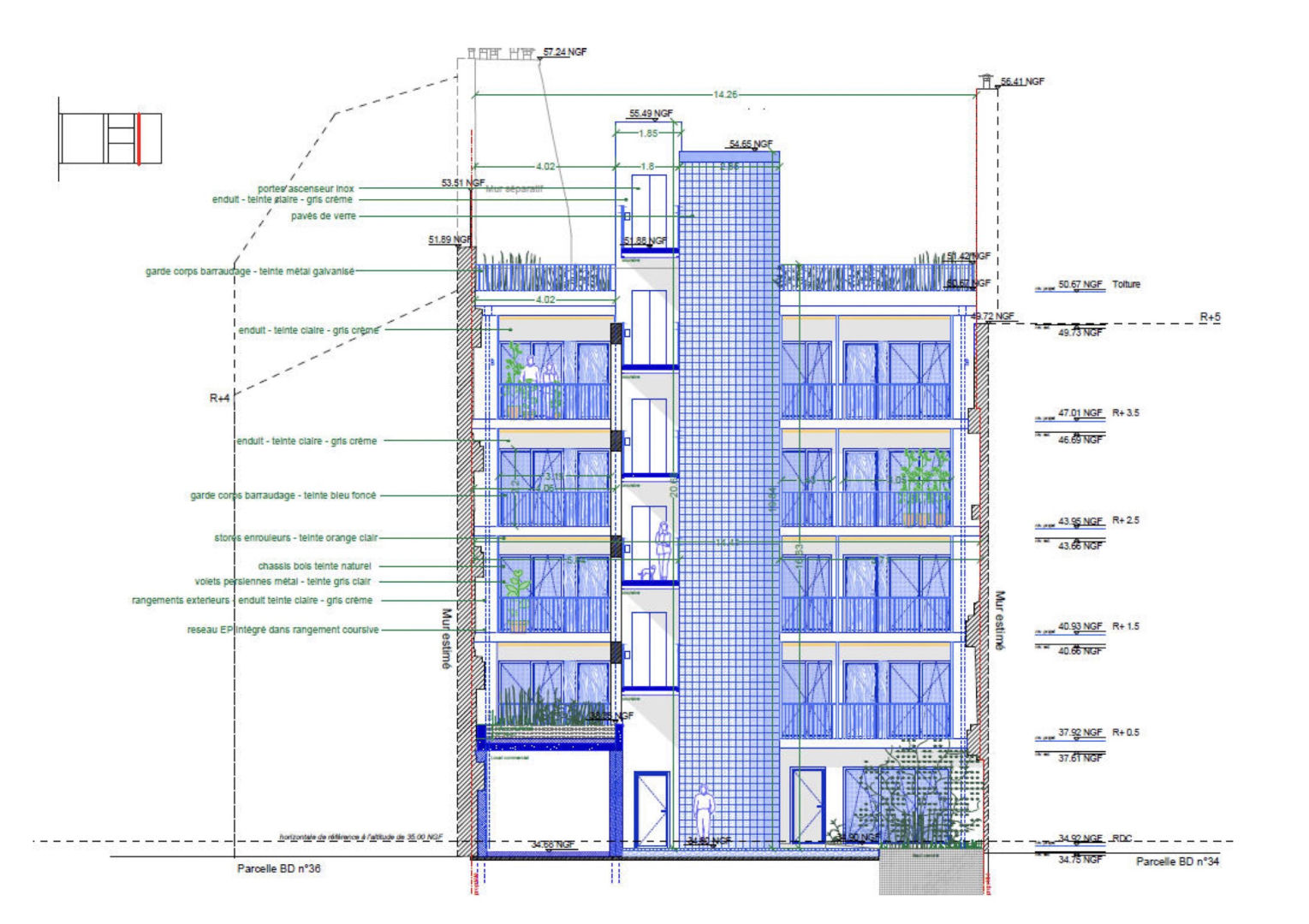
Zniszczony parking pełnił swoją funkcję do 2020 roku i był w pełni podporządkowany obsłudze ruchu samochodowego. To budynek o konstrukcji żelbetowej, w całości wypełniający działkę o powierzchni 431 m². Ma parter, cztery kondygnacje nadziemne oraz częściowe podpiwniczenie. Od strony ulicy jego elewację charakteryzują pasmowe okna. Obiekt jest wciśnięty w zwartą strukturę zabudowy miejskiej, której źródła i układ urbanistyczny sięgają XIX wieku.

Przed rozpoczęciem prac koncepcyjnych przyjęto cztery główne założenia wynikające wprost z polityki przestrzennej i mieszkaniowej Paryża. Kluczowa była decyzja o wykorzystaniu istniejącej struktury i ograniczeniu rozbiórki wyłącznie do najbardziej uszkodzonych fragmentów stropów. Projektowanie miało wyróżniać się dbałością o efektywność energetyczną oraz zapewnienie komfortu cieplnego zgodnie z francuskimi certyfikatami BBC Effinergie Rénovation oraz Biosourcé. Trzecim założeniem była optymalizacja układów mieszkań w celu zapewnienia maksymalnego komfortu – poprzez wprowadzenie mieszkań przewietrzanych, z ogrodami zimowymi i balkonami ciągłymi. Ostatnim punktem była dbałość o przestrzenie wspólne, które będą sprzyjały budowaniu relacji i podniosą jakość życia przyszłych lokatorów. Ważnym kontekstem były także zapisy bioklimatycznego miejscowego planu zagospodarowania przestrzennego, którego celem jest uprzywilejowanie działań modernizacyjnych i renowacyjnych w duchu oszczędności energetycznej.

Metamorfoza dawnego garażu przy rue Lucien Sampaix
Autor: UR Architecture Urbanisme / Paris Habitat/ Materiały prasowe Fasada garażu - stan obecny

Architekci traktują zastaną tkankę jako wartość

UR Architecture Urbanisme zaproponowało zachowanie i wzmocnienie żelbetowej struktury garażu. Od strony ulicy projekt zachowuje więc charakter dawnego parkingu – jego prostą, rytmiczną strukturę i powściągliwą ekspresję. Nowa, docieplona fasada została cofnięta względem istniejącej, a jej wykończenie ograniczono do minimum: czyszczenia, naprawy i malowania betonu oraz wprowadzenia nowych przeszkleń. Parter, w pełni przeszklony, pełni funkcję handlową (przewidziano tu lokal usługowy o powierzchni 217 m²), a wejście do części mieszkalnej odbywa się przez przejazd bramowy, kontynuując typologię paryskiej kamienicy. To świadoma decyzja – architekci nie próbują „upiększać” budynku ani wpisywać go na siłę w historyzującą estetykę. Zachowują jego przemysłowy rodowód, traktując go jako wartość, a nie problem.

Metamorfoza dawnego garażu przy rue Lucien Sampaix
Autor: UR Architecture Urbanisme / Paris Habitat/ Materiały prasowe Przekrój przez konstrukcję obecnego budynku

Chodzi o stworzenie warunków do życia wspólnotowego w bardzo ograniczonej przestrzeni

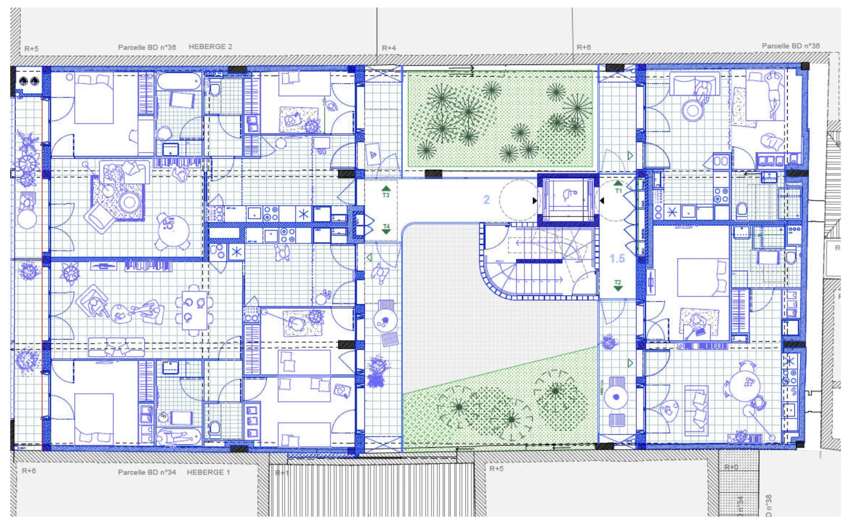
Zupełnie inny charakter ma wnętrze działki. Dziedziniec o powierzchni 74 m² oraz otaczające go elewacje zaprojektowano jako przestrzeń bardziej „domową” – ciepłą, miękką w odbiorze i nastawioną na codzienne użytkowanie. Wprowadzono tu naturalne materiały, galerie komunikacyjne i balkony, które pełnią funkcję stref pośrednich między mieszkaniem a przestrzenią wspólną. To właśnie tutaj pojawia się zasadnicza ambicja projektu: stworzenie warunków do życia wspólnotowego w bardzo ograniczonej przestrzeni. Uzupełnieniem przestrzeni wspólnych jest także dach – częściowo dostępny dla mieszkańców, częściowo pokryty zielenią.

Fasady od strony dziedzińca zaprojektowano tak, aby stworzyć mieszkańcom ciepłą, przyjazną atmosferę. Zostaną ocieplone wełną konopną i wykończone jasnym tynkiem wapiennym, a uzupełnieniem będą stolarki z naturalnego drewna, łączące komfort, jakość i walory estetyczne.

Metamorfoza dawnego garażu przy rue Lucien Sampaix
Autor: UR Architecture Urbanisme / Paris Habitat/ Materiały prasowe Schemat projektowanej fasady od strony dziedzińca

Zamiast samochodów - 16 komfortowych mieszkań

Same mieszkania zaprojektowano jako przewietrzane, z dostępem do światła z dwóch stron. Od strony ulicy pojawiają się ogrody zimowe – bufor termiczny i jednocześnie element zwiększający komfort użytkowania. Kuchnie i przestrzenie dzienne orientowane są w stronę dziedzińca, co wzmacnia wizualne i społeczne powiązania między mieszkańcami. Program funkcjonalny zakłada realizację 16 mieszkań o zróżnicowanych metrażach – od kawalerek po lokale czteropokojowe – rozlokowanych na czterech kondygnacjach powyżej parteru.

Mieszkania będą wyposażone w podwójny system zacieniania: drewniane okiennice oraz rolety tekstylne. Galerie i balkony, wykonane z płyt terakotowych, naturalnie przedłużą przestrzeń wewnętrzną na zewnątrz, a balustrady z lakierowanego na niebiesko metalu nadadzą całości współczesny charakter. Klatka schodowa zostanie obudowana pustakami szklanymi, co zapewni jej dostęp do światła dziennego, natomiast winda zostanie dyskretnie wpisana w betonowy trzon wykończony w kolorze elewacji.

Metamorfoza dawnego garażu przy rue Lucien Sampaix
Autor: UR Architecture Urbanisme / Paris Habitat/ Materiały prasowe Rzut piętra projektowanego kompleksu

To nie będą mieszkania dla bogatych

Całkowity koszt inwestycji wynosi około 6,7 mln euro, co daje średnio 334 tys. euro na mieszkanie. Finansowanie opiera się na mieszanym modelu: 63% stanowią środki własne i kredyty Paris Habitat, 32% – dotacje miejskie. Mieszkania będą oferowane w ramach trzech systemów wsparcia, które mają zapewnić ich dostępność dla różnych grup najemców. Dzięki temu na zamieszkanie mogą liczyć zarówno osoby w bardzo trudnej sytuacji finansowej (PLAI – najniższe czynsze i najniższe progi dochodowe), gospodarstwa o niskich i umiarkowanych dochodach (PLUS – podstawowy system mieszkań społecznych), jak i przedstawiciele niższej klasy średniej (PLS – wyższe czynsze, ale nadal regulowane).

Szacowany czas realizacji to 15 miesięcy. Zakończenie inwestycji planowane jest przed końcem 2027 roku.

----

Dziękujemy, że tu jesteś. 

Posłuchaj naszego podcastu. W tym odcinku Michał Sikorski opowiada o PRZEDPROJEKTOWANIU

Dlaczego Uniwersytet Warszawski stworzył własne biuro architektoniczne, a jednocześnie organizował konkursy i zlecał projekty na zewnątrz? Bo architektura zaczyna się wcześniej, niż myślimy. Zanim powstanie pierwsza koncepcja, ktoś musi zadać właściwe pytania: czego naprawdę potrzebuje inwestor? Jak będą działać użytkownicy? Jak przełożyć ich potrzeby na konkretne wytyczne projektowe? - Bez tego etapu nawet najlepszy architekt na świecie może stworzyć złą architekturę - mówi Michał Sikorski. Razem z Arturem Celińskim rozmawia o przedprojektowaniu w architekturze: niewidzialnej części procesu, która w największym stopniu decyduje o tym, czy budynek będzie działał.

Przeczytaj więcej: Niewidzialna część procesu. Bez tego etapu nawet najlepszy architekt na świecie może stworzyć złą architekturę

Podcast Architektoniczny
Michał Sikorski: Przedprojektowanie. Niewidzialny fragment każdej dobrej architektury