Przeszklone ściany sprawiają wrażenie, że dach lewituje, a naprzeciw można było wypożyczyć gondolę. Cafe Berg

2026-01-28 11:13

Podczas prac budowlanych, kiedy wyburzone zostały wtórne ściany, okna, sufity oraz skute posadzki, odsłoniła się pierwotna żelbetowa konstrukcja – czterospadowy dach wsparty na ośmiobocznych słupach i prostopadłościennym trzonie otoczonym galerią. Ten mały punkt na mapie Wrocławia jest przykładem rewitalizacji, w której oryginalna konstrukcja i współczesne materiały wspaniale się uzupełniają – pisze o projekcie grupy 33_03 Aleksandra Czupkiewicz.

Arka Koniecznego. Jak żyje się w ikonie architektury?

Cafe Berg we Wrocławiu - projekt Maxa Berga

Po otwarciu Cafe Berg w kwietniu 2021 roku wrocławianie ponownie mogą spożywać napoje nad fosą wzdłuż ul. Podwale. Zupełnie jak w przedwojennym Breslau, gdzie w zaprojektowanym przez ówczesnego miejskiego radcę budowlanego – Maxa Berga, uroczym Milchhauschen (domku mlecznym) można było raczyć się świeżym mlekiem z widokiem na zielone Wzgórze Liebecha (dzisiejsze Wzgórze Partyzantów). Po ugaszeniu pragnienia odstawiano kubki w specjalnie do tego zaprojektowanych otworach balustrady północnego tarasu, skąd można było rozważyć wypożyczenie gondoli z przystani znajdującej się naprzeciwko. Dzisiaj po wypożyczalni łódek nie ma już śladu, ale wciąż można podziwiać zachowane elementy kunsztu Berga.

Zobacz także: Skuł ornament, dobudował skrzydło, obłożył cegłą. Tak powstała willa Maxa Berga we Wrocławiu - teraz jest na sprzedaż

Cafe Berg 4

i

Autor: Maciej Lulko 4 | Północna elewacja kawiarni znad fosy miejskiej

Na zlecenie Zarządu Inwestycji Miejskich projekt renowacji budynku opracowała wrocławska grupa 33_03 pod przewodnictwem architektki Anity Luniak. Nad procesem ze strony Urzędu Miejskiego Konserwatora Zabytków Wrocławia czuwała Agata Chmielowska oraz Zdzisław Żak. Przy dużym zaangażowaniu wyżej wymienionych, wsparciu władz miasta, odpowiednim budżecie i wykonawcy (AKBiK) osiągnięto wysoką jakość, należną autorowi projektu i obiektowi tej klasy, przy którym – ze względu na skalę – wymaga się dużego zrozumienia i wrażliwości na detal.

Zobacz także: Mało brakowało, a projektowałby go legendarny Hans Poelzig. Pozwolenie na budowę wydały 54 urzędy, a przed ścięciem wrocławski wieżowiec uratowała wojna

Żelbetowa konstrukcja – kolumnada smukłych, ośmiobocznych słupów wspierająca równie smukły gzyms, wewnętrzny trzon ok. siedmiocentymetrowych ścian – została oczyszczona, wypiaskowana, a ubytki w jej strukturze wypełniono. Odlany z betonu czterospadowy dach na nowo pokryto ciemną dachówkę i zwieńczono betonowym kominem.

Wewnątrz odkryto oryginalne posadzki lastrykowe z przewagą powierzchni o jasnej zaprawie, której towarzyszy ciemna w masie oprawa trzonu, dodatkowo podkreślająca różnicę w fakturze użytych materiałów – surowy, jasny beton ścian o niekiedy nierównych krawędziach przełamuje gładka, lekko błyszcząca powierzchnia podłogi. Wspomniany trzon mieści funkcję otwartego baru (ściana południowa naprzeciw wejścia głównego) oraz zaplecza dla pracowników i ogólnodostępnej toalety (ściana wschodnia). W jego ścianach pozostawiono oryginalne otwory oraz drewnianą stolarkę okienną w charakterystycznym dla ówczesnego budownictwa kolorze intensywnej zieleni.

W tej samej kolorystyce utrzymano zewnętrzne balustrady, wypełniające przestrzenie między słupami. Część jest oryginalna, niektóre z uwagi na obecnie panujące przepisy musiały zostać podwyższone do wysokości 110 cm.

Cafe Berg 13

i

Autor: Maciej Lulko 13 | Zachowane okna wraz z okiennicami do pomieszczeń byłej stacji redukcyjnej gazu

Nowa warstwa szklenia

Największą zmianą w stosunku do pierwotnego założenia jest nowa warstwa szklenia, która pojawiła się w linii za słupami. Choć ten nowy element może wydawać się dyskusyjny – niewątpliwie zmienia działanie obiektu: z zadaszonego obejścia, z niewielkim kubikiem wewnątrz, otrzymujemy dużo większą powierzchnię, co ma znaczenie ekonomiczne i użytkowe.

Obecnie obiekt może funkcjonować całorocznie w tej samej formule (szklenie zapewnia wymagane warunkami technicznymi parametry cieplne), i łatwiej o utrzymanie stałego operatora tej wymagającej powierzchni. Być może dla niektórych taka argumentacja nie jest wystarczająca – tych zapewniam, że ciepły, lekko opalizujący beżowy kolor stolarki okiennej o cienkich ramach jest wizualnie mało agresywny, a szklenie można w pełni rozsunąć w strefie zachodniej, wschodniej i przede wszystkim północnej tak, że najcenniejszy widok pozostaje niezakłócony.

Cafe Berg 11

i

Autor: Maciej Lulko 11 | Widok północnego tarasu od wnętrza. Na pierwszym planie nowe szklenie za wewnętrzną linią słupów - rozsunięte i zapewniające nieograniczoną perspektywę na Wzgórze Partyzantów

Ściany zdobi wystawa zdjęć obiektów Maxa Berga

Wnętrza kawiarni doświetlono czarnymi, minimalistycznymi oprawami. Przestrzeń wypełniają wysokie i niskie stoliki, którym towarzyszą odrestaurowane fotele w kolorze fuksji. Ściany zdobi wystawa chaotycznie rozwieszonych czarno-białych zdjęć innych obiektów Maxa Berga. Wejście główne do kawiarni zostało opatrzone złotym logiem stylizowanym na fonty z lat 30. Wystrój odstaje od pieczołowitości oraz pożądanego umiaru, z jakim potraktowano elementy trwałe podczas renowacji, jest natomiast wyposażeniem ruchomym, które w przyszłości może wyglądać inaczej.

Zobacz także: Złoto, futra, setka głów. Największy dom towarowy w Breslau, luksusowy Warenhaus Wertheim, powstał w zaledwie rok

Wraz z mlecznym kioskiem zlokalizowanym w podziemiu pierwotnie istniała stacja redukcyjna gazu. Choć infrastruktura związana z tym przeznaczeniem nie pełni już swojej funkcji, to instalacje odrestaurowano i w przyszłości mają być dostępne dla zwiedzających. Do tej kondygnacji wgląd z zewnątrz zapewniają niewielkie okna w północnej i zachodniej ścianie, którym towarzyszą zachowane, drewniane i pomalowane na czarno okiennice. Do piwnicy prowadzą zewnętrzne schody, których bieg obecnie przedłużono do dobudowanego (już po zakończeniu inwestycji, z inicjatywy właściciela kawiarni) tarasu na wodzie.

Cafe Berg 12

i

Autor: grupa 3303/ Materiały prasowe 12 | Elementy zaworów dawnej stacji redukcyjnej gazu

Założenia autorskie

Domek nad fosą, dawny bar mleczny zbudowany według projektu Maxa Berga w 1911 roku był wielokrotnie przebudowywany. Gdy przystępowaliśmy do wykonania projektu, trudno było dopatrzyć się pierwotnego zamysłu autora. Podczas prac budowlanych, realizowanych na podstawie naszego projektu, kiedy wyburzone zostały wtórne ściany, okna, sufity oraz skute posadzki, odsłoniła się pierwotna żelbetowa konstrukcja – czterospadowy dach wsparty na ośmiobocznych słupach i prostopadłościennym trzonie otoczonym galerią, posadowiony na masywnej podstawie przyziemia, mieszczącym relikty przedwojennej stacji redukcyjnej gazu.

Adaptując obiekt na potrzeby kawiarenki, dawną galerię osłoniliśmy delikatnym przeszkleniem z rozsuwanymi ścianami, wprowadziliśmy niezbędne dla nowej funkcji zmiany. Głównym bohaterem pozostał beton.

Zobacz także: Zanim przyszły galerie handlowe, to one wypierały sklepiki z miasta. Rynek domów towarowych w Breslau był bezwzględny

Odwiedzając Cafe Berg, trzeba zwrócić uwagę na żelbetową konstrukcję, masywne słupy nawiązujące do świątyni, kontrastujące z wewnętrznym trzonem i dachem o grubości powłok wynoszących 7 cm. Warto przyjrzeć się bliżej samej strukturze betonu o zmiennej kolorystyce i uziarnieniu. Na ścianach widać przewarstwienia świadczące o technologii wykonania budynku.

Przeszklone ściany tworzą architektoniczny kolaż, sprawiają, że znikają słupy, a dach lewituje nad posadzką.

Na balkoniku wysuniętym nad fosę zachowała się oryginalna balustrada z otworami na kubki z mlekiem. Na taras na wodzie można zejść po betonowych historycznych schodkach z zachowaną oryginalną balustradą.

Cafe Berg – mały punkt na mapie Wrocławia – łączy historię z teraźniejszością, jest przykładem rewitalizacji obiektu gdzie oryginalna konstrukcja i współczesne materiały wzajemnie się wspomagają, tworząc tętniącą życiem przestrzeń.

Anita Luniak

Metryczka

Cafe Berg - dane projektu

Cafe Berg - przebudowa budynku dawnego „domku mlecznego” Maxa Berga z przeznaczeniem na kawiarnię Wrocław, ul. Podwale / róg Hugo Kołłątaja

  • Autorzy: grupa 33_03, architekt Anita Luniak
  • Współpraca autorska: Barbara Bołoz
  • Architektura wnętrz: grupa 33_03 Anita Luniak, Quercus House Joanna Ways
  • Konstrukcja: Biuro Projektów i Realizacji Inwestycji Vega Cad, Maciej Yan Minch
  • Instalacje elektryczne i niskoprądowe: Lumen Polska, Marcin Gruchaj, Krystian Ratajczak
  • Instalacje sanitarne: JK Projekt, Kajetan Jakszycki
  • Drogi: Rekobe, Robert Rybka
  • Generalny wykonawca: AKBiK
  • Inwestor: Gmina Wrocław reprezentowana przez Zarząd Inwestycji Miejskich
  • Powierzchnia terenu: 295 m²
  • Powierzchnia zabudowy: 56 m²
  • Powierzchnia użytkowa: 79 m²
  • Powierzchnia całkowita: 86,7 m²
  • Kubatura: 451 m³
  • Projekt: 2018-2019
  • Realizacja: 2019
  • Nie podano kosztu inwestycji
Café Berg in Wrocław

Cafe Berg. Renovation

The renovation project of the pre-war milk house designed by Max Berg was developed by the 33_03 group from Wrocław, led by architect Anita Luniak. After removing the unoriginal walls, windows, ceilings and scraping floors, the primary reinforced concrete structure was exposed – a hipped roof supported by octagonal columns and an orthogonal shaft surrounded by a gallery. The structure was cleaned and sandblasted, the concrete roof was re-tiled and topped with a chimney. Inside, the original terrazzo floors were uncovered.

The shaft functions as an open bar – the original openings were retained as well as the wooden-frame windows painted the intense green – the distinctive colour of that time. Glazed walls create an architectural collage, make the columns disappear and the roof levitate above the floor. The balcony overhanging the moat retains the original balustrade with holes for milk cups. The terrace on the water can be accessed via concrete historical steps with the preserved original balustrade.

Cafe Berg 6

i

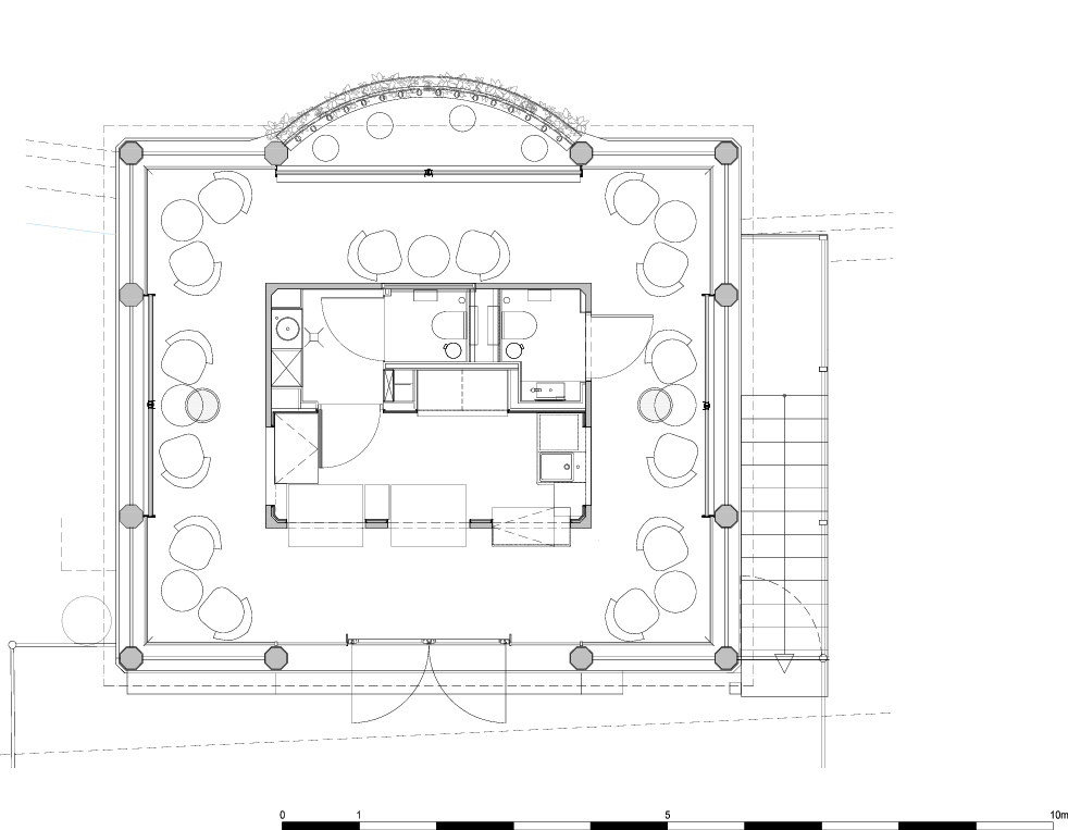
Autor: grupa 3303/ Materiały prasowe 6 | Rzut parteru. Oznaczenia: 1 – bar; 2 – zaplecze baru; 3 – sala kawiarni https://cdn.galleries.smcloud.net/t/photos/gf-iSHv-7ct9-SRKP_cafe-berg-6.jpeg
Cafe Berg 20

i

Autor: grupa 30_33/ Materiały prasowe Cafe Berg - przebudowa budynku dawnego „domku mlecznego” Maxa Berga z przeznaczeniem na kawiarnię. Elementy zaworów dawnej stacji redukcyjnej gazu
Cafe Berg 22

i

Autor: grupa 30_33/ Materiały prasowe Cafe Berg - przebudowa budynku dawnego „domku mlecznego” Maxa Berga z przeznaczeniem na kawiarnię. Shody
Podcast Architektoniczny
Lary i penaty. O bezpiecznej czułości architektury
Architektura Murator Google News